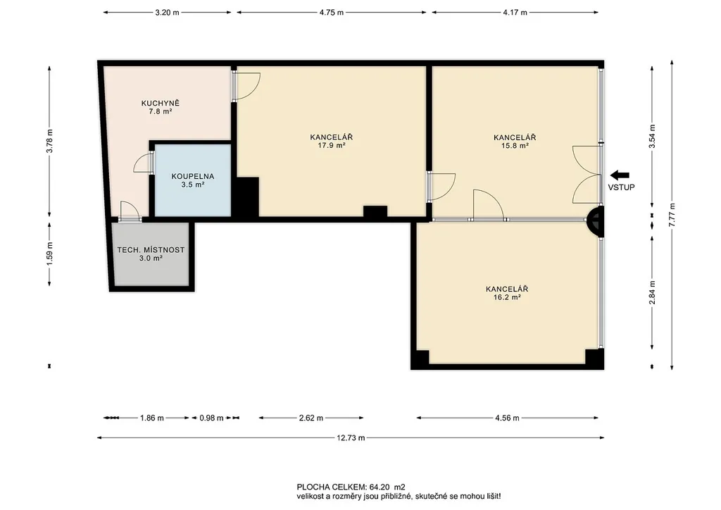
Prodej kanceláře, Brno - Královo Pole, Mojmírovo náměstí, 65 m2 (ID: 2512630)

Mojmírovo náměstí, Brno, Královo Pole

5 080 000 Kč HYPOTÉKA od 22 705 Kč /za měsíc

(včetně provize RK)

Doporučené firmy v Brně

Informace k nemovitosti

Prodej moderní kanceláře, ul. Mojmírovo náměstí, Brno-Královo Pole

Hledáte prostory pro svoje podnikání nebo hledáte vhodnou investiční příležitost?
Tak pro Vás máme tuto moderní zařízenou kancelář se seriózním dlouhodobým nájemníkem.

Představujeme Vám reprezentativní kancelářské prostory po zdařilé kompletní rekonstrukci.
Design interiéru je moderní, s důrazem na funkčnost a pohodlí. Najdete tu inteligentní osvětlení, klimatizační jednotku, kuchyňskou linku na míru a chytře řešený kancelářský nábytek, který disponuje nepřeberným množstvím úložného prostoru.
Pro zviditelnění Vaší firmy je i vymezená reklamní plocha hned při vstupu do domu.

Další velkou výhodou je lokalita samotná. Královo Pole je oblíbené nejen kvůli svému strategickému umístění, ale také díky skvělé dopravní dostupnosti. Zastávky MHD jsou v těsné blízkosti, stejně jako napojení na hlavní dopravní tepny města.
Přidanou hodnotou je i vedlejší parkovací dům, který poskytuje dostatek parkovacích míst pro vás i vaše klienty. A pokud potřebujete skladovací prostory, tak v těsné blízkosti se zároveň nachází skladovací areál, který nabízí flexibilní řešení dle vašich potřeb.
Prostě tu najdete vše co k vašemu podnikání potřebujete.

Přijďte se přesvědčit osobně a uvidíte sami.
V případě více informací se můžete podívat na stránku nemovitosti.

Parametry nemovitosti

Cena
5 080 000 Kč Spočítat hypotéku
Poznámka k ceně
včetně provize RK
Aktualizováno
6. 1. 2026
Adresa
Mojmírovo náměstí, Brno, Královo Pole
ID
0101
Stavba
Smíšená
Vybaveno
Částečně
Užitná plocha
65 m2
Třída energetické náročnosti
C - Úsporná

Kontaktovat makléře

Máte zájem o tuto nemovistost?

Tímto, v souladu s nařízením Evropského parlamentu a Rady (EU) 2016/679, v platném znění, prohlašuji, že mi je alespoň 16 let a uděluji tak svůj souhlas se zpracováním zadaných údajů (jméno, telefon, e-mail, ip adresa) společnosti B3 Technology, s.r.o., IČ: 07330600, se sídlem Novostavby 126/23, 435 11 Lom (správce dat), za účelem předání dotazu z tohoto formuláře Vámi vybranému inzerentovi a zpětného kontaktování mé osoby. Osobní údaje bude správce zpracovávat manuálně i automaticky přímo prostřednictvím svých zaměstnanců. Informace předané tímto formulářem budou uloženy v databázi správce maximálně po dobu 10 let. Odvolání souhlasu s uložením a zpracováním poskytnutých dat lze e-mailem na info@bydlisnami.cz. V případě podezření na neoprávněné použití Vámi poskytnutých údajů máte právo předat podnět k šetření Úřadu pro ochranu osobních údajů. Více informací
Chystáte se prodat nemovitost?
Pomůžeme Vám!

Inzerát si prohlédlo 1 lidí

Prodejce

Kevin Babička

Kevin Babička

Hlídací pes

Chcete dostávat emailem podobné nabídky prodeje kanceláří v Brně?

Podobné nemovitosti