Pronájem kanceláře, Praha, Na příkopě, 2169 m2

Na příkopě, Praha 1

Cena na vyžádání /za metr čtvereční / měsíc Získejte výhodnou HYPOTÉKU

(+ poplatky, provize se neplatí, podnájem na tři roky)

Doporučené firmy v Praze 1

Stěhovací služby

Výkup a prodej starého nábytku

Informace k nemovitosti

Realitní společnost GEPADR nabízí k podnájmu kanceláře o celkové ploše 2169m2 v pěti podlažích v domě v ul. Na Příkopě 29, Staré Město. Prostory jsou vhodné i pro školy. Podnájem je možný na tři roky do 31.6.2029.

1. patro - 461m2, 12 místností od 10m2 do 62m2, 2x toalety, kuchyňka, skládek
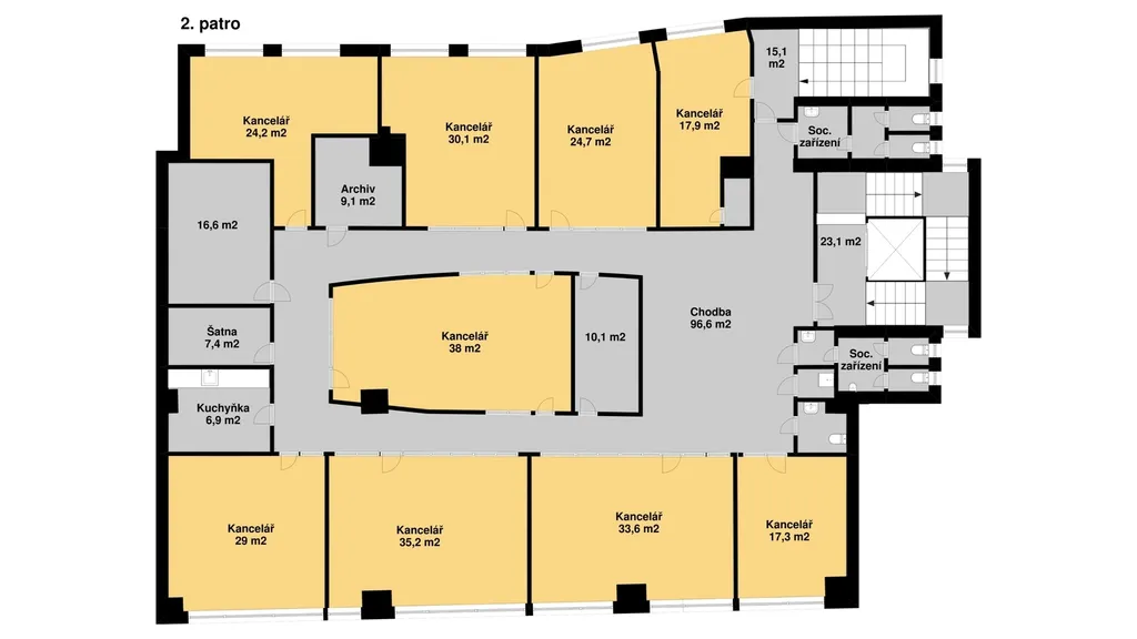
2. patro - 442m2, 9 místností od 17m2 do 38m2, 2x toalety, kuchyňka, 3 místnosti bez oken
3. patro - 460m2 (terasa), 11 místností od 13m2 do 52m2, 3x toalety, kuchyňka, skládek
4. patro - 400m2 , 12 místností, 4x toalety, kuchyňka, 2x skládek
5. patro - 404m2 + terasa 26m2, 11 místností od 12m2 do 30m2, 5x toalety, 2x kuchyňka, skládek
více viz. plánky.

Vytápění je řešeno plynovým kotlem, je zde instalována klimatizace, EPS a EZS, výtah, k dispozici je ostraha 24/7.
Jedná se o podnájem od České spořitelny od 1.9.2026 do 30.6.2029 s možností pokračování v nájmu (dle dohody s majitelem).
Více informací na uvedených kontaktech.

Parametry nemovitosti

Cena
Cena na vyžádání
Poznámka k ceně
+ poplatky, provize se neplatí, podnájem na tři roky
Aktualizováno
21. 4. 2026
Adresa
Na příkopě, Praha 1
ID
11892
Stavba
Cihlová
Stav objektu
Velmi dobrý
Vybaveno
Ne
Typ objektu
Patrový
Lokalita objektu
Centrum obce
Užitná plocha
2169 m2
Zastavěná plocha
560 m2
Třída energetické náročnosti
D - Méně úsporná
Odpad
Veřejná kanalizace
Voda
Vodovod
Výtah
Převod do OV

Kontaktovat makléře

Realitní kancelář

Logo GEPARD REALITY/Absoluta Real

GEPARD REALITY/Absoluta Real

Vršovické náměstí 67/8, Praha

Chystáte se prodat nemovitost?
Pomůžeme Vám!

Máte zájem o tuto nemovistost?

Tímto, v souladu s nařízením Evropského parlamentu a Rady (EU) 2016/679, v platném znění, prohlašuji, že mi je alespoň 16 let a uděluji tak svůj souhlas se zpracováním zadaných údajů (jméno, telefon, e-mail, ip adresa) společnosti B3 Technology, s.r.o., IČ: 07330600, se sídlem Novostavby 126/23, 435 11 Lom (správce dat), za účelem předání dotazu z tohoto formuláře Vámi vybranému inzerentovi a zpětného kontaktování mé osoby. Osobní údaje bude správce zpracovávat manuálně i automaticky přímo prostřednictvím svých zaměstnanců. Informace předané tímto formulářem budou uloženy v databázi správce maximálně po dobu 10 let. Odvolání souhlasu s uložením a zpracováním poskytnutých dat lze e-mailem na info@bydlisnami.cz. V případě podezření na neoprávněné použití Vámi poskytnutých údajů máte právo předat podnět k šetření Úřadu pro ochranu osobních údajů. Více informací
Chystáte se prodat nemovitost?
Pomůžeme Vám!

Inzerát si prohlédlo 7 lidí

Prodejce

Lenka Supová

Lenka Supová

Hlídací pes

Chcete dostávat emailem podobné nabídky pronájmu kanceláří v Praze 1?

Podobné nemovitosti