Pronájem bytu 3+kk, Ostrava, U Sportoviště, 90 m2 (ID: 2514641)

U Sportoviště, Ostrava, Poruba

23 000 Kč /za měsíc Získejte výhodnou HYPOTÉKU
Doporučené firmy v Ostravě

Informace k bytu

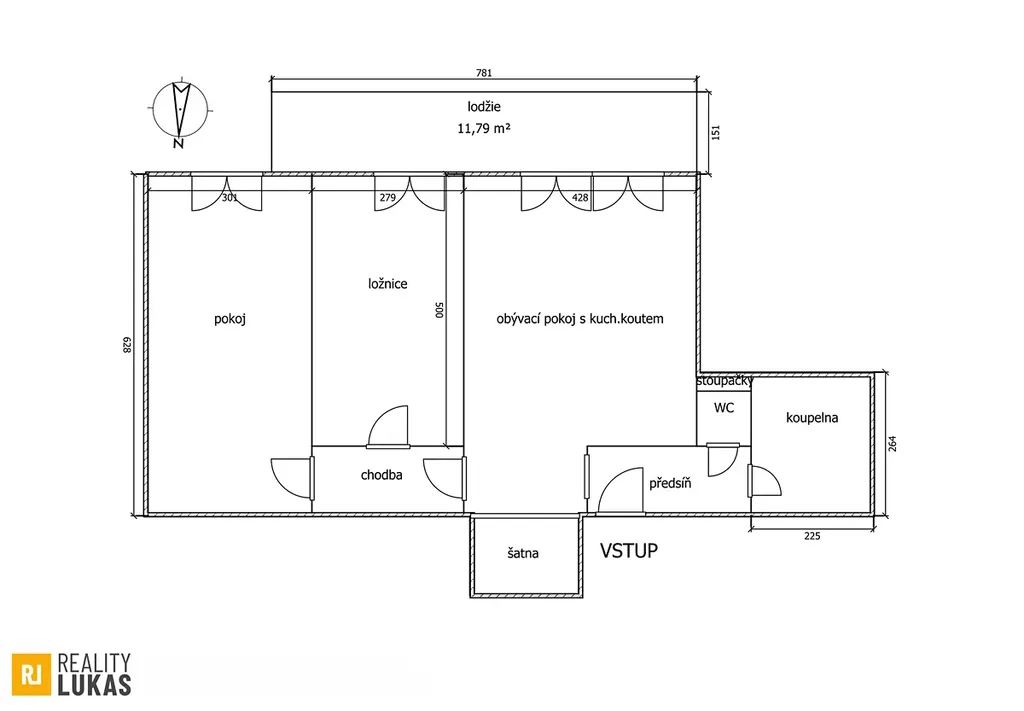
Nabízíme k pronájmu nadstandardní byt o dispozici 3+kk a celkové výměře 90 m², včetně prostorné zasklené lodžie, na žádané adrese ul. U Sportoviště, Ostrava – Poruba.

Byt se nachází ve 2. nadzemním podlaží moderního bytového domu, který byl zkolaudován v roce 2011. Dům je bezbariérový, s výtahem a vstupem bez schodů. Okna bytu jsou orientována na jih, což zajišťuje dostatek denního světla po celý den.

Byt je nezařízený a nabízí kvalitní standard provedení:

• plovoucí podlahy v celém bytě
• koupelna se sprchovým koutem a podlahovým vytápěním
• 2× klimatizační jednotka
• zabezpečovací systém s možností napojení na PCO
• centrální vytápění z domovního výměníku s vlastním
digitálním měřením spotřeby tepla

Parkování je možné v uzavřeném areálu u domu.

Lokalita nabízí kompletní občanskou vybavenost v docházkové vzdálenosti – školy, školky, MHD (tramvaj), pošta, krytý bazén i letní koupaliště.

Finanční podmínky:

• nájemné: 23 000 Kč / měsíc včetně služeb
• elektřina se přepisuje na nájemce
• kauce: 2× měsíční nájem
• provize RK: 1× měsíční nájem

Byt je volný od 1. 2. 2026.

Parametry bytu

Cena
23 000 Kč /za měsíc
Aktualizováno
7. 1. 2026
Adresa
U Sportoviště, Ostrava, Poruba
Stavba
Cihlová
Stav objektu
Po rekonstrukci
Patro
2.
Vlastnictví
Osobní
Užitná plocha
90 m2
Sklep
Lodžie

Kontaktovat makléře

Máte zájem o tento byt?

Tímto, v souladu s nařízením Evropského parlamentu a Rady (EU) 2016/679, v platném znění, prohlašuji, že mi je alespoň 16 let a uděluji tak svůj souhlas se zpracováním zadaných údajů (jméno, telefon, e-mail, ip adresa) společnosti B3 Technology, s.r.o., IČ: 07330600, se sídlem Novostavby 126/23, 435 11 Lom (správce dat), za účelem předání dotazu z tohoto formuláře Vámi vybranému inzerentovi a zpětného kontaktování mé osoby. Osobní údaje bude správce zpracovávat manuálně i automaticky přímo prostřednictvím svých zaměstnanců. Informace předané tímto formulářem budou uloženy v databázi správce maximálně po dobu 10 let. Odvolání souhlasu s uložením a zpracováním poskytnutých dat lze e-mailem na info@bydlisnami.cz. V případě podezření na neoprávněné použití Vámi poskytnutých údajů máte právo předat podnět k šetření Úřadu pro ochranu osobních údajů. Více informací
Chystáte se prodat nemovitost?
Pomůžeme Vám!

Inzerát si prohlédlo 1 lidí

Prodejce

Lukáš Rucký

Lukáš Rucký

Hlídací pes

Chcete dostávat emailem podobné nabídky pronájmu bytů 3+kk v Ostravě?

Podobné nemovitosti