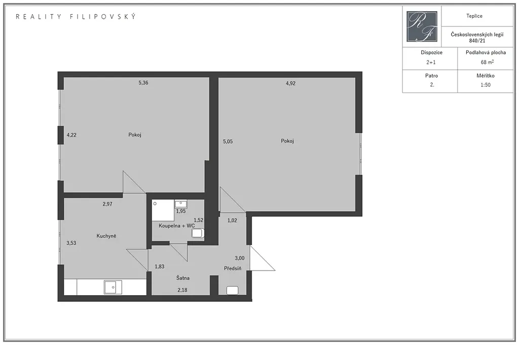
Prodej bytu 2+1, Teplice, Československých legií, 68 m2

Československých legií, Teplice, Trnovany

3 190 000 Kč /za nemovitost HYPOTÉKA od 14 257 Kč /za měsíc

(Včetně provize a právních služeb)

Doporučené firmy v Teplicích

Okna a dveře

Rekonstrukce

Informace k bytu

Dovoluji si Vám nabídnout kompletně nově zrekonstruovaný byt, který se nachází ve druhém patře cihlového činžovního domu v ul. Československých legií.

Jednotka má nové rozvody vody, elektřiny i topení. Pro vytápění a ohřev TUV je zde instalovaný moderní plynový kondenzační kotel Bosch, zaručující bezproblémový a maximálně ekonomický provoz. K tomu přispívají i plastová okna, jejichž bonusem je vzhled respektující původní charakter domu. Samozřejmostí jsou nové podlahy, koupelna i kuchyně. Nic nebylo ještě používáno. Určitě také oceníte stropní podhledy s integrovaným osvětlením. Velmi se mi líbí uspořádání bytu s velkorysými místnostmi a výškami stropů 2,9 m, které mohou interiéru poskytnout další rozměr při jeho zařizování. K jednotce náleží skladový prostor v mezipatře. Sklepní prostory jsou společné, s budoucí vizí rozdělení na jednotlivé sklepní kóje.

Bytová jednotka je velmi vhodná také pro investory, kteří v ní získají spolehlivý a též po technické stránce bezvadný nástroj, který bude po dlouhá léta generovat zisk bez potřeby oprav a zásadnější údržby. Skutečnou investiční příležitost tvoří z této nabídky také značně omezený počet bytů v osobním vlastnictví na teplickém nemovitostním trhu a fakt, že se jedná se o lokalitu stále více vyhledávanou pro svůj dosud nevyčerpaný rozvojový potenciál. To se již postupně projevuje v investicích do oprav bytových i rodinných domů nacházejících se v bezprostřední blízkosti.

Průkaz energetické náročnosti připravujeme, proto je dočasně uvedena energetická třída G.

Budu se těšit na setkání s Vámi.

Parametry bytu

Cena
3 190 000 Kč /za nemovitost Spočítat hypotéku
Poznámka k ceně
Včetně provize a právních služeb
Aktualizováno
10. 1. 2026
Adresa
Československých legií, Teplice, Trnovany
ID
626
Stavba
Cihlová
Stav objektu
Po rekonstrukci
Patro
3.
Vlastnictví
Osobní
Užitná plocha
68 m2
Třída energetické náročnosti
G - Mimořádně nehospodárná
Elektřina
230V
Plyn
Plynovod
Odpad
Veřejná kanalizace
Voda
Vodovod
Topné těleso
Radiátory
Zdroj topení
Plynový kondenzační kotel
Zdroj teplé vody
Plynový kondenzační kotel
Sklep

Kontaktovat makléře

Máte zájem o tento byt?

Tímto, v souladu s nařízením Evropského parlamentu a Rady (EU) 2016/679, v platném znění, prohlašuji, že mi je alespoň 16 let a uděluji tak svůj souhlas se zpracováním zadaných údajů (jméno, telefon, e-mail, ip adresa) společnosti B3 Technology, s.r.o., IČ: 07330600, se sídlem Novostavby 126/23, 435 11 Lom (správce dat), za účelem předání dotazu z tohoto formuláře Vámi vybranému inzerentovi a zpětného kontaktování mé osoby. Osobní údaje bude správce zpracovávat manuálně i automaticky přímo prostřednictvím svých zaměstnanců. Informace předané tímto formulářem budou uloženy v databázi správce maximálně po dobu 10 let. Odvolání souhlasu s uložením a zpracováním poskytnutých dat lze e-mailem na info@bydlisnami.cz. V případě podezření na neoprávněné použití Vámi poskytnutých údajů máte právo předat podnět k šetření Úřadu pro ochranu osobních údajů. Více informací
Chystáte se prodat nemovitost?
Pomůžeme Vám!

Inzerát si prohlédlo 10 lidí

Prodejce

Marek Filipovský - certifikovaný obchodník s nemovitostmi

Marek Filipovský - certifikovaný obchodník s nemovitostmi

Hlídací pes

Chcete dostávat emailem podobné nabídky prodeje bytů 2+1 v Teplicích?

Podobné nemovitosti