Pronájem kanceláře, Praha, Vinopalnická, 104 m2 (ID: 2517942)

Vinopalnická, Praha 8

25 000 Kč /za měsíc Získejte výhodnou HYPOTÉKU

(+ poplatky viz text inzerce)

Doporučené firmy v Praze 8

Stěhovací služby

Výkup a prodej starého nábytku

Informace k nemovitosti

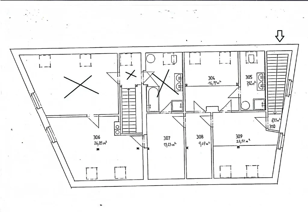
Pronájem reprezentativního kancelářského prostoru o dispozici 5kk, 104 m2, Praha 8 - Libeň, ulice Vinopalnická, 1.patro ve velmi pěkném, kompletně udržovaném cihlovém domě. Dům se nachází v klidné, slepé ulici a je obklopen zelení, o kterou pravidelně pečují zahradníci. Dům i okolí působí velmi klidným a inspirativním dojmem. Orientace prostoru je na východ (2 místnosti, každá má pak i okno na jih nebo sever) a na západ (1 místnost a koupelna). Prostor je po nákladné, právě dokončené rekonstrukci, při které byly vyměněny všechna střešní okna, v celém prostoru položen kvalitní vinyl, nainstalována nová kuchyňská linka a proběhla kompletní výmalba.

Prostor sestává ze vstupního schodiště (8,21 m2), 4 průchozích místností (22,51 m2, 16,77 m2, 9,07 m2, 13,23 m2), koupelny s WC (7,92 m2) a 1 neprůchozí místnosti, ve které je i klimatizační jednotka (26,28 m2). Prostor je nezařízený nábytkem. K dispozici je nová kuchyňská linka s novými spotřebiči – indukční vařič, lednice a mikrovlnná trouba. V prostorné koupelně je umývadlo, WC, vana i sprchový kout. Topení je ústřední - společný kotel pro celý dům, který se ovládá samostatným termostatem nainstalovaným v prostoru. Prostor je možné mít zabezpečený alarmem od společnosti Jablotron, který je napojený na CPO a to za 400 Kč měsíčně. Parkování je možné pro 2 auta na přilehlém pozemku před domem za 1.450 Kč měsíčně / 1 auto.

Výborná dopravní dostupnost do centra - 50 m od domu je zastávka Vinopalnická (bus č. 166) s přímým spojením (2 zastávky) na tram a Metro C - Ládví nebo 1 zastávka nebo cca 5 min. chůze tram a bus Bulovka s přímým spojením do samotného centra Prahy a na Metro A,B,C.

Prostor má nízké měsíční náklady - vytápění 2.000 Kč měsíčně, el. energie 1.700 Kč měsíčně, voda 150 Kč měsíčně / 1 osoba. Vratná kauce je ve výši 30.000 Kč. Prostor je k dispozici ihned.

Parametry nemovitosti

Cena
25 000 Kč /za měsíc
Poznámka k ceně
+ poplatky viz text inzerce
Aktualizováno
12. 1. 2026
Adresa
Vinopalnická, Praha 8
ID
P018141
Stavba
Cihlová
Stav objektu
Po rekonstrukci
Patro
2. z 2
Vybaveno
Ne
Typ objektu
Patrový
Užitná plocha
104 m2
Podlahová plocha
104 m2
Třída energetické náročnosti
C - Úsporná
Převod do OV
Parkování

Kontaktovat makléře

Realitní kancelář

Logo KUZO Partners s.r.o.

KUZO Partners s.r.o.

Olbrachtova 599/8, Mladá Boleslav

Chystáte se prodat nemovitost?
Pomůžeme Vám!

Máte zájem o tuto nemovistost?

Tímto, v souladu s nařízením Evropského parlamentu a Rady (EU) 2016/679, v platném znění, prohlašuji, že mi je alespoň 16 let a uděluji tak svůj souhlas se zpracováním zadaných údajů (jméno, telefon, e-mail, ip adresa) společnosti B3 Technology, s.r.o., IČ: 07330600, se sídlem Novostavby 126/23, 435 11 Lom (správce dat), za účelem předání dotazu z tohoto formuláře Vámi vybranému inzerentovi a zpětného kontaktování mé osoby. Osobní údaje bude správce zpracovávat manuálně i automaticky přímo prostřednictvím svých zaměstnanců. Informace předané tímto formulářem budou uloženy v databázi správce maximálně po dobu 10 let. Odvolání souhlasu s uložením a zpracováním poskytnutých dat lze e-mailem na info@bydlisnami.cz. V případě podezření na neoprávněné použití Vámi poskytnutých údajů máte právo předat podnět k šetření Úřadu pro ochranu osobních údajů. Více informací
Chystáte se prodat nemovitost?
Pomůžeme Vám!

Inzerát si prohlédlo 1 lidí

Prodejce

Soňa Kutnohorská

Soňa Kutnohorská

Hlídací pes

Chcete dostávat emailem podobné nabídky pronájmu kanceláří v Praze 8?

Podobné nemovitosti