Pronájem bytu 3+kk, Praha - Hostivař, Hornoměcholupská, 84 m2

Hornoměcholupská, Praha, Hostivař

28 000 Kč /za měsíc Získejte výhodnou HYPOTÉKU

(Polovinu celkové vratné kauce lze rozprostřít do 6 měsíců a uhradit ji postupně formou "splátek".)

Doporučené firmy v Praze 10

Stěhovací služby

Výkup a prodej starého nábytku

Informace k bytu

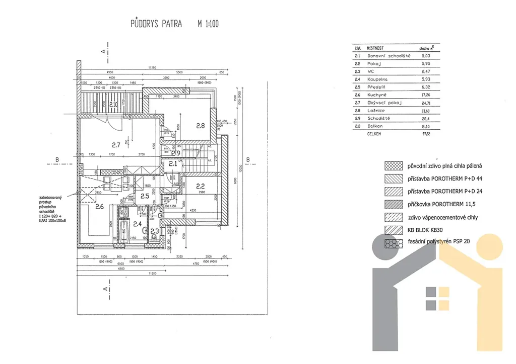
Bytová jednotka s dispozicí 3+kk se nachází ve 3.NP (2.patro) rodinného domu v ulici Hornoměcholupská v Hostivaři. Byt má velikost 76,32m2 + balkon 8,10m2. V případě zájmu lze k němu pronajmout i sklad/komoru umístěnou v přízemí domu (také s alarmem) o velikosti 13,68m2.

Nemovitost byla pronajata 4 roky jako kancelář, ale lze ji pronajmout ke standardnímu bydlení, což zájemcům o pronájem v této lokalitě mohu vřele doporučit. Bytová jednotka má alarm a je připojena na PCO. Celý rodinný dům funguje řadu let jako nájemní dům o 3 bytových jednotkách a 1 nebytovém prostoru. Byt má vlastní podružné vodoměry na studenou a teplou vodu, a vlastní podružný elektroměr. V přízemí domu je technická místnost, kde je umístěn centrální plynový kotel, který je využíván na ohřev vody a vytápění. Pro ohřev vody slouží doplňkově i solární panely umístěné na střeše domu, což šetří všem nájemníkům náklady na teplou vodu. V bytové jednotce není žádný další kotel, či bojler. Vše je centrálně umístěné v technické místnosti domu.
Byt má dvě neprůchozí ložnice a kuchyni propojenou otevřenou dispozicí s obývacím pokojem. Na balkon se vchází velkým portálovým oknem, které je možné nechat v letních měsících otevřené a propojit tak lépe interiér s výhledem do zahrady. V koupelně bude mít budoucí nájemník na výběr mezi vanou a sprchovým koutem. Součástí vybavení je pouze kuchyňská linka a velká vestavěná šatní skříň v chodbě.

Poloha bytu v ulici Hornoměcholupská je skvělá jak z hlediska občanské vybavenosti, tak i z hlediska dopravní dostupnosti. Orientace oken je jak do ulice, tak i do zahrady. V rámci pár minut chůze je k dispozici autobusová zastávka „K Lesoparku“, „Gercenova“, „Řepčická“. Stejně tak i MŠ, ZŠ, Albert, Lidl, lékárna, dětská hřiště, sportoviště, plavecký bazén, lesopark Hostivař, vodní nádrž Hostivař s koupalištěm, Galerie Golf Hostivař, restaurace, cukrárny, kavárny. O něco dále, ne však daleko, se nachází tramvajová zastávka „Hostivařská“ a „Nádraží Hostivař“, vlakové nádraží Praha-Hostivař a OC VIVO! Hostivař. Nájezd na Jižní spojku 8min., metro „A“ 12min. autobusem. Kompletní občanská vybavenost, skvělá dopravní dostupnost a nadstandardní zeleň v blízkosti domu.

Cena nájemného je 28.000,- Kč/měsíc + zúčtovatelná záloha za energie včetně plynu a elektřiny ve výši 5.500,- Kč/měsíc. Při zahájení nájmu se hradí vratná kauce ve výši 2 měsíčních nájmů včetně poplatků (polovinu celkové vratné kauce lze rozprostřít do 6 měsíců a uhradit ji postupně formou "splátek"), nájem na první měsíc vč. poplatků a jednorázová provize RK ve výši jednoho nájmu (bez poplatků) + DPH. Pro doplňující informace či domluvení prohlídky mě neváhejte kontaktovat.

Parametry bytu

Cena
28 000 Kč /za měsíc
Poznámka k ceně
Polovinu celkové vratné kauce lze rozprostřít do 6 měsíců a uhradit ji postupně formou "splátek".
Náklady na bydlení
+ 5.500,- Kč/měs. včetně zálohy na elektřinu a plyn
Aktualizováno
7. 4. 2026
Adresa
Hornoměcholupská, Praha, Hostivař
Stavba
Cihlová
Stav objektu
Po rekonstrukci
Patro
3.
Lokalita objektu
Klidná část obce
Vlastnictví
Osobní
Užitná plocha
84 m2
Podlahová plocha
117 m2
Třída energetické náročnosti
G - Mimořádně nehospodárná
Elektřina
230V
Plyn
Plynovod
Odpad
Veřejná kanalizace
Komunikace
Asfaltová
Doprava
MHD
Voda
Vodovod
Topné těleso
Radiátory
Zdroj topení
Plynový kotel
Zdroj teplé vody
Plynový kotel, Bojler - plyn, Jiné
Balkon
Výtah
Bezbarierový přístup

Kontaktovat makléře

Máte zájem o tento byt?

Tímto, v souladu s nařízením Evropského parlamentu a Rady (EU) 2016/679, v platném znění, prohlašuji, že mi je alespoň 16 let a uděluji tak svůj souhlas se zpracováním zadaných údajů (jméno, telefon, e-mail, ip adresa) společnosti B3 Technology, s.r.o., IČ: 07330600, se sídlem Novostavby 126/23, 435 11 Lom (správce dat), za účelem předání dotazu z tohoto formuláře Vámi vybranému inzerentovi a zpětného kontaktování mé osoby. Osobní údaje bude správce zpracovávat manuálně i automaticky přímo prostřednictvím svých zaměstnanců. Informace předané tímto formulářem budou uloženy v databázi správce maximálně po dobu 10 let. Odvolání souhlasu s uložením a zpracováním poskytnutých dat lze e-mailem na info@bydlisnami.cz. V případě podezření na neoprávněné použití Vámi poskytnutých údajů máte právo předat podnět k šetření Úřadu pro ochranu osobních údajů. Více informací
Chystáte se prodat nemovitost?
Pomůžeme Vám!

Inzerát si prohlédlo 13 lidí

Prodejce

Ivana Ráčková

Ivana Ráčková

Hlídací pes

Chcete dostávat emailem podobné nabídky pronájmu bytů 3+kk v Praze 10?

Podobné nemovitosti