Pronájem bytu 1+1, Praha - Braník, Nad malým mýtem, 39 m2

Nad malým mýtem, Praha, Braník

19 900 Kč /za měsíc Získejte výhodnou HYPOTÉKU
Doporučené firmy v Praze 4

Stěhovací služby

Výkup a prodej starého nábytku

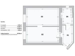
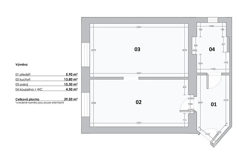
Informace k bytu

Nabízíme k pronájmu byt 1+1 o celkové ploše 39,5 m², který se nachází ve 4. nadzemním podlaží cihlového domu bez výtahu v klidné lokalitě pražského Braníka.

Kuchyň o velikosti 13,8 m² je vybavena moderní kuchyňskou linkou se sklokeramickou varnou deskou, troubou, vestavěnou myčkou a lednicí s mrazákem. Kuchyň a hlavní obytný prostor jsou orientovány na východ s příjemným výhledem do klidného dvora se zelení.

Byt je po částečné rekonstrukci a je vybaven bezpečnostními vstupními dveřmi. Laminátová plovoucí podlaha je položena ve všech místnostech, vyjma koupelny. V bytě je instalované elektrické přímotopné topení s digitálním termostatem. Ohřev teplé vody je zajištěn elektrickým bojlerem.

Byt je ideální pro jednu osobu nebo pár a je k okamžitému nastěhování.

výše nájemného: 19.900 Kč/měs
zúčtovatelné zálohy pro 1 osobu 1.100 Kč/měs, pro 2 osoby 1.500 Kč/měs
el. energie se přepisuje na nájemníka (zálohy 1500 Kč/měs)
výše jistoty (kauce): 39.800 Kč
provize RK: 10.000 Kč + DPH

Parametry bytu

Cena
19 900 Kč /za měsíc
Aktualizováno
13. 1. 2026
Adresa
Nad malým mýtem, Praha, Braník
ID
965388
Stavba
Cihlová
Stav objektu
Dobrý
Patro
4. z 5
Vlastnictví
Osobní
Užitná plocha
39 m2
Podlahová plocha
39 m2
Třída energetické náročnosti
C - Úsporná
Elektřina
230V
Odpad
Veřejná kanalizace
Doprava
MHD
Voda
Vodovod

Kontaktovat makléře

Máte zájem o tento byt?

Tímto, v souladu s nařízením Evropského parlamentu a Rady (EU) 2016/679, v platném znění, prohlašuji, že mi je alespoň 16 let a uděluji tak svůj souhlas se zpracováním zadaných údajů (jméno, telefon, e-mail, ip adresa) společnosti B3 Technology, s.r.o., IČ: 07330600, se sídlem Novostavby 126/23, 435 11 Lom (správce dat), za účelem předání dotazu z tohoto formuláře Vámi vybranému inzerentovi a zpětného kontaktování mé osoby. Osobní údaje bude správce zpracovávat manuálně i automaticky přímo prostřednictvím svých zaměstnanců. Informace předané tímto formulářem budou uloženy v databázi správce maximálně po dobu 10 let. Odvolání souhlasu s uložením a zpracováním poskytnutých dat lze e-mailem na info@bydlisnami.cz. V případě podezření na neoprávněné použití Vámi poskytnutých údajů máte právo předat podnět k šetření Úřadu pro ochranu osobních údajů. Více informací
Chystáte se prodat nemovitost?
Pomůžeme Vám!

Inzerát si prohlédlo 1 lidí

Prodejce

Jana Folkmannová

Jana Folkmannová

Hlídací pes

Chcete dostávat emailem podobné nabídky pronájmu bytů 1+1 v Praze 4?

Podobné nemovitosti