Prodej rodinného domu, Zlatá Olešnice, 130 m2

Zlatá Olešnice

3 100 000 Kč /za nemovitost HYPOTÉKA od 13 855 Kč /za měsíc

(Kupní cena vč. provize RK a právního servisu.)

Doporučené firmy v Zlaté Olešnici

Informace k domu

Exkluzivní nabídka prodeje domku v klidné lokalitě obce Zlatá Olešnice, který je jen 7 km od centra Trutnova. Jde se o domek se sedlovou střechou a obytným podkrovím. Domek je ve stavu zahájené, ale nedokončené rekonstrukce, aktuálně dispozičně 2 + 1 s příslušenstvím, s možností vestavby min. jednoho dalšího pokoje.

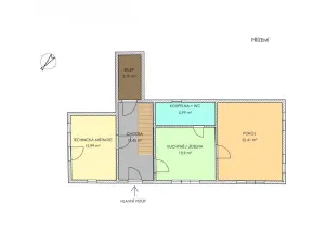
Z prostorného zádveří se vpravo vstupuje do obytné části v 1. NP, konkrétně do kuchyně o výměře 14 m2, která je vybavena kuchyňskou linkou. Z kuchyně vlevo lze vstoupit do společné koupelny s vanou a WC. V této místnosti je také technický koutek s bojlerem zajištujícím rozvody teplé vody i do kuchyně a expanzní nádoba pro regulaci centrálního vytápění. Tato místnost má podlahovou plochu o výměře 6 m2. Z kuchyně se také vchází do obytné místnosti o výměře 22,4 m2. V této místnosti jsou krbová kamna, kterými je přes výměník a rozvody do deskových radiátorů zajišťováno vytápění všech obytných místností.

Ze vstupního zádveří přímo lze po dřevěném schodišti vystoupat do 2. NP, kde je nad obývacím pokojem další obytná místnost o výměře 21 m2. Mezí schodištěm a touto místností je prostor o výměře téměř 35 m2, kde by bylo možné dobudovat nejméně jednu další obývací místnost. Je zde také schodiště na půdu, Ze vstupního zádveří vlevo lze projít do zděného přístavku o výměře 13 m2, který sloužil jako skladiště dřeva. Ze vstupního zádveří přímo, ale vlevo od schodiště lze dojít do klenbového sklípku o výměře 6,5 m2.

V rámci zahájené rekonstrukce byly provedeny nové rozvody elektroinstalace, rozvody teplé vody a rozvody topení. V kuchyni a v koupelně je na podlaze keramická dlažba. V obytné místnosti je plovoucí podlaha. Na domku jsou původní dvojitá dřevěná okna.

Společně s domkem se nabízejí také pozemky o celkové výměře více jak 1500 m2. Část z těchto pozemků je svahovitá, ale ta část pozemků, která je situována na jižní stranu byla prodávajícím srovnána a nabízí dostatečný prostor pro venkovní aktivity a odpočinek. V tomto roce by mělo dojít i vykácení vzrostlých smrků podél příjezdové cesty, což ještě více prosluní tuto část pozemků.

Domek je na samém okraji obce Zlatá Olešnice, nejbližší autobusové zastávka je přibližně 300 metrů od domu, ale také pouze 2 km od konečné zastávky MHD Trutnov ve městské části Trutnov Libeč, 6,5 km od nákupní domu Lidl a 7 km od centra města Trutnov. Dům je napojen na veřejný vodovod, odpadové vody jsou svedeny do septiku.

Domek je ideální volbou pro toho, kdo hledá klidné bydlení venkovského typu, ale v blízkosti okresního města s dostupností všech služeb. Pro dokončení rekonstrukce a uzpůsobení si bydlení svým představám a požadavkům se nabízí využití čerpání dotací, které mohou být významným finančním příspěvkem pro budoucí spokojené bydlení.

Právní služby, úschova kupní ceny a další rozsáhlé služby RK Evoluce jsou pro kupujícího zdarma. Jsme připraveni pomoci vám také se zajištěním financování.

Parametry domu

Cena
3 100 000 Kč /za nemovitost Spočítat hypotéku
Poznámka k ceně
Kupní cena vč. provize RK a právního servisu.
Aktualizováno
29. 4. 2026
Adresa
Zlatá Olešnice
ID
OND26156
Stavba
Cihlová
Stav objektu
V rekonstrukci
Vybaveno
Částečně
Typ objektu
Patrový
Druh objektu
Samostatný
Užitná plocha
130 m2
Zastavěná plocha
128 m2
Podlahová plocha
130 m2
Plocha pozemku
1733 m2
Plocha zahrady
1500 m2
Třída energetické náročnosti
G - Mimořádně nehospodárná
Elektřina
230V
Odpad
Septik
Topení
Ústřední tuhá paliva
Komunikace
Zpevněná
Doprava
Silnice, MHD, Autobus
Voda
Vodovod
Topné těleso
Krbová kamna
Zdroj topení
Krbová kamna
Sklep
Bezbarierový přístup
Parkování

Kontaktovat makléře

Máte zájem o tento dům?

Tímto, v souladu s nařízením Evropského parlamentu a Rady (EU) 2016/679, v platném znění, prohlašuji, že mi je alespoň 16 let a uděluji tak svůj souhlas se zpracováním zadaných údajů (jméno, telefon, e-mail, ip adresa) společnosti B3 Technology, s.r.o., IČ: 07330600, se sídlem Novostavby 126/23, 435 11 Lom (správce dat), za účelem předání dotazu z tohoto formuláře Vámi vybranému inzerentovi a zpětného kontaktování mé osoby. Osobní údaje bude správce zpracovávat manuálně i automaticky přímo prostřednictvím svých zaměstnanců. Informace předané tímto formulářem budou uloženy v databázi správce maximálně po dobu 10 let. Odvolání souhlasu s uložením a zpracováním poskytnutých dat lze e-mailem na info@bydlisnami.cz. V případě podezření na neoprávněné použití Vámi poskytnutých údajů máte právo předat podnět k šetření Úřadu pro ochranu osobních údajů. Více informací
Chystáte se prodat nemovitost?
Pomůžeme Vám!

Inzerát si prohlédlo 15 lidí

Prodejce

Dr. Zdeněk  Ondráček

Dr. Zdeněk Ondráček

Hlídací pes

Chcete dostávat emailem podobné nabídky prodeje rodinných domů v Zlaté Olešnici (okr. Trutnov)?

Top nabídky

Podobné nemovitosti