Soccer reality

Pronájem bytu 2+1, Praha - Čakovice, U Párníků, 61 m2

U Párníků, Praha, Čakovice

25 000 Kč /za měsíc Získejte výhodnou HYPOTÉKU

(+ poplatky)

Doporučené firmy v Praze 9

Stěhovací služby

Výkup a prodej starého nábytku

Informace k bytu

Nejen zimní romantiku si užijete v tomto prostorném, tichém bytu, v klidné ulici U Párníků, na okraji Čakovic. Navíc budete mít volný výhled do okolí a dětské hřiště přímo u domu.

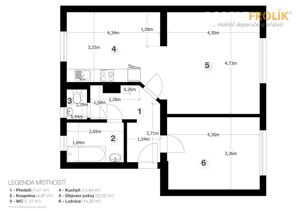
Byt o výměře cca 61 m2, ve 2. patře cihlového domu bez výtahu, Vám nabídne: kuchyni, kam se vejde i jídelní stůl, obývák s velkou skříní, samostatnou ložnici, koupelnu s vanou a místem na pračku, oddělené WC s umyvadlem a chodbu, kde je místo i na šatní koutek. V suterénu domu budete mít zděný sklípek. V domě je i společná prádelna a kolárna.

Obývák i ložnice jsou otočené na jih, kuchyně a koupelna na sever. Všechny místnosti mají okna, takže byt se dá dobře větrat. Topení a ohřev teplé vody je dálkové, vše s měřením. V kuchyňské lince jsou všechny spotřebiče: lednice s mrazákem, elektrická trouba, sklokeramická varná deska, digestoř, myčka. Potřebujete jen vlastní nábytek a pračku.

Bydlení je tu příjemné, všude je spousta zeleně a při tom je to kousek od veškeré občanské vybavenosti, kterou Čakovice nabízí!

Kromě nájemného budete platit zálohy na služby (topení, voda, odpad, úklid a osvětlení domu) v částce 3.600 Kč/měs. + zálohu na elektřinu v částce 1.350 Kč/měs. Nájemné a zálohy se platí měsíčně předem, jistota je 1 nájemné vč. záloh, provize 1 nájemné.

Byt je ihned volný, připravený k dlouhodobému pronájmu.

PENB není k dispozici, dle zákona uvádím třídu G.

Parametry bytu

Cena
25 000 Kč /za měsíc
Poznámka k ceně
+ poplatky
Náklady na bydlení
4 950
Aktualizováno
20. 1. 2026
Adresa
U Párníků, Praha, Čakovice
ID
RF 0571
Stavba
Cihlová
Stav objektu
Dobrý
Patro
2. z 4
Vybaveno
Ne
Lokalita objektu
Klidná část obce
Vlastnictví
Osobní
Užitná plocha
61 m2
Třída energetické náročnosti
G - Mimořádně nehospodárná
Elektřina
230V
Odpad
Veřejná kanalizace
Komunikace
Asfaltová
Telekomunikace
Telefon, Internet, Kabelová televize, Kabelové rozvody
Voda
Vodovod
Topné těleso
Radiátory
Zdroj topení
Centrální dálkové
Sklep

Kontaktovat makléře

Máte zájem o tento byt?

Tímto, v souladu s nařízením Evropského parlamentu a Rady (EU) 2016/679, v platném znění, prohlašuji, že mi je alespoň 16 let a uděluji tak svůj souhlas se zpracováním zadaných údajů (jméno, telefon, e-mail, ip adresa) společnosti B3 Technology, s.r.o., IČ: 07330600, se sídlem Novostavby 126/23, 435 11 Lom (správce dat), za účelem předání dotazu z tohoto formuláře Vámi vybranému inzerentovi a zpětného kontaktování mé osoby. Osobní údaje bude správce zpracovávat manuálně i automaticky přímo prostřednictvím svých zaměstnanců. Informace předané tímto formulářem budou uloženy v databázi správce maximálně po dobu 10 let. Odvolání souhlasu s uložením a zpracováním poskytnutých dat lze e-mailem na info@bydlisnami.cz. V případě podezření na neoprávněné použití Vámi poskytnutých údajů máte právo předat podnět k šetření Úřadu pro ochranu osobních údajů. Více informací
Chystáte se prodat nemovitost?
Pomůžeme Vám!

Inzerát si prohlédlo 2 lidí

Prodejce

Robert Frolík

Robert Frolík

Hlídací pes

Chcete dostávat emailem podobné nabídky pronájmu bytů 2+1 v Praze 9?

Podobné nemovitosti