Prodej rodinného domu, Uhersko, 84 m2

Uhersko

9 900 000 Kč /za nemovitost HYPOTÉKA od 44 247 Kč /za měsíc

(Náš finanční specialista vám připraví několik možností, jak nejlépe financovat nákup tohoto domu.)

Doporučené firmy v Uhersku

Informace k domu

Dobrý den, nabízíme k prodeji novostavbu o dispozici 4+kk z roku 2025 v obci Uhersko.

Pro ještě lepší představu vlastního bydlení, se můžete podívat na video prohlídku domu a okolí.

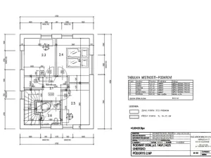
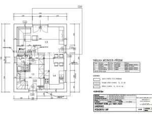
Dispozice:
- Přízemí: vstupní hala se schodištěm, obývací pokoj, jídelna, kuchyně, koupelna se sprchovým koutem a WC.
- První patro: 3 pokoje, koupelna s vanou a WC.

Technické specifikace:
- Celková velikost pozemku: 834 m2.
- Zahrada: 715 m2.
- Užitná plocha domu: 84 m2.
- Konstrukce domu: cihla Porfix 40.
- Střecha: betonové tašky + zateplení vatou.
- Okna: trojskla.
- Podlahy: vinyl.
- Vytápění: tepelné čerpadlo vzduch vzduch značky Mitsubishi 3. kategorie. V každém pokoji je klimatizační jednotka (teplo / vzduch).
- Příprava na krbová kamna.

Dům je napojen na obecní vodovod a obecní kanalizaci. O ohřev vody se stará elektrický boiler. Nemovitost energeticky spadá do kategorie B - Velmi úsporná.

Hlavní přednosti domu:
- Kryté stání pro 2 auta.
- Energeticky velmi úsporná nemovitost.
- Krásná a dostatečně velká zahrada.
- Nájezd na dálnici D35 jen 5 minut autem.

Tento dům je ideální pro rodiny hledající klidné a moderní bydlení s výbornou dopravní dostupností.

V těsné blízkosti:
- Nájezd na dálnici D35 jen 5 minut.
- Autobusová zastávka 270 m.
- Vlaková zastávka 850 m.
- Mateřská škola Uhersko 300 m.
- Potraviny 300 m.
- Pošta + obecní úřad 370 m.
- Vysoké Mýto 14 km, Pardubice 21km, Hradec Králové 33 km, Praha - Černý most 120 km.

Nemovitost je bez zatížení.

Neváhejte se na mě obrátit. Rád vás nemovitostí provedu a poskytnu veškeré potřebné informace.

Těším se na viděnou.

Parametry domu

Cena
9 900 000 Kč /za nemovitost Spočítat hypotéku
Poznámka k ceně
Náš finanční specialista vám připraví několik možností, jak nejlépe financovat nákup tohoto domu.
Aktualizováno
8. 2. 2026
Adresa
Uhersko
ID
PM260120
Stavba
Cihlová
Stav objektu
Novostavba
Druh objektu
Samostatný
Lokalita objektu
Klidná část obce
Užitná plocha
84 m2
Zastavěná plocha
60 m2
Plocha pozemku
834 m2
Plocha zahrady
715 m2
Třída energetické náročnosti
B - Velmi úsporná
Elektřina
230V, 400V
Odpad
Veřejná kanalizace
Komunikace
Asfaltová
Doprava
Vlak, Dálnice, Autobus
Voda
Vodovod
Topné těleso
Klimatizace
Zdroj topení
Tepelné čerpadlo
Zdroj teplé vody
Bojler - elektro
Výtah
Bezbarierový přístup
Parkování

Kontaktovat makléře

Máte zájem o tento dům?

Tímto, v souladu s nařízením Evropského parlamentu a Rady (EU) 2016/679, v platném znění, prohlašuji, že mi je alespoň 16 let a uděluji tak svůj souhlas se zpracováním zadaných údajů (jméno, telefon, e-mail, ip adresa) společnosti B3 Technology, s.r.o., IČ: 07330600, se sídlem Novostavby 126/23, 435 11 Lom (správce dat), za účelem předání dotazu z tohoto formuláře Vámi vybranému inzerentovi a zpětného kontaktování mé osoby. Osobní údaje bude správce zpracovávat manuálně i automaticky přímo prostřednictvím svých zaměstnanců. Informace předané tímto formulářem budou uloženy v databázi správce maximálně po dobu 10 let. Odvolání souhlasu s uložením a zpracováním poskytnutých dat lze e-mailem na info@bydlisnami.cz. V případě podezření na neoprávněné použití Vámi poskytnutých údajů máte právo předat podnět k šetření Úřadu pro ochranu osobních údajů. Více informací
Chystáte se prodat nemovitost?
Pomůžeme Vám!

Inzerát si prohlédlo 7 lidí

Prodejce

Petr Maček

Petr Maček

Hlídací pes

Chcete dostávat emailem podobné nabídky prodeje rodinných domů v Uhersku?

Podobné nemovitosti