Pronájem bytu 3+1, Ostrava, Pelclova, 84 m2

Pelclova, Moravská Ostrava

15 000 Kč /za měsíc Získejte výhodnou HYPOTÉKU

(Cena nájmu BEZ služeb, kauce a provize)

Doporučené firmy v Ostravě

Informace k bytu

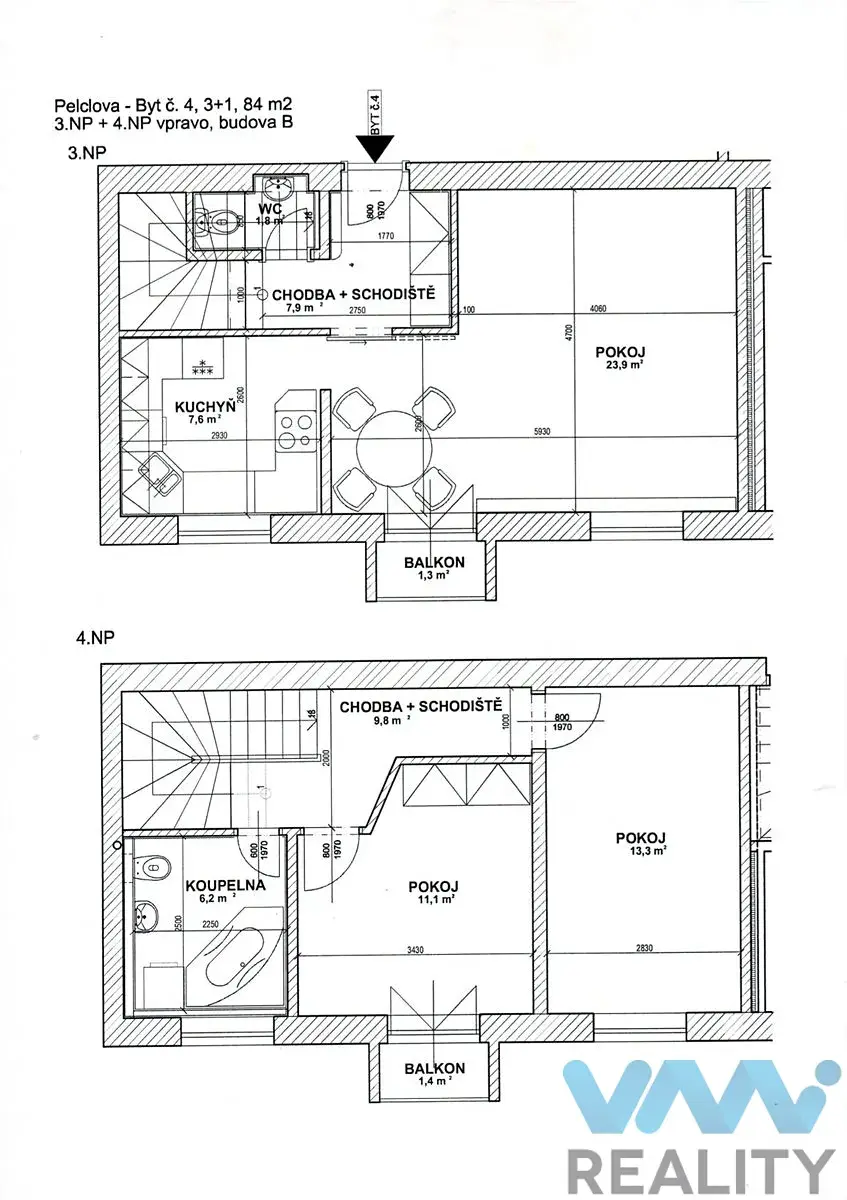
Nabízíme k pronájmu MEZONETOVÝ byt 3+1 o celkové ploše 84 m2. Byt se nachází ve III. a IV. NP z celkových pěti NP v domě s výtahem. Kuchyň je vybavená linkou, sklokeramickou deskou, elektrickou troubou a myčkou, nachází se ve III. NP společně s obývacím pokojem s balkónem a toaletou, v horní části bytu (IV. NP) jsou další dva pokoje (součástí jednoho pokoje je balkón) a koupelna s toaletou.

Možnost pronájmu parkovacího stání v ohrazené části za domem za 800,- Kč měsíčně.

Velmi žádaná lokalita v blízkosti centra města a Komenského sadů, oblíbená lokalita také cizinci - v blízkosti mezinárodní škola i školka. Cena pronájmu je Kč 15.000,- bez služeb (služby cca 5 tisíc - teplo-vlastní plynová kotelna pro dům, teplá a studená voda, elektřina, výtah, úklid a elektrická energie společných prostor, internet), vratná kauce je stanovena ve výši Kč 30.000,- a provize Kč 15.000,-. K dispozici ihned.
Doporučujeme prohlídku.

Parametry bytu

Cena
15 000 Kč /za měsíc
Poznámka k ceně
Cena nájmu BEZ služeb, kauce a provize
Aktualizováno
21. 1. 2026
Adresa
Pelclova, Moravská Ostrava
ID
0367
Stavba
Cihlová
Stav objektu
Velmi dobrý
Patro
3. z 5
Vybaveno
Ne
Lokalita objektu
Centrum obce
Vlastnictví
Osobní
Užitná plocha
84 m2
Podlahová plocha
84 m2
Třída energetické náročnosti
C - Úsporná
Elektřina
230V
Plyn
Plynovod
Odpad
Veřejná kanalizace
Komunikace
Asfaltová
Telekomunikace
Internet, Kabelové rozvody
Doprava
Vlak, Dálnice, Silnice, MHD, Autobus
Voda
Vodovod
Topné těleso
Radiátory
Balkon
Výtah

Kontaktovat makléře

Máte zájem o tento byt?

Tímto, v souladu s nařízením Evropského parlamentu a Rady (EU) 2016/679, v platném znění, prohlašuji, že mi je alespoň 16 let a uděluji tak svůj souhlas se zpracováním zadaných údajů (jméno, telefon, e-mail, ip adresa) společnosti B3 Technology, s.r.o., IČ: 07330600, se sídlem Novostavby 126/23, 435 11 Lom (správce dat), za účelem předání dotazu z tohoto formuláře Vámi vybranému inzerentovi a zpětného kontaktování mé osoby. Osobní údaje bude správce zpracovávat manuálně i automaticky přímo prostřednictvím svých zaměstnanců. Informace předané tímto formulářem budou uloženy v databázi správce maximálně po dobu 10 let. Odvolání souhlasu s uložením a zpracováním poskytnutých dat lze e-mailem na info@bydlisnami.cz. V případě podezření na neoprávněné použití Vámi poskytnutých údajů máte právo předat podnět k šetření Úřadu pro ochranu osobních údajů. Více informací
Chystáte se prodat nemovitost?
Pomůžeme Vám!

Inzerát si prohlédlo 0 lidí

Prodejce

Lenka Bernatíková

Lenka Bernatíková

Hlídací pes

Chcete dostávat emailem podobné nabídky pronájmu bytů 3+1 v Ostravě?

Podobné nemovitosti