Pronájem bytu 3+kk, Praha - Chodov, Brandlova, 60 m2

Brandlova, Praha 4

21 000 Kč /za měsíc Získejte výhodnou HYPOTÉKU
Doporučené firmy v Praze 4

Stěhovací služby

Výkup a prodej starého nábytku

Informace k bytu

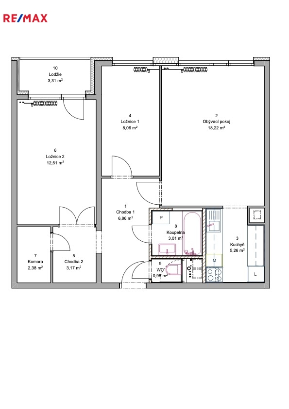
K dlouhodobému pronájmu nabízím byt 3+kk s lodžií v ulici Brandlová, Praha 4. Byt se nachází v 6. nadzemním podlaží panelového domu po revitalizaci, je ve velmi dobrém stavu a připravený k okamžitému nastěhování.

Dispozice bytu je praktická a dobře využitelná. Byt nabízí obývací pokoj s odděleným kuchyňským koutem, dva samostatné pokoje, koupelnu s vanou, samostatné WC a předsíň. U ložnice s lodžií se nachází menší komora, která poskytuje další úložný prostor.

K bytu náleží také sklep v suterénu domu. Lodžie o velikosti 3,3 m² je přístupná z ložnice.

Byt je čerstvě vymalovaný, udržovaný a působí velmi příjemným dojmem. Vybavení odpovídá fotografiím – nábytek a spotřebiče mohou v bytě zůstat, případně je možné jejich odvezení po dohodě. Parkování je možné před domem.

Lokalita Prahy 4 nabízí kompletní občanskou vybavenost a dobrou dopravní dostupnost. V okolí jsou obchody, školy, školky i zeleň. Autobusové spojení navazuje na metro linky C.

Nájemné: 21.000 Kč / měsíc
Zálohy na služby: 5.000 Kč / měsíc
Elektřina a plyn: převod na nájemce
Kauce: 30.000 Kč
Provize RK: 21.000 Kč + DPH
Volné: ihned

Byt je vhodný pro dlouhodobý pronájem.

Parametry bytu

Cena
21 000 Kč /za měsíc
Aktualizováno
21. 1. 2026
Adresa
Brandlova, Praha 4
ID
262-NP00581
Stavba
Panelová
Stav objektu
Velmi dobrý
Patro
6. z 8
Vlastnictví
Osobní
Užitná plocha
60 m2
Podlahová plocha
63 m2
Třída energetické náročnosti
G - Mimořádně nehospodárná
Plyn
Plynovod
Odpad
Veřejná kanalizace
Voda
Vodovod
Lodžie
Výtah
Bezbarierový přístup

Kontaktovat makléře

Realitní kancelář

Logo RE/MAX Scopus

RE/MAX Scopus

Olbrachtova 1065/46, Praha 4

Chystáte se prodat nemovitost?
Pomůžeme Vám!

Máte zájem o tento byt?

Tímto, v souladu s nařízením Evropského parlamentu a Rady (EU) 2016/679, v platném znění, prohlašuji, že mi je alespoň 16 let a uděluji tak svůj souhlas se zpracováním zadaných údajů (jméno, telefon, e-mail, ip adresa) společnosti B3 Technology, s.r.o., IČ: 07330600, se sídlem Novostavby 126/23, 435 11 Lom (správce dat), za účelem předání dotazu z tohoto formuláře Vámi vybranému inzerentovi a zpětného kontaktování mé osoby. Osobní údaje bude správce zpracovávat manuálně i automaticky přímo prostřednictvím svých zaměstnanců. Informace předané tímto formulářem budou uloženy v databázi správce maximálně po dobu 10 let. Odvolání souhlasu s uložením a zpracováním poskytnutých dat lze e-mailem na info@bydlisnami.cz. V případě podezření na neoprávněné použití Vámi poskytnutých údajů máte právo předat podnět k šetření Úřadu pro ochranu osobních údajů. Více informací
Chystáte se prodat nemovitost?
Pomůžeme Vám!

Inzerát si prohlédlo 0 lidí

Prodejce

Vladyslav Andel

Vladyslav Andel

Hlídací pes

Chcete dostávat emailem podobné nabídky pronájmu bytů 3+kk v Praze 4?

Podobné nemovitosti