Pronájem bytu 2+1, Praha - Vršovice, Arménská, 54 m2

Arménská, Vršovice - Praha 10

24 900 Kč /za měsíc Získejte výhodnou HYPOTÉKU

(vratná jistota, zúčtovatelné zálohy 3.610,- Kč, poplatek za podnájem)

Doporučené firmy v Praze 10

Stěhovací služby

Výkup a prodej starého nábytku

Informace k bytu

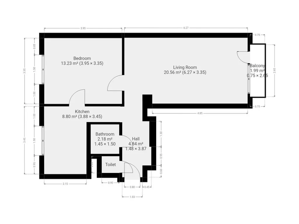
K dlouhodobému podnájmu nabízíme krásný byt po rekonstrukci o dispozici 2+1 v oblíbené lokalitě Vršovice. Byt o celkové výměře 54m2 se nachází ve druhém podlaží cihlového domu s výtahem. K bytu patří i balkon.

Byt se nabízí nevybavený. Kuchyně disponuje lednicí, myčkou, elektrickou troubou, indukční varnou deskou a digestoří. Samostatné pokoje jsou nezařízené. V koupelně je sprchový kout a umyvadlo. Toaleta je umístěna samostatně.

V okolí domu najdeme restaurace, supermarket Tesco, obchodní centrum Eden, základní a mateřskou školu, lékárnu atd. Dvě minuty chůze od domu je vzdálená tramvajová zastávka metra Koh-i-noor.

Domácí mazlíčci jsou v bytě povoleni..

Byt je volný k nastěhování od 1. 4. 2026.

Uvedena energetická kategorie G, jelikož nemáme k dispozici PENB.

Byt pronajímá Ideální nájemce - služba, se kterou budete bydlet bezstarostně a za férových podmínek. Když se něco přihodí, k dispozici jsou správci, kteří s vámi vše vyřeší. Pomůžeme s veškerou administrativou, s nastavením plateb a zajistíme vám speciální pojištění. Pojďte bydlet s námi!

Parametry bytu

Cena
24 900 Kč /za měsíc
Poznámka k ceně
vratná jistota, zúčtovatelné zálohy 3.610,- Kč, poplatek za podnájem
Aktualizováno
23. 1. 2026
Adresa
Arménská, Vršovice - Praha 10
ID
N3609
Stavba
Cihlová
Stav objektu
Velmi dobrý
Patro
2. z 6
Vybaveno
Ne
Typ objektu
Patrový
Lokalita objektu
Klidná část obce
Vlastnictví
Osobní
Užitná plocha
54 m2
Podlahová plocha
54 m2
Elektřina
230V
Topení
Ústřední dálkové
Balkon
Výtah

Kontaktovat makléře

Máte zájem o tento byt?

Tímto, v souladu s nařízením Evropského parlamentu a Rady (EU) 2016/679, v platném znění, prohlašuji, že mi je alespoň 16 let a uděluji tak svůj souhlas se zpracováním zadaných údajů (jméno, telefon, e-mail, ip adresa) společnosti B3 Technology, s.r.o., IČ: 07330600, se sídlem Novostavby 126/23, 435 11 Lom (správce dat), za účelem předání dotazu z tohoto formuláře Vámi vybranému inzerentovi a zpětného kontaktování mé osoby. Osobní údaje bude správce zpracovávat manuálně i automaticky přímo prostřednictvím svých zaměstnanců. Informace předané tímto formulářem budou uloženy v databázi správce maximálně po dobu 10 let. Odvolání souhlasu s uložením a zpracováním poskytnutých dat lze e-mailem na info@bydlisnami.cz. V případě podezření na neoprávněné použití Vámi poskytnutých údajů máte právo předat podnět k šetření Úřadu pro ochranu osobních údajů. Více informací
Chystáte se prodat nemovitost?
Pomůžeme Vám!

Inzerát si prohlédlo 6 lidí

Prodejce

Miloslava Kačerová

Miloslava Kačerová

Hlídací pes

Chcete dostávat emailem podobné nabídky pronájmu bytů 2+1 v Praze 10?

Podobné nemovitosti