Prodej bytu 2+1, Ústí nad Labem - Krásné Březno, Družstevní, 63 m2 (ID: 2529255)

Družstevní, Ústí nad Labem - Krásné Březno

2 100 000 Kč HYPOTÉKA od 9 386 Kč /za měsíc

(včetně provize RK)

Doporučené firmy v Ústí nad Labem

Okna a dveře

Rekonstrukce

Informace k bytu

Prodej bytu 2+1 63 m², Ústí nad Labem - Krásné Březno

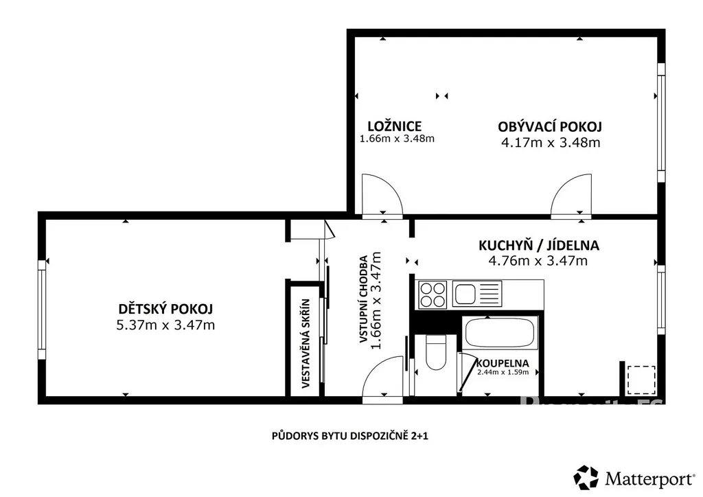
Ke koupi nabízím byt, vhodný pro začínající rodinu, případně investory o dispozicí 2+1, v osobním vlastnictví, v 6. nadzemním podlaží bytového domu s výtahem, který se nachází v Ústí nad Labem, ul. Družstevní.

Dispoziční řešení bytu nabízí vstupní chodbu, prostorný obývací pokoj, kuchyň, ložnici a koupelnu s toaletou. Nabízený byt je v původním stavu, má umakartové bytové jádro, plastová okna. Podlahovou krytinu tvoří plovoucí podlaha v kombinaci s PVC. Velmi nízké měsíční náklady, lze získat na prohlídce. K bytu náleží sklepní kóje.

V současné době je byt díky vyhledávané lokalitě a jednoduchou dostupností na dálnici D8, vhodný, jak pro vlastní bydlení, tak i pro investory k dalšímu pronájmu. Zastávka MHD v blízkosti domu, do centra Ústí nad Labem 4km, Teplice 25km, Děčín 24km.

Město Ústí nad Labem disponuje kompletní občanskou vybaveností včetně mateřské, základní i vysoké školy, nemocnice, dětské hřiště, obchody, pošta, praktický i dětský lékař, oddíl fotbalu, či hokeje a jiné sportovní vyžití.

Pokud Vás nabídka zaujala, kontaktujte náš Prosperity tým pro více informací a sjednání konkrétního termínu prohlídky. V případě více vážných zájemců bude nemovitost rezervována s klientem, který podá nejlepší nabídku. Případné financování Vám zařídíme vlastním specialistou z ProsperityFS.

Parametry bytu

Cena
2 100 000 Kč Spočítat hypotéku
Poznámka k ceně
včetně provize RK
Aktualizováno
14. 2. 2026
Adresa
Družstevní, Ústí nad Labem - Krásné Březno
ID
100531
Stavba
Panelová
Stav objektu
Dobrý
Vybaveno
Částečně
Vlastnictví
Osobní
Užitná plocha
63 m2
Třída energetické náročnosti
G - Mimořádně nehospodárná

Kontaktovat makléře

Máte zájem o tento byt?

Tímto, v souladu s nařízením Evropského parlamentu a Rady (EU) 2016/679, v platném znění, prohlašuji, že mi je alespoň 16 let a uděluji tak svůj souhlas se zpracováním zadaných údajů (jméno, telefon, e-mail, ip adresa) společnosti B3 Technology, s.r.o., IČ: 07330600, se sídlem Novostavby 126/23, 435 11 Lom (správce dat), za účelem předání dotazu z tohoto formuláře Vámi vybranému inzerentovi a zpětného kontaktování mé osoby. Osobní údaje bude správce zpracovávat manuálně i automaticky přímo prostřednictvím svých zaměstnanců. Informace předané tímto formulářem budou uloženy v databázi správce maximálně po dobu 10 let. Odvolání souhlasu s uložením a zpracováním poskytnutých dat lze e-mailem na info@bydlisnami.cz. V případě podezření na neoprávněné použití Vámi poskytnutých údajů máte právo předat podnět k šetření Úřadu pro ochranu osobních údajů. Více informací
Chystáte se prodat nemovitost?
Pomůžeme Vám!

Inzerát si prohlédlo 29 lidí

Prodejce

Marek Maturkanič

Marek Maturkanič

Hlídací pes

Chcete dostávat emailem podobné nabídky prodeje bytů 2+1 v Ústí nad Labem?

Podobné nemovitosti