Pronájem bytu 1+1, Uherské Hradiště, Františkánská, 34 m2 (ID: 2530098)

Františkánská, Uherské Hradiště

10 500 Kč /za měsíc Získejte výhodnou HYPOTÉKU

(+ služby a energie - měsíční poplatky 3 200 Kč)

Doporučené firmy v Uherském Hradišti

Informace k bytu

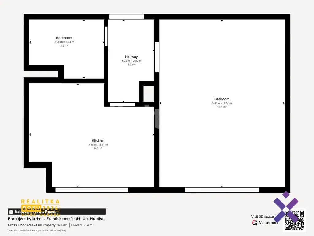
Nabízím k pronájmu byt s dispozicí 1+1 o podlahové ploše 34 m² v Uherském Hradišti. Byt se nachází v centru města na ulici Františkánská nedaleko Masarykova náměstí.

- prosvětlený byt
- skvělá dostupnost do centra města
- k dispozici sklepní koje 2x 1m
- výborná občanská vybavenost
- možnost parkování u domu


Jste jednotlivec či pár a hledáte pronájem bytu v Uherském Hradišti? Nabízím Vám útulný byt, který Vám padne do oka. Je situovaný ve 2. patře bytového domu, který se nachází v centru města.
Byt disponuje jednou obytnou místností, která kombinuje funkci obývacího prostoru a ložnice.
Koupelna se sprchovým koutem, jejíž součástí je také WC oddělené zídkou a poskytuje tak více soukromí.
V chodbě je malá vestavěná skříň.
Kuchyňská linka je vybavena sporákem s digestoří. Místnost nabízí prostor na jídelní stůl. Součástí je také pračka s vrchním plněním. K uskladnění potravin můžete využít odvětranou špajzku.
Byt je bez dalšího nábytku, což dává novému nájemci možnost zařídit si interiér dle vlastních představ.
K bytu dále náleží sklepní koje, vhodná k uložení vašich věcí.

V okolí domu najdete vše co ke komfortnímu životu potřebujete. V pěší dostupnosti pak autobusové nádraží, vlakové nádraží, kino, městské divadlo, lékárnu, potraviny i restaurace.
Nájemné činí 10 500 Kč měsíčně, zálohy na energie a služby 3 200 Kč měsíčně. Vratná kauce je vyčíslena ve výši 20 000 Kč.

Při předání se hradí odměna za realitní zprostředkování ve výši jednoho nájmu.
Budu se těšit na společné prohlídky bytu.
Ing. Martin Souček, realitní makléř Explicit Reality.

Parametry bytu

Cena
10 500 Kč /za měsíc
Poznámka k ceně
+ služby a energie - měsíční poplatky 3 200 Kč
Aktualizováno
26. 1. 2026
Adresa
Františkánská, Uherské Hradiště
ID
02574
Stavba
Panelová
Stav objektu
Dobrý
Patro
2. z 4
Vybaveno
Částečně
Vlastnictví
Osobní
Užitná plocha
34 m2
Třída energetické náročnosti
G - Mimořádně nehospodárná
Elektřina
230V
Plyn
Plynovod
Odpad
Veřejná kanalizace
Topení
Ústřední dálkové
Komunikace
Betonová, Asfaltová
Telekomunikace
Telefon, Internet
Doprava
Vlak, Silnice, MHD, Autobus
Voda
Vodovod
Sklep
Výtah
Parkování

Kontaktovat makléře

Máte zájem o tento byt?

Tímto, v souladu s nařízením Evropského parlamentu a Rady (EU) 2016/679, v platném znění, prohlašuji, že mi je alespoň 16 let a uděluji tak svůj souhlas se zpracováním zadaných údajů (jméno, telefon, e-mail, ip adresa) společnosti B3 Technology, s.r.o., IČ: 07330600, se sídlem Novostavby 126/23, 435 11 Lom (správce dat), za účelem předání dotazu z tohoto formuláře Vámi vybranému inzerentovi a zpětného kontaktování mé osoby. Osobní údaje bude správce zpracovávat manuálně i automaticky přímo prostřednictvím svých zaměstnanců. Informace předané tímto formulářem budou uloženy v databázi správce maximálně po dobu 10 let. Odvolání souhlasu s uložením a zpracováním poskytnutých dat lze e-mailem na info@bydlisnami.cz. V případě podezření na neoprávněné použití Vámi poskytnutých údajů máte právo předat podnět k šetření Úřadu pro ochranu osobních údajů. Více informací
Chystáte se prodat nemovitost?
Pomůžeme Vám!

Inzerát si prohlédlo 21 lidí

Prodejce

Ing. Martin Souček

Ing. Martin Souček

Hlídací pes

Chcete dostávat emailem podobné nabídky pronájmu bytů 1+1 v Uherském Hradišti?

Podobné nemovitosti