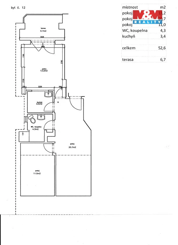
Pronájem bytu 3+1, Praha - Vršovice, Holandská, 53 m2

Holandská, Praha 10

25 000 Kč /za měsíc Získejte výhodnou HYPOTÉKU
Doporučené firmy v Praze 10

Stěhovací služby

Výkup a prodej starého nábytku

Informace k bytu

Pronájem bytu 3+1, 53 m², Praha, ul. Holandská

Nabízíme k dlouhodobému pronájmu atypický podkrovní byt 3+1 s terasou ve vyhledávané části pražských Vršovic. Byt je umístěn v 6.NP a nabízí jedinečný výhled na panorama Prahy. Dispozice bytu zahrnuje vstupní halu, která přechází v prostornou místnost, dále ložnici a obývací místnost se vstupem na terasu. Byt je zařízený kuchyňskou linkou se spotřebiči (lednička, el. varná deska, trouba, myčka). Možnost uskladnění kol nebo kočárku v suterénní místnosti domu. Díky své poloze v klidné části Vršovic získáte příjemné bydlení s výbornou dostupností do centra města. V okolí naleznete pestrou nabídku obchodů, služeb, kaváren, restaurací. Sportovní vyžití umožňuje sousedství Heroldových sadů a nedaleké Grébovky. Byt je volný k nastěhování. Neváhejte nás kontaktovat pro více informací.

Parametry bytu

Cena
25 000 Kč /za měsíc
Aktualizováno
27. 1. 2026
Adresa
Holandská, Praha 10
ID
931047
Stavba
Cihlová
Stav objektu
Dobrý
Vybaveno
Částečně
Lokalita objektu
Klidná část obce
Vlastnictví
Osobní
Užitná plocha
53 m2

Kontaktovat makléře

Realitní kancelář

Logo M&M reality

M&M reality

ulice Krakovská 583/9, Praha

Chystáte se prodat nemovitost?
Pomůžeme Vám!

Máte zájem o tento byt?

Tímto, v souladu s nařízením Evropského parlamentu a Rady (EU) 2016/679, v platném znění, prohlašuji, že mi je alespoň 16 let a uděluji tak svůj souhlas se zpracováním zadaných údajů (jméno, telefon, e-mail, ip adresa) společnosti B3 Technology, s.r.o., IČ: 07330600, se sídlem Novostavby 126/23, 435 11 Lom (správce dat), za účelem předání dotazu z tohoto formuláře Vámi vybranému inzerentovi a zpětného kontaktování mé osoby. Osobní údaje bude správce zpracovávat manuálně i automaticky přímo prostřednictvím svých zaměstnanců. Informace předané tímto formulářem budou uloženy v databázi správce maximálně po dobu 10 let. Odvolání souhlasu s uložením a zpracováním poskytnutých dat lze e-mailem na info@bydlisnami.cz. V případě podezření na neoprávněné použití Vámi poskytnutých údajů máte právo předat podnět k šetření Úřadu pro ochranu osobních údajů. Více informací
Chystáte se prodat nemovitost?
Pomůžeme Vám!

Inzerát si prohlédlo 0 lidí

Prodejce

Iveta Kukovičová

Iveta Kukovičová

Hlídací pes

Chcete dostávat emailem podobné nabídky pronájmu bytů 3+1 v Praze 10?

Podobné nemovitosti