Prodej rodinného domu, Třebechovice pod Orebem, Týnišťská, 185 m2

Týnišťská, Třebechovice pod Orebem

9 400 000 Kč /za nemovitost HYPOTÉKA od 42 012 Kč /za měsíc
Doporučené firmy v Třebechovicích pod Orebem

Informace k domu

PRODEJ NADSTANDARTNÍHO DOMU 6+1, 195 m² – TŘEBECHOVICE POD OREBEM

Znáte ten pocit, když vejdete do domu a okamžitě cítíte, že jste doma? Tento dům v Týnišťské ulici v sobě spojuje kouzlo historie s nejmodernějšími technologiemi pro pohodlný rodinný život. Nabízím vám domov, který je s láskou udržovaný a připravený na svou novou kapitolu.

Prohlédněte si dům hned teď z pohodlí svého křesla!

Tento dům si můžete projít v naprostém soukromí ještě předtím, než se potkáme osobně. Klikněte na odkaz pod textem inzerátu. Virtuální prohlídka vás provede každým zákoutím tohoto úžasného prostoru.

Dům je „ready to move“ to znamená k okamžitému nastěhování a plný chytrých řešení, která vám budou každý den dělat radost.

Hlavní parametry:
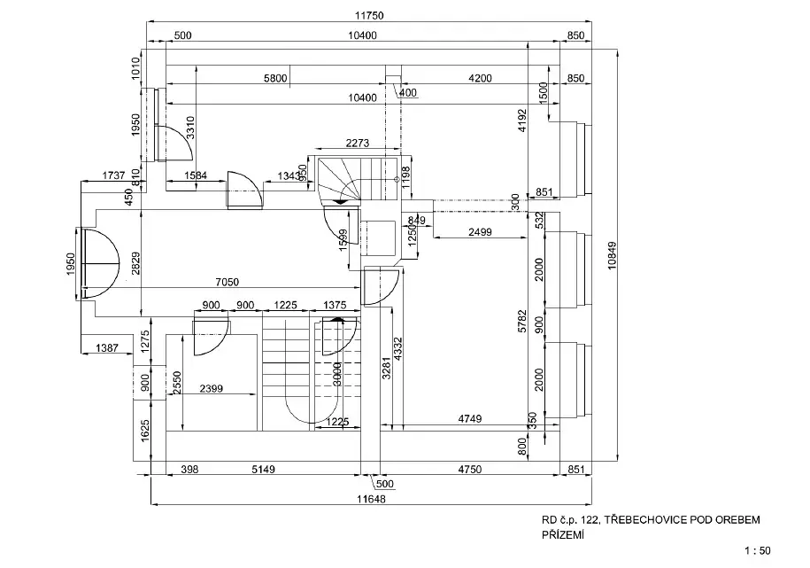
-Dispozice: 6+1 (možnost úpravy na dvě bytové jednotky díky připraveným rozvodům v patře)
-Užitná plocha: 195 m2
-Pozemek: celkem 317 m2 se zahradou která poskytuje naprosté soukromí
-Stav: Velmi dobrý, po rekonstrukci, kolaudace 2023
-Energetická náročnost: B – velmi úsporná!

Technické vybavení:

-Vytápění: plynový kondenzační kotel + krb s rozvody vzduchu
-Chlazení: nová klimatizace Syen (instalace 06/2025)
-Voda: napojení na veřejný vodovod + retenční nádrž na dešťovou vodu
-Internet: Starlink
-Parkování: garáž s vysokým stropem + druhé stání na dvoře

Dárek pro nové majitele:

Aby váš start v novém domě byl co nejjednodušší, majitelé v domě navíc ponechají špičkovou solnou vířivku Intex pro 6 osob( možno doplnit o lahev sektu), zásobu dřeva na celou zimu i vybavení jako sekačku či žebřík

Dům je v perfektním stavu, bez nutnosti dalších investic.


Proč si tento dům zamilujete?

Dispozice – 6+1
Užitná plocha – 195m2
Plocha pozemku – 317m2
Energetická třída B – Velmi úsporná
Parkování +2
Vychytávky, které jinde nenajdete !
Centrální vysavač v domě
Chytré hospodaření s vodou – nádrž
Tepelný komfort po celý rok – krb, topení, klima s topením
Domácí wellness – bonus vířivka se slanou vodou
Předokenní žaluzie


Třebechovice pod Orebem jsou ideálním místem pro rodinný život, kde máte školy i lékaře na dosah ruky a do Hradce Králové se pohodlně dostanete za 15 minut. Okolní příroda v kombinaci s veškerou občanskou vybaveností z nich dělá lokalitu, ve které najdete svůj vytoužený klid i veškerý komfort moderní doby.

Závěrem:

Koupě domu není jen o parametrech v tabulce. Je to o bezpečí, o dětském smíchu na zahradě a o pocitu, že jste konečně v cíli. Tento dům byl budován a opečováván s péčí a věřím, že tu stejnou dobrou energii v něm pocítíte i vy.

Moc ráda vám dům ukážu osobně.

Parametry domu

Cena
9 400 000 Kč /za nemovitost Spočítat hypotéku
Aktualizováno
28. 1. 2026
Adresa
Týnišťská, Třebechovice pod Orebem
ID
28012026
Stavba
Cihlová
Stav objektu
Velmi dobrý
Vybaveno
Ne
Druh objektu
V bloku
Lokalita objektu
Centrum obce
Užitná plocha
185 m2
Plocha pozemku
317 m2
Třída energetické náročnosti
B - Velmi úsporná
Elektřina
230V
Odpad
Veřejná kanalizace
Komunikace
Asfaltová
Telekomunikace
Internet
Doprava
Vlak, Silnice, MHD, Autobus
Voda
Vodovod, Retenční nádrž na dešt’ovou vodu
Topné těleso
Krbová kamna
Zdroj topení
Plynový kondenzační kotel
Zdroj teplé vody
Plynový kondenzační kotel
Garáž
Sklep
Výtah
Bezbarierový přístup
Parkování

Kontaktovat makléře

Máte zájem o tento dům?

Tímto, v souladu s nařízením Evropského parlamentu a Rady (EU) 2016/679, v platném znění, prohlašuji, že mi je alespoň 16 let a uděluji tak svůj souhlas se zpracováním zadaných údajů (jméno, telefon, e-mail, ip adresa) společnosti B3 Technology, s.r.o., IČ: 07330600, se sídlem Novostavby 126/23, 435 11 Lom (správce dat), za účelem předání dotazu z tohoto formuláře Vámi vybranému inzerentovi a zpětného kontaktování mé osoby. Osobní údaje bude správce zpracovávat manuálně i automaticky přímo prostřednictvím svých zaměstnanců. Informace předané tímto formulářem budou uloženy v databázi správce maximálně po dobu 10 let. Odvolání souhlasu s uložením a zpracováním poskytnutých dat lze e-mailem na info@bydlisnami.cz. V případě podezření na neoprávněné použití Vámi poskytnutých údajů máte právo předat podnět k šetření Úřadu pro ochranu osobních údajů. Více informací
Chystáte se prodat nemovitost?
Pomůžeme Vám!

Inzerát si prohlédlo 0 lidí

Prodejce

Štěpánka Mimrová, MBA

Štěpánka Mimrová, MBA

Hlídací pes

Chcete dostávat emailem podobné nabídky prodeje rodinných domů v Třebechovicích pod Orebem?

Podobné nemovitosti