Prodej bytu 4+1, Ústí nad Labem, Maková, 95 m2

Maková, Ústí nad Labem, Severní Terasa

4 100 000 Kč /za nemovitost HYPOTÉKA od 18 325 Kč /za měsíc

(služby 5661,-Kč + elektřina)

Doporučené firmy v Ústí nad Labem

Okna a dveře

Rekonstrukce

Informace k bytu

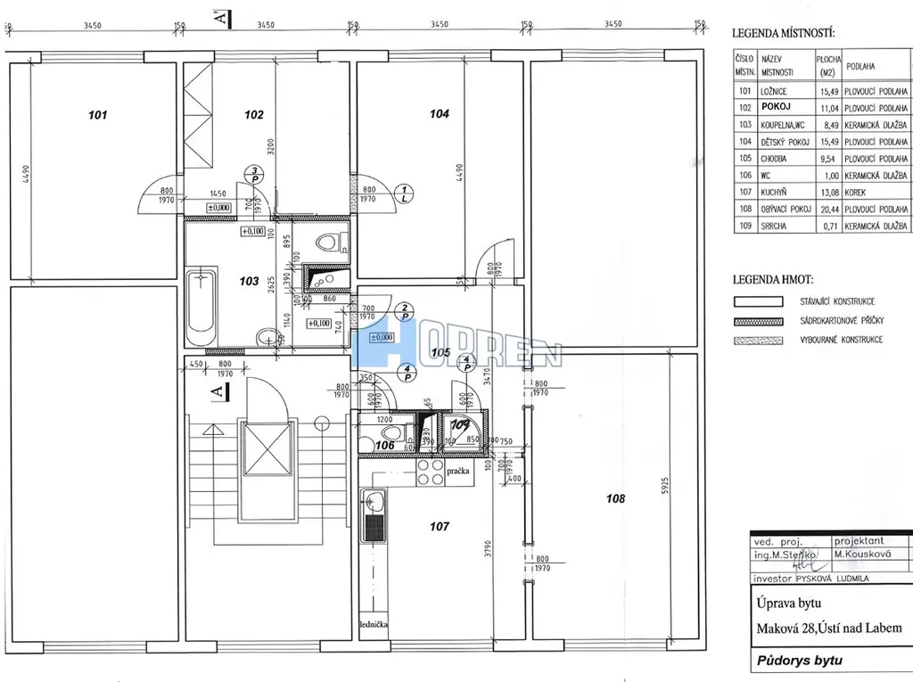
Nabízíme k prodeji velký družstevní byt 95 m2 (sloučení 2 bytů) umístěného v 6. patře panelového domu v ulici Maková, v lokalitě Severní Terasa. Byt je možné převést do OV. Jednotka je orientována na obě strany bytového domu tj. Z-V, s výhledem do okolní krajiny a do vzrostlé zeleně mezi bytovými domy. Prostorná kuchyň, s linkou a vestavěnými spotřebiči, umožňuje i umístění jídelního stolu. Ve středu bytu je situována velká koupelna se závěsným WC, rohovou vanou a sprchovým koutem, dále zde vyniká koupelnová galerie a skříňka s dvojumyvadlem. V bytě je také ještě samostatná toaleta. V bytové jednotce jsou také instalovány vestavěné skříně. Podlahy pokrývá dlažba a plovoucí lamino. K užívání bytu náleží i lodžie umístěná na mezipatře a sklep. Velká Terasa je oblíbené místo k bydlení v Ústí nad Labem. Nedaleko se nachází centrální park Severní Terasa s velkým množstvím venkovních prvků pro pasivní i aktivní odpočinek. Okolní příroda je téměř na dosah ruky, např. Erbenova vyhlídka umožňuje výhledy do širokého okolí. Veškerá občanská vybavenost je v blízkosti domu. Prohlídky po domluvě.

Parametry bytu

Cena
4 100 000 Kč /za nemovitost Spočítat hypotéku
Poznámka k ceně
služby 5661,-Kč + elektřina
Aktualizováno
29. 1. 2026
Adresa
Maková, Ústí nad Labem, Severní Terasa
ID
26001
Stavba
Panelová
Stav objektu
Dobrý
Patro
7.
Lokalita objektu
Klidná část obce
Vlastnictví
Družstevní
Užitná plocha
95 m2
Podlahová plocha
95 m2
Třída energetické náročnosti
D - Méně úsporná
Ukazatel energetické náročnosti
119 kWh/m2 za rok
Odpad
Veřejná kanalizace
Topení
Ústřední dálkové
Komunikace
Asfaltová
Doprava
MHD
Zdroj topení
Ústřední dálkové
Zdroj teplé vody
Centrální dálkový ohřev
Sklep
Výtah
Bezbarierový přístup
Převod do OV

Kontaktovat makléře

Realitní kancelář

HORREN, s.r.o.

Pobřežní 6/58, Praha 8

Chystáte se prodat nemovitost?
Pomůžeme Vám!

Máte zájem o tento byt?

Tímto, v souladu s nařízením Evropského parlamentu a Rady (EU) 2016/679, v platném znění, prohlašuji, že mi je alespoň 16 let a uděluji tak svůj souhlas se zpracováním zadaných údajů (jméno, telefon, e-mail, ip adresa) společnosti B3 Technology, s.r.o., IČ: 07330600, se sídlem Novostavby 126/23, 435 11 Lom (správce dat), za účelem předání dotazu z tohoto formuláře Vámi vybranému inzerentovi a zpětného kontaktování mé osoby. Osobní údaje bude správce zpracovávat manuálně i automaticky přímo prostřednictvím svých zaměstnanců. Informace předané tímto formulářem budou uloženy v databázi správce maximálně po dobu 10 let. Odvolání souhlasu s uložením a zpracováním poskytnutých dat lze e-mailem na info@bydlisnami.cz. V případě podezření na neoprávněné použití Vámi poskytnutých údajů máte právo předat podnět k šetření Úřadu pro ochranu osobních údajů. Více informací
Chystáte se prodat nemovitost?
Pomůžeme Vám!

Inzerát si prohlédlo 1 lidí

Prodejce

Roman Macoun

Roman Macoun

Hlídací pes

Chcete dostávat emailem podobné nabídky prodeje bytů 4+1 v Ústí nad Labem?

Podobné nemovitosti