Prodej rodinného domu, Záchlumí, 101 m2 (ID: 2533583)

Záchlumí

5 846 000 Kč /za nemovitost HYPOTÉKA od 26 128 Kč /za měsíc
Doporučené firmy v Záchlumí

Stěhovací služby

Pojištění a finance

Informace k domu

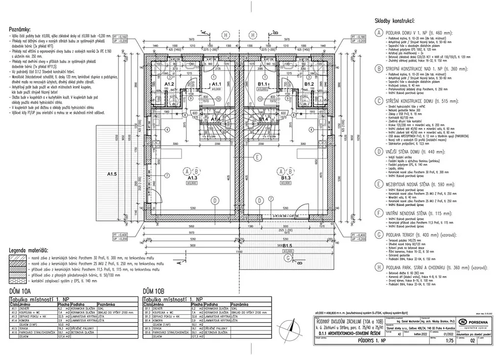
Prodej novostavby poloviny dvojdomu 4+kk v obci Záchlumí u Stříbra. Dům nabízí užitnou plochu 101 m² a je umístěn na pozemku o velikosti 390 m². Cena je včetně pozemku a DPH, bez skrytých nákladů. Jedná se o moderní, nízkoenergetické bydlení v klidné lokalitě s výbornou občanskou vybaveností.

Dispozice domu 4+kk zajišťuje prostorné a světlé pokoje, které splní potřeby rodiny i jednotlivců. Stavba je řešena jako zděný dům z broušených cihel Porotherm, se železobetonovým schodištěm a keramickými stropy Porotherm + Miako. Střešní konstrukci tvoří dřevěný krov se střešní krytinou z PVC. Okna jsou plastová, trojskla, s vysokou izolační schopností. Energetická náročnost budovy je B, což znamená úsporný provoz a nižší měsíční náklady. Součástí standardu je fotovoltaická elektrárna 2,2 kW bez baterií, deskové radiátory napojené na plynový kotel Vaillant s ohřevem vody, rozvody vody a kanalizace v plastu, elektroinstalace s přípravou pro satelit a EZS, štukové omítky, bílé malby, fasádní zateplovací systém EPS 14 cm, klempířské prvky TiZn a okapový štěrkový chodník.

Dům je dodáván v provedení STANDARD: koupelny vybaveny obklady, dlažbami a sanitou, interiérové dveře Sapeli foliové, podlahy laminátové, v ceně jsou hrubé terénní úpravy do 3 m od domu a příjezdová cesta ze zámkové dlažby o ploše 25 m². Vybavení zahrnuje také parapety, vnitřní i venkovní klempířské prvky a kompletní rozvody. Cena neobsahuje venkovní žaluzie a oplocení pozemku, kuchyň.

Možné klientské změny před zahájením výstavby: úprava dispozic nenosných příček, změny rozvodů vody, kanalizace, elektro a topení, možnost vybudování komína pro krb nebo kamna. Další vnitřní úpravy lze řešit individuálně.

Projekt se nachází v obci Záchlumí u Stříbra, 30 km západně od Plzně, 5 km od Stříbra a 9 km od Konstantinových Lázní. Obec leží v mírném jižním svahu a disponuje bohatou občanskou vybaveností: nová škola a školka, obecní úřad, knihovna, sportoviště, kulturní akce, nový zdroj pitné vody a historické památky, včetně gotického kostela Narození Panny Marie. Lokalita je obklopena přírodou a protkaná cyklostezkami, ideální pro aktivní rodiny i milovníky klidu.

K dispozici je parkování přímo u domu, nízké provozní náklady a možnost prohlídky vzorového domu, abyste získali představu o kvalitě provedení a komfortu bydlení. Termín dokončení je srpen 2027.

Pokud hledáte moderní, komfortní a úsporné rodinné bydlení v atraktivní lokalitě s kompletní občanskou vybaveností, je tento dům ideální volbou. Kontaktujte nás pro více informací a rezervujte si svůj nový domov včas.

Parametry domu

Cena
5 846 000 Kč /za nemovitost Spočítat hypotéku
Aktualizováno
8. 4. 2026
Adresa
Záchlumí
ID
Záchlumí 10B
Stavba
Cihlová
Stav objektu
Novostavba
Užitná plocha
101 m2
Plocha pozemku
390 m2
Třída energetické náročnosti
B - Velmi úsporná
Ukazatel energetické náročnosti
96 kWh/m2 za rok
Parkování

Kontaktovat makléře

Máte zájem o tento dům?

Tímto, v souladu s nařízením Evropského parlamentu a Rady (EU) 2016/679, v platném znění, prohlašuji, že mi je alespoň 16 let a uděluji tak svůj souhlas se zpracováním zadaných údajů (jméno, telefon, e-mail, ip adresa) společnosti B3 Technology, s.r.o., IČ: 07330600, se sídlem Novostavby 126/23, 435 11 Lom (správce dat), za účelem předání dotazu z tohoto formuláře Vámi vybranému inzerentovi a zpětného kontaktování mé osoby. Osobní údaje bude správce zpracovávat manuálně i automaticky přímo prostřednictvím svých zaměstnanců. Informace předané tímto formulářem budou uloženy v databázi správce maximálně po dobu 10 let. Odvolání souhlasu s uložením a zpracováním poskytnutých dat lze e-mailem na info@bydlisnami.cz. V případě podezření na neoprávněné použití Vámi poskytnutých údajů máte právo předat podnět k šetření Úřadu pro ochranu osobních údajů. Více informací
Chystáte se prodat nemovitost?
Pomůžeme Vám!
Theleadway banner

Inzerát si prohlédlo 8 lidí

Prodejce

Jiří Vlasák

Jiří Vlasák

Hlídací pes

Chcete dostávat emailem podobné nabídky prodeje rodinných domů v Záchlumí (okr. Tachov)?

Podobné nemovitosti