Pronájem komerční nemovitosti, Šumperk, M. R. Štefánika, 632 m2 (ID: 2534022)

M. R. Štefánika, Šumperk

60 000 Kč /za měsíc Získejte výhodnou HYPOTÉKU

(+ energie)

Doporučené firmy v Šumperku

Informace k nemovitosti

Pokud hledáte vhodný prostor, který by mohl sloužit k realizaci vašeho podnikatelského záměru, tak právě pro vás máme zajímavou nabídku pronájmu víceúčelového nebytového prostoru, který se nachází v retailovém areálu „OC Praděd“(dříve obchodní centrum„KORZO“), který se nachází v samotném centru Šumperka na ulici M.R.Štefánika, tudíž je hojně navštěvovaným místem nejen pro zdejší obyvatele.

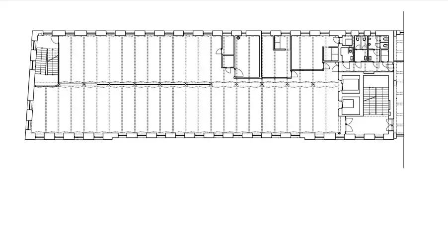
V současné době se areál postupně přeměňuje na moderní víceúčelový objekt, který vám nabídne dostatek obchodních, kancelářských prostor nebo zázemí pro nové ordinace lékařů, ale možná i vizionáře pro zcela jiný projekt. V nabídce nově nabízíme dlouhodobý pronájem prostoru s velkorysou výměrou 632m2, který je umístěný ve 3.NP obchodního centra s výtahem. Stávající sociální zázemí je k dispozici. Po dohodě je možné provést stavební úpravy nájemcem a náklady zohlednit v ceně nájmu (fotografie jsou vizualizace, jak by mohla vypadat vaše nová ordinace se zázemím).

Prostor lze také využít jako showroom se skladem nebo samostatný obchodní prostor. Flexibilita v dělení prostoru umožňuje přizpůsobení potřebám různým obchodním konceptům se široký potenciálem využití.

Prostory jsou volné od 1.1.2025, prohlídky po předchozí dohodě. Benefitem tohoto nebytového prostoru je bezesporu již zmíněná poloha v centru města. Možnost parkování za objektem. Jestliže k Vašemu podnikání potřebujete podobné zázemí, můžete se i vy stát součástí tohoto obchodního centra PRADĚD.

Nájemné: 60.000Kč/měsíc + energie

Parametry nemovitosti

Cena
60 000 Kč /za měsíc
Poznámka k ceně
+ energie
Aktualizováno
30. 1. 2026
Adresa
M. R. Štefánika, Šumperk
Stavba
Cihlová
Stav objektu
Velmi dobrý
Patro
3. z 4
Užitná plocha
632 m2
Třída energetické náročnosti
G - Mimořádně nehospodárná
Elektřina
230V, 400V
Plyn
Plynovod
Odpad
Veřejná kanalizace
Topení
Ústřední plynové
Komunikace
Asfaltová
Telekomunikace
Internet
Doprava
MHD
Voda
Vodovod
Zdroj topení
Plynový kondenzační kotel
Výtah
Parkování

Kontaktovat makléře

Máte zájem o tuto nemovistost?

Tímto, v souladu s nařízením Evropského parlamentu a Rady (EU) 2016/679, v platném znění, prohlašuji, že mi je alespoň 16 let a uděluji tak svůj souhlas se zpracováním zadaných údajů (jméno, telefon, e-mail, ip adresa) společnosti B3 Technology, s.r.o., IČ: 07330600, se sídlem Novostavby 126/23, 435 11 Lom (správce dat), za účelem předání dotazu z tohoto formuláře Vámi vybranému inzerentovi a zpětného kontaktování mé osoby. Osobní údaje bude správce zpracovávat manuálně i automaticky přímo prostřednictvím svých zaměstnanců. Informace předané tímto formulářem budou uloženy v databázi správce maximálně po dobu 10 let. Odvolání souhlasu s uložením a zpracováním poskytnutých dat lze e-mailem na info@bydlisnami.cz. V případě podezření na neoprávněné použití Vámi poskytnutých údajů máte právo předat podnět k šetření Úřadu pro ochranu osobních údajů. Více informací
Chystáte se prodat nemovitost?
Pomůžeme Vám!

Inzerát si prohlédlo 0 lidí

Prodejce

Renáta Venclová

Renáta Venclová

Hlídací pes

Chcete dostávat emailem podobné nabídky pronájmu komerčních nemovitostí v Šumperku?

Top nabídky

Podobné nemovitosti