Prodej rodinného domu, Vranovice-Kelčice - Kelčice, 150 m2 (ID: 2534430)

Vranovice-Kelčice

1 990 000 Kč /za nemovitost HYPOTÉKA od 8 894 Kč /za měsíc

(Neplatíte provizi RK)

Doporučené firmy v Vranovicích

Informace k domu

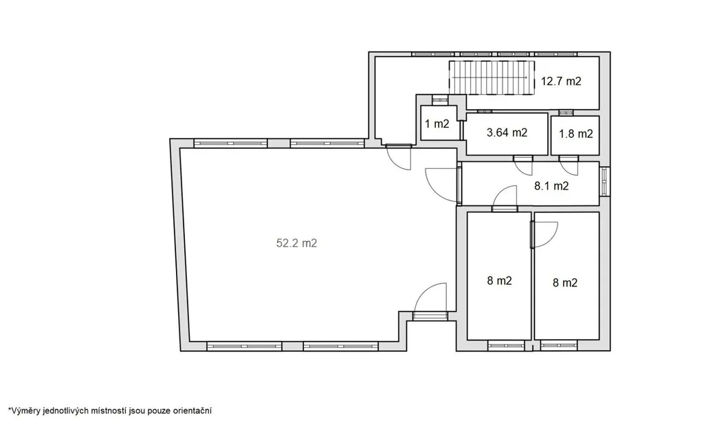
Nabízíme k prodeji menší rodinný dům s pozemkem o výměře 407 m2.
Nemovitost je koncipována jako bydlení 1+1 s dílnou (dílna 52 m2), RD částečně podsklepen, ve 2.NP půdní prostor. V katastru nemovitostí objekt veden jako rodinný dům, pozemek stavební. Po splnění podmínek lze k rekonstrukci či nové výstavbě RD čerpat dotační program nová zelená úsporám (oprav dům po babičce) až do výše 1.500.000,-Kč. Lze také vyřídit zvýhodněný úvěr až do výše dvojnásobku dotace bez zajištění.
Na stavebním úřadě předjednána i možnost výstavby nového RD.
Možné využití jako chalupa, podnikání se zázemím, po úpravách na trvalé bydlení.
Na pozemku kůlna, přístřešek pro případné parkování vozu.
Připojena voda, elektřina, vnitřní septik s přepadem napojen na obecní kanalizaci. Plyn není připojen (před domem v obecní komunikaci), topení na tuhá paliva.
Stavba přibližně z roku 1970.
V obci potřebná občanská vybavenost, napojení na dálnici D1.
Na nemovitosti nevázne žádné zástavní právo, lze řešit hypotečním úvěrem.
V případě zájmu o podrobné informace a prohlídku domu kontaktujte makléře zakázky.

Parametry domu

Cena
1 990 000 Kč /za nemovitost Spočítat hypotéku
Poznámka k ceně
Neplatíte provizi RK
Aktualizováno
30. 1. 2026
Adresa
Vranovice-Kelčice
ID
2026-01-30-1
Stavba
Smíšená
Stav objektu
Před rekonstrukcí
Typ objektu
Přízemní
Druh objektu
Samostatný
Lokalita objektu
Centrum obce
Užitná plocha
150 m2
Podlahová plocha
95 m2
Plocha pozemku
407 m2
Třída energetické náročnosti
C - Úsporná
Elektřina
230V
Topení
Lokální tuhá paliva
Komunikace
Asfaltová
Doprava
Dálnice, MHD
Voda
Vodovod
Výtah
Bezbarierový přístup

Kontaktovat makléře

Máte zájem o tento dům?

Tímto, v souladu s nařízením Evropského parlamentu a Rady (EU) 2016/679, v platném znění, prohlašuji, že mi je alespoň 16 let a uděluji tak svůj souhlas se zpracováním zadaných údajů (jméno, telefon, e-mail, ip adresa) společnosti B3 Technology, s.r.o., IČ: 07330600, se sídlem Novostavby 126/23, 435 11 Lom (správce dat), za účelem předání dotazu z tohoto formuláře Vámi vybranému inzerentovi a zpětného kontaktování mé osoby. Osobní údaje bude správce zpracovávat manuálně i automaticky přímo prostřednictvím svých zaměstnanců. Informace předané tímto formulářem budou uloženy v databázi správce maximálně po dobu 10 let. Odvolání souhlasu s uložením a zpracováním poskytnutých dat lze e-mailem na info@bydlisnami.cz. V případě podezření na neoprávněné použití Vámi poskytnutých údajů máte právo předat podnět k šetření Úřadu pro ochranu osobních údajů. Více informací
Chystáte se prodat nemovitost?
Pomůžeme Vám!

Inzerát si prohlédlo 0 lidí

Prodejce

Kateřina Sedláčková

Kateřina Sedláčková

Hlídací pes

Chcete dostávat emailem podobné nabídky prodeje rodinných domů v Vranovicích?

Podobné nemovitosti