Prodej rodinného domu, Svoboda nad Úpou, Sluneční stráň, 246 m2 (ID: 2535063)

Sluneční stráň, Svoboda nad Úpou

Cena na vyžádání /za nemovitost Získejte výhodnou HYPOTÉKU

(dohodou, cena k jednání)

Doporučené firmy v Svobodě nad Úpou

Informace k domu

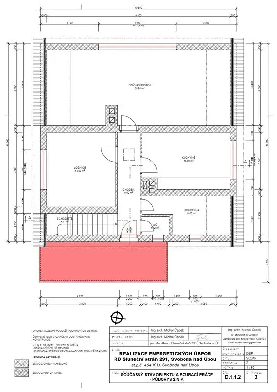
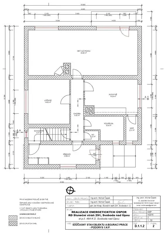
K rodinnému domu, který je situován uprostřed pozemku, vede slepá ulice, což majiteli zaručuje absolutní klid. Dům je dispozičně řešen ve třech podlažích, kdy první je částečně zapuštěné do svažitého terénu s plochou 96,9m2 a se samostatným vchodem. Ve druhém podlaží je bytová jednotka s dispozicí 3+1 (98,8m2 + balkon 4,8m2). Do třetího podlaží o dispozici 3+1 (88,4m2 + terasa 10,6m2) vede samostatné schodiště. Podrobnosti najdete na plánku půdorysů. Vnitřní prostory jsou vhodné k celkovým úpravám, které si nový majitel navrhne podle svých představ.
V roce 2019 bylo provedeno zateplení celého domu včetně výměny oken. Před domem je nově vydlážděné prostranství, které umožňuje parkování minimálně 6 vozů. Voda je vedena z veřejného vodovodu, topení je v domě zajištěno dálkovým horkovodem, odpady jsou svedeny do kanalizace.
Koupě tohoto domu je ale také neopakovatelnou investiční příležitostí. V domě je možné prostory upravit na tři samostatné bytové jednotky, které lze velmi dobře krátkodobě pronajímat.
Svoboda nad Úpou má unikátní polohu, můžete se z ní vydat do různých směrů, ať to jsou Jánské Lázně s lanovkou na Černou horu, nebo některé z lyžařských středisek - Pec pod Sněžkou, Mladé Buky, či Pomezní Boudy. V okolí najdete nepřeberné sportovní vyžití s relaxací a odpočinkem v čisté přírodě Krkonošského národního parku. Máte rádi Krkonoše? Pokud ano, pak právě Vám nabízíme jedinečnou příležitost ke koupi domu v místě, kde si budete užívat lyžařských středisek, hrát golf, podnikat výlety na kole po cyklotrasách, procházet se krásnou přírodou národního parku, nebo jen tak relaxovat na přírodním lesním koupališti Sejfy. Toto vše můžete mít v dosahu 15 minut jízdy autem a přitom bydlet v jedné z nejžádanějších částí Svobody nad Úpou - na Sluneční stráni. Autobusové a vlakové nádraží se zastávkou cyklo a SKI busu je jen pár minut od domu.
Rádi Vás přivítáme na prohlídce této výjimečné nemovitosti s velkým investičním potenciálem. Nechte své peníze vydělávat a zároveň si užívejte krásného prostředí Krkonoš.

Parametry domu

Cena
Cena na vyžádání Spočítat hypotéku
Poznámka k ceně
dohodou, cena k jednání
Aktualizováno
30. 1. 2026
Adresa
Sluneční stráň, Svoboda nad Úpou
ID
00074
Stavba
Cihlová
Stav objektu
Dobrý
Vybaveno
Částečně
Druh objektu
Samostatný
Lokalita objektu
Klidná část obce
Užitná plocha
246 m2
Zastavěná plocha
179 m2
Podlahová plocha
366 m2
Plocha pozemku
780 m2
Třída energetické náročnosti
G - Mimořádně nehospodárná
Odpad
Veřejná kanalizace
Doprava
Vlak, Silnice, Autobus
Voda
Vodovod
Topné těleso
Radiátory
Zdroj topení
Centrální dálkové
Zdroj teplé vody
Centrální dálkový ohřev
Parkování

Kontaktovat makléře

Máte zájem o tento dům?

Tímto, v souladu s nařízením Evropského parlamentu a Rady (EU) 2016/679, v platném znění, prohlašuji, že mi je alespoň 16 let a uděluji tak svůj souhlas se zpracováním zadaných údajů (jméno, telefon, e-mail, ip adresa) společnosti B3 Technology, s.r.o., IČ: 07330600, se sídlem Novostavby 126/23, 435 11 Lom (správce dat), za účelem předání dotazu z tohoto formuláře Vámi vybranému inzerentovi a zpětného kontaktování mé osoby. Osobní údaje bude správce zpracovávat manuálně i automaticky přímo prostřednictvím svých zaměstnanců. Informace předané tímto formulářem budou uloženy v databázi správce maximálně po dobu 10 let. Odvolání souhlasu s uložením a zpracováním poskytnutých dat lze e-mailem na info@bydlisnami.cz. V případě podezření na neoprávněné použití Vámi poskytnutých údajů máte právo předat podnět k šetření Úřadu pro ochranu osobních údajů. Více informací
Chystáte se prodat nemovitost?
Pomůžeme Vám!

Inzerát si prohlédlo 0 lidí

Prodejce

Robert Somr

Robert Somr

Hlídací pes

Chcete dostávat emailem podobné nabídky prodeje rodinných domů v Svobodě nad Úpou?

Podobné nemovitosti