Prodej rodinného domu, Pyšely, V Rákosí, 118 m2

V Rákosí, Pyšely, Zaječice

10 900 000 Kč /za nemovitost HYPOTÉKA od 48 716 Kč /za měsíc
Doporučené firmy v Pyšelích

Informace k domu

Moderní rodinné bydlení s pocitem samostatného domu – Pyšely - Zaječice
Hledáte klidné a úsporné bydlení kousek od Prahy?
Nabízíme ke koupi novostavbu krajní jednotky moderního trojdomu v obci Zaječice, která díky své poloze poskytuje maximum soukromí a komfort srovnatelný se samostatně stojícím domem.
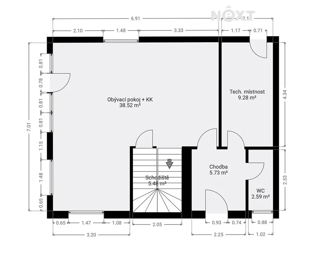
Dům o dispozici 4+kk a užitné ploše 118 m² nabízí promyšlené a funkční uspořádání.
V přízemí se nachází prostorný obývací pokoj s krbovými kamny a přímým vstupem na zahradu, kuchyňský kout, technická místnost, samostatná toaleta a praktický úložný prostor pod schodištěm. V patře jsou tři samostatné ložnice a koupelna s vanou a toaletou.
K domu náleží zahrada o velikosti 280 m², ideální pro relaxaci, či rodinné posezení. Parkování je zajištěno dvěma venkovními stáními přímo u domu.
O vysoký komfort bydlení se stará elektrické podlahové vytápění, venkovní žaluzie a velmi nízké provozní náklady.
Lokalita nabízí klidné bydlení s výbornou dostupností – metro Háje je vzdáleno pouhých 20 minut jízdy autem, za 3 minuty jste na Benešovské a za další 3 minuty již jedete po dálnici D1. V nedalekých Senohrabech je i vlak s linkou na Prahu a kousek od domu jezdí i autobusy. Pro komunikaci uvádějte evidenční číslo zakázky N116021.

Parametry domu

Cena
10 900 000 Kč /za nemovitost Spočítat hypotéku
Aktualizováno
31. 1. 2026
Adresa
V Rákosí, Pyšely, Zaječice
ID
N116021
Stavba
Dřevěná
Stav objektu
Novostavba
Vybaveno
Ne
Druh objektu
Samostatný
Užitná plocha
118 m2
Podlahová plocha
124 m2
Plocha pozemku
465 m2
Třída energetické náročnosti
G - Mimořádně nehospodárná
Odpad
Veřejná kanalizace
Topení
Lokální tuhá paliva, Lokální elektrické
Komunikace
Asfaltová
Doprava
Vlak, Dálnice, Silnice
Voda
Vodovod
Topné těleso
Podlahové vytápění, Krbová kamna
Zdroj topení
Elektrokotel
Zdroj teplé vody
Elektrokotel
Bezbarierový přístup
Parkování

Kontaktovat makléře

Máte zájem o tento dům?

Tímto, v souladu s nařízením Evropského parlamentu a Rady (EU) 2016/679, v platném znění, prohlašuji, že mi je alespoň 16 let a uděluji tak svůj souhlas se zpracováním zadaných údajů (jméno, telefon, e-mail, ip adresa) společnosti B3 Technology, s.r.o., IČ: 07330600, se sídlem Novostavby 126/23, 435 11 Lom (správce dat), za účelem předání dotazu z tohoto formuláře Vámi vybranému inzerentovi a zpětného kontaktování mé osoby. Osobní údaje bude správce zpracovávat manuálně i automaticky přímo prostřednictvím svých zaměstnanců. Informace předané tímto formulářem budou uloženy v databázi správce maximálně po dobu 10 let. Odvolání souhlasu s uložením a zpracováním poskytnutých dat lze e-mailem na info@bydlisnami.cz. V případě podezření na neoprávněné použití Vámi poskytnutých údajů máte právo předat podnět k šetření Úřadu pro ochranu osobních údajů. Více informací
Chystáte se prodat nemovitost?
Pomůžeme Vám!

Inzerát si prohlédlo 6 lidí

Prodejce

Ladislav Nedvěd

Ladislav Nedvěd

Hlídací pes

Chcete dostávat emailem podobné nabídky prodeje rodinných domů v Pyšelích?

Top nabídky

Podobné nemovitosti