Soccer reality

Pronájem bytu 3+kk, Praha - Střížkov, Zakšínská, 77 m2

Zakšínská, Střížkov - Praha 9

29 900 Kč /za měsíc Získejte výhodnou HYPOTÉKU

(vratná jistota, náklady na bydlení 6 900 Kč , poplatek za podnájem)

Doporučené firmy v Praze 9

Stěhovací služby

Výkup a prodej starého nábytku

Informace k bytu

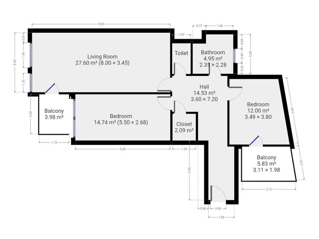
K dlouhodobému podnájmu nabízíme pěkný byt o dispozici 3+kk v atraktivní lokalitě Praha - Střížkov. Byt o celkové výměře 77 m2 se nachází ve čtvrtém patře cihlové novostavby s výtahem. K bytu patří i dva balkóny. V bytě je i komora. K bytu patří parkovací místo ve společné garáži.

Byt se nabízí částečně vybavený. Kuchyně disponuje lednicí, elektrickou troubou, myčkou, sporákem, digestoří, mikrovlnnou troubou a jídelním stolem s židlemi. Obývací část je zařízena pohovkou a komodou s televizí. Součástí ložnice je postel a šatní skříň. Druhý pokoj je nezařízený. V koupelně najdeme vanu, umyvadlo a pračku. Toaleta je oddělená. Na chodbě jsou úložné skříně.

V okolí domu jsou restaurace, kavárna, Park Střížkov, dětské hřiště, základní škola atd. Vynikající dostupnost na metro - stanice Střížkov je vzdálená deset minut chůze od domu.

Byt je dostupný od 1.3.2026

Uvedena energetická kategorie G, jelikož nemáme k dispozici PENB.

Byt pronajímá Ideální nájemce - služba, se kterou budete bydlet bezstarostně a za férových podmínek. Když se něco přihodí, k dispozici jsou správci, kteří s vámi vše vyřeší. Pomůžeme s veškerou administrativou, s nastavením plateb a zajistíme vám speciální pojištění. Pojďte bydlet s námi!

Parametry bytu

Cena
29 900 Kč /za měsíc
Poznámka k ceně
vratná jistota, náklady na bydlení 6 900 Kč , poplatek za podnájem
Aktualizováno
31. 1. 2026
Adresa
Zakšínská, Střížkov - Praha 9
ID
N3063
Stavba
Cihlová
Stav objektu
Novostavba
Patro
4. z 6
Vybaveno
Částečně
Typ objektu
Patrový
Lokalita objektu
Klidná část obce
Vlastnictví
Osobní
Užitná plocha
77 m2
Podlahová plocha
77 m2
Elektřina
230V
Topení
Ústřední dálkové
Balkon
Výtah
Parkování

Kontaktovat makléře

Máte zájem o tento byt?

Tímto, v souladu s nařízením Evropského parlamentu a Rady (EU) 2016/679, v platném znění, prohlašuji, že mi je alespoň 16 let a uděluji tak svůj souhlas se zpracováním zadaných údajů (jméno, telefon, e-mail, ip adresa) společnosti B3 Technology, s.r.o., IČ: 07330600, se sídlem Novostavby 126/23, 435 11 Lom (správce dat), za účelem předání dotazu z tohoto formuláře Vámi vybranému inzerentovi a zpětného kontaktování mé osoby. Osobní údaje bude správce zpracovávat manuálně i automaticky přímo prostřednictvím svých zaměstnanců. Informace předané tímto formulářem budou uloženy v databázi správce maximálně po dobu 10 let. Odvolání souhlasu s uložením a zpracováním poskytnutých dat lze e-mailem na info@bydlisnami.cz. V případě podezření na neoprávněné použití Vámi poskytnutých údajů máte právo předat podnět k šetření Úřadu pro ochranu osobních údajů. Více informací
Chystáte se prodat nemovitost?
Pomůžeme Vám!

Inzerát si prohlédlo 1 lidí

Prodejce

Miloslava Kačerová

Miloslava Kačerová

Hlídací pes

Chcete dostávat emailem podobné nabídky pronájmu bytů 3+kk v Praze 9?

Podobné nemovitosti