Pronájem bytu 5+kk, Praha - Vinohrady, Mánesova, 120 m2

Mánesova, Praha 2

35 000 Kč /za měsíc Získejte výhodnou HYPOTÉKU

(+ poplatky 850,Kč/os. + elektřina, plyn.)

Doporučené firmy v Praze 2

Stěhovací služby

Výkup a prodej starého nábytku

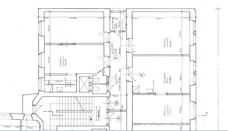
Informace k bytu

Nabízíme k pronájmu prostorný a světlý byt 5+kk, o celkové podlahové ploše 120m2, který prošel před pár lety rekonstrukcí. Byt se nachází ve 3 NP, s výtahem do mezipatra domu. Skládá se z velké vstupní předsíně (chodby), která je středem bytu, a z které se viz přiložený půdorys vstupuje do obytných místností. Dispozice celkem pěti prostorných pokojů, z toho tři jsou samostatné a neprůchozí (vhodné pro spolubydlení) a dva jsou průchozí (obývací pokoj) a pokoj užívaný historicky jako velká jídelna, který je průchozí do menšího prostoru kuchyně, která je vybavená menší kuchyňskou linkou (kombinovaný sporák, plynová varná deska, místo pro případnou myčku nádobí. Koupelna s vanou, místem pro pračku a vlastním plynovým etážovým kotlem, dále 2x samostatné WC. Podlahy jsou parketové a pvc. Lokalita pražských Vinohrad nabízí perfektní bydlení s s kompletní občanskou vybaveností ( v blízkosti tramvajová zastávka a pěší chůzí dostupné metro Náměstí míru), nedaleko vstupu do Riegrových sadů. Prohlídky možné po domluvě s makléřem. Byte je volný k nastěhování od 1. března 2026. Z důvodu absence PENB uvádíme energetickou třídu G, údaj není relevantní.

Parametry bytu

Cena
35 000 Kč /za měsíc
Poznámka k ceně
+ poplatky 850,Kč/os. + elektřina, plyn.
Aktualizováno
2. 2. 2026
Adresa
Mánesova, Praha 2
ID
974030
Stavba
Cihlová
Stav objektu
Po rekonstrukci
Patro
3. z 5
Vybaveno
Ne
Vlastnictví
Osobní
Užitná plocha
120 m2
Podlahová plocha
120 m2
Třída energetické náročnosti
G - Mimořádně nehospodárná
Elektřina
230V
Plyn
Plynovod
Odpad
Veřejná kanalizace
Topení
Ústřední plynové
Doprava
MHD
Voda
Vodovod
Výtah

Kontaktovat makléře

Realitní kancelář

Logo EVROPA realitní kancelář

EVROPA realitní kancelář

Václavské náměstí 806/62, Praha

Chystáte se prodat nemovitost?
Pomůžeme Vám!

Máte zájem o tento byt?

Tímto, v souladu s nařízením Evropského parlamentu a Rady (EU) 2016/679, v platném znění, prohlašuji, že mi je alespoň 16 let a uděluji tak svůj souhlas se zpracováním zadaných údajů (jméno, telefon, e-mail, ip adresa) společnosti B3 Technology, s.r.o., IČ: 07330600, se sídlem Novostavby 126/23, 435 11 Lom (správce dat), za účelem předání dotazu z tohoto formuláře Vámi vybranému inzerentovi a zpětného kontaktování mé osoby. Osobní údaje bude správce zpracovávat manuálně i automaticky přímo prostřednictvím svých zaměstnanců. Informace předané tímto formulářem budou uloženy v databázi správce maximálně po dobu 10 let. Odvolání souhlasu s uložením a zpracováním poskytnutých dat lze e-mailem na info@bydlisnami.cz. V případě podezření na neoprávněné použití Vámi poskytnutých údajů máte právo předat podnět k šetření Úřadu pro ochranu osobních údajů. Více informací
Chystáte se prodat nemovitost?
Pomůžeme Vám!

Inzerát si prohlédlo 0 lidí

Prodejce

Jan Bahorec

Jan Bahorec

Hlídací pes

Chcete dostávat emailem podobné nabídky pronájmu bytů 5+kk v Praze 2?

Podobné nemovitosti