Pronájem kanceláře, Liberec - Liberec II-Nové Město, Chrastavská, 23 m2

Chrastavská, Liberec II-Nové Město

7 432 Kč /za měsíc Získejte výhodnou HYPOTÉKU

(měsíční poplatky 1.689 Kč + zálohy za teplo 1.986 Kč + skutečné náklady za vodu a elektřinu)

Doporučené firmy v Liberci

Rekonstrukce

Úklidové služby

Informace k nemovitosti

Pronájem moderní kanceláře v areálu DTZ PARK s volnými parkovacími místy

Dovolujeme si Vám nabídnout pronájem moderních kancelářských prostor včetně parkovacích míst v prestižní administrativní budově společnosti DTZ s.r.o., která se nachází v širším centru města Liberce - v městské části Nové Město.

Administrativní budova byla kolaudována na konci roku 2023 a je vhodná pro malé a střední firmy, které hledají profesionální a komfortní prostředí pro své podnikání.

Budova využívá moderní technická řešení, která zajišťuje efektivitu pro všechny uživatele, šetrnost k životnímu prostředí a zároveň úsporu energií. K topení/chlazení využívá tepelná čerpadla, integrovaná vzduchotechnika zajišťuje optimální cirkulaci vzduchu a příjemné klima v interiéru. Pro maximální pohodlí a ochranu proti slunečnímu záření jsou na budově instalovány venkovní automatické žaluzie, což zvyšuje celkovou energetickou účinnost.

V lobby nabízíme služby recepce a stylového bistra BISTRO149 s nabídkou poledního menu a jiného kvalitního občerstvení.
Parkování a přístup do budovy je možný 24/7.

Tato lokalita poskytuje snadnou veřejnou dostupnost a blízkost důležitých služeb.
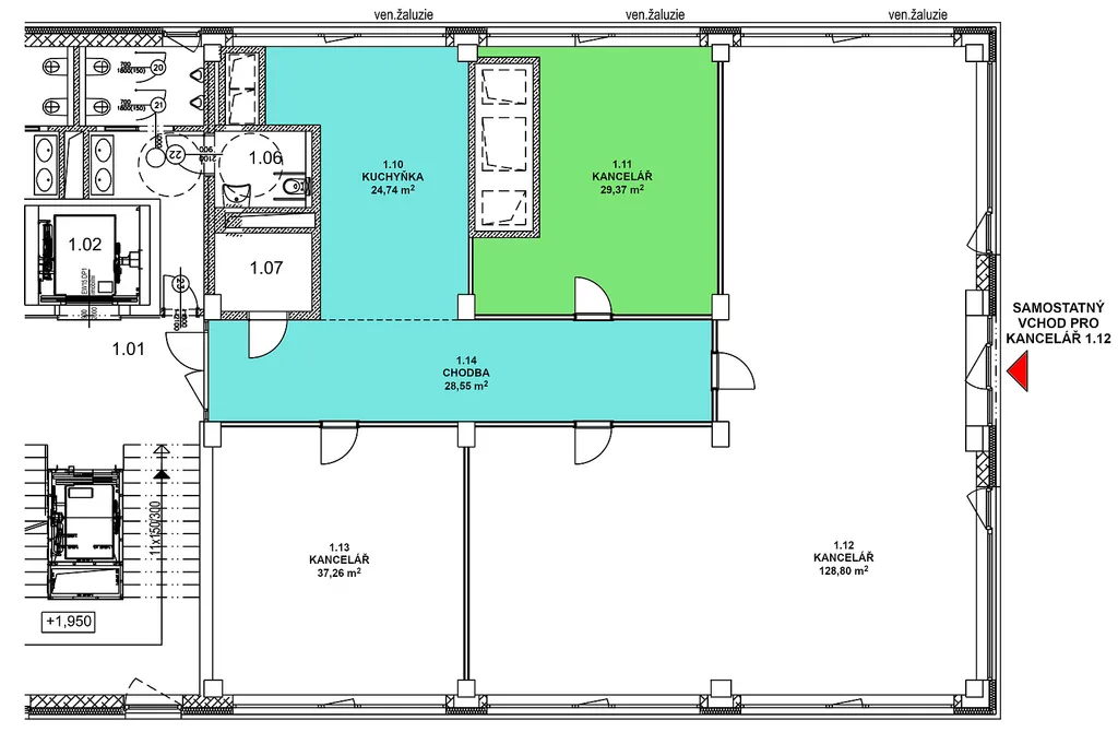
K pronájmu nabízíme poslední kancelářské prostory v prvním podlaží budovy o celkové výměře 22,52 m² a 37,26 m² s bezbariérovým přístupem.
K těmto kancelářím jsme schopni nabídnout k pronájmu také sklad s výměrou 16 m² s přístupem pro vozidlo.

Kanceláře se pronajímají bez vybavení kancelářským nábytkem.

Cenová nabídka:

Místnost č. 1.11 s výměrou 22,52 m² s výhledem do ul. U věže.
Cena nájmu s poplatky 9.121Kč bez DPH + zálohy za teplo/chlad 1.986 Kč /měsíc + skutečné náklady za vodu a elektřinu/měsíc

Místnost č.1.13 s výměrou 37,26 m² s výhledem do areálu.
Cena nájmu s poplatky 13.600 Kč bez DPH + zálohy za teplo/chlad 2.520 Kč/měsíc + skutečné náklady za vodu a elektřinu/měsíc

Na patře se nachází sociální zázemí, které se sdílí společně s ostatními nájemci v budově.

Parkovací místo v uzavřeném areálu v ceně 1.300 Kč +DPH/1parkovací místo/měsíc.

Pokud máte zájem o prohlídku budovy, nebo další specifické požadavky či detaily neváhejte nás kontaktovat.

Parametry nemovitosti

Cena
7 432 Kč /za měsíc
Poznámka k ceně
měsíční poplatky 1.689 Kč + zálohy za teplo 1.986 Kč + skutečné náklady za vodu a elektřinu
Aktualizováno
6. 2. 2026
Adresa
Chrastavská, Liberec II-Nové Město
ID
06022026
Stavba
Skeletová
Vybaveno
Ne
Užitná plocha
23 m2
Třída energetické náročnosti
C - Úsporná

Kontaktovat makléře

Realitní kancelář

DTZ s.r.o.

U Věže 149/8, Liberec

Chystáte se prodat nemovitost?
Pomůžeme Vám!

Máte zájem o tuto nemovistost?

Tímto, v souladu s nařízením Evropského parlamentu a Rady (EU) 2016/679, v platném znění, prohlašuji, že mi je alespoň 16 let a uděluji tak svůj souhlas se zpracováním zadaných údajů (jméno, telefon, e-mail, ip adresa) společnosti B3 Technology, s.r.o., IČ: 07330600, se sídlem Novostavby 126/23, 435 11 Lom (správce dat), za účelem předání dotazu z tohoto formuláře Vámi vybranému inzerentovi a zpětného kontaktování mé osoby. Osobní údaje bude správce zpracovávat manuálně i automaticky přímo prostřednictvím svých zaměstnanců. Informace předané tímto formulářem budou uloženy v databázi správce maximálně po dobu 10 let. Odvolání souhlasu s uložením a zpracováním poskytnutých dat lze e-mailem na info@bydlisnami.cz. V případě podezření na neoprávněné použití Vámi poskytnutých údajů máte právo předat podnět k šetření Úřadu pro ochranu osobních údajů. Více informací
Chystáte se prodat nemovitost?
Pomůžeme Vám!

Inzerát si prohlédlo 0 lidí

Prodejce

DTZ s.r.o.

DTZ s.r.o.

Hlídací pes

Chcete dostávat emailem podobné nabídky pronájmu kanceláří v Liberci?

Podobné nemovitosti