Prodej rodinného domu, Svitavy, Na Hrázi, 321 m2 (ID: 2542153)

Na Hrázi, Svitavy, Lány

9 900 000 Kč /za nemovitost HYPOTÉKA od 44 247 Kč /za měsíc

(Nabídková cena je včetně DPH, včetně provize a právního servisu. Možnost odpočtu DPH)

Doporučené firmy v Svitavách

Informace k domu

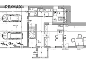
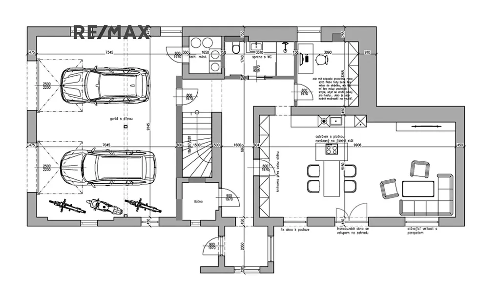
Nabízím k prodeji nadstandardně zrekonstruovaný a energeticky úsporný dům ve Svitavách, který splní i ty nejvyšší nároky na pohodlné bydlení. Tento moderní dům o dispozici 6+kk s užitnou plochou celkem cca 321 m² nabízí vše, co si můžete přát, a to včetně garážování nebo vybavení pro relaxaci a luxusní odpočinek.

V ceně dokončeného domu je veškeré základní sanitární vybavení, obklady, podlahy, obložkové dveře, výřivka, sauna, FVE, bateriové úložiště, tepelné čerpadlo, dlažba ne terase.

Při koupi domu je možnost odpočtu DPH.
Dům je možné koupit i v aktuálním stavu, s výraznou slevou z kupní ceny. V takovém případě je možné získat pro dokončení další slevu formou čerpání dotací na FVE, baterie nebo nabíjecí stanici.

Luxus a komfort v každém detailu
Užijte si prostorný a vzdušný interiér, kde dominuje velký obývací prostor s kuchyňským koutem o rozloze 51 m². V domě nechybí ani praktická spíš v 1.NP a velmi důležitá šatna ve 2.NP. Nadstandardem jsou 2 koupelny s WC, samostatné WC s bidetem a sauna se sprchou. Dům prošel kompletní rekonstrukcí, což zaručuje, že je vše nové a v perfektním stavu. Stěny i střechy jsou zateplené, podlahy mají podlahové topení a obvodové zdivo je kompletně odizolované. V ceně domu je kompletní dokončení (kromě kuchyňské linky a osvětlení). Máte jedinečnou možnost si vybrat zařizovací předměty dle svého vkusu.

Energetická soběstačnost a relaxace
Díky fotovoltaickým panelům s výkonem 8,1 kW a bateriovému úložišti je dům maximálně energeticky úsporný. Navíc, o úsporné vytápění se postará tepelné čerpadlo LG.
Po náročném dni si dopřejte odpočinek na terase a ponořte do venkovní vířivky Wave o rozměru 220 x 220 cm. V chadných nebo mrazivých dnech Vás velmi potěší pobyt ve vnitřní finské sauně Marimex. Terasa o rozloze 44 m² ve druhém patře navíc nabízí dostatek prostoru pro venkovní kuchyň, posezení nebo relaxační lehátka. Pro lehké sportovní vyžití a volný čas je k dispozici okrasná zahrada s bazénem.

Velkorysý prostor a praktičnost
Dispozice 6+kk nabízí dostatek prostoru pro Vás i Vaše podnikání, pro větší rodinu nebo pro případné návštěvy. Využijte místosti dle vlastních potřeb. Dům disponuje také velkou garáží pro dvě auta (64 m²), se dvěma sekčními vraty. Garáž zároveň nabízí další prostor pro motorky, kola nebo dílnu. V technické místnost přístupné z garáže je umístěno veškeré technické zařízení pro provoz domu. Pro milovníky elektromobility je zde připravena nabíjecí stanice pro elektrovozidlo. Celkově dům a parkovací stání nabízí prostor až pro 4 automobily.

DPH
Nabídková cena nemovitosti je včetně DPH. Pro případný nákup domu pro firmu, která je plátcem DPH, je možný odpočet.

Nenechte si ujít tuto výjimečnou nabídku a domluvte si prohlídku, abyste se mohli na vlastní oči přesvědčit o kvalitě a pohodlí tohoto domu. Jsem si jistý, že si ho zamilujete.
Ve fotografiích jsou použity ilustrativní obrázky alternativních zařízení místností.
Prodávající si vyhrazuje právo vybrat kupujícího na základě jím zvolených kritérií.

Parametry domu

Cena
9 900 000 Kč /za nemovitost Spočítat hypotéku
Poznámka k ceně
Nabídková cena je včetně DPH, včetně provize a právního servisu. Možnost odpočtu DPH
Aktualizováno
28. 4. 2026
Adresa
Na Hrázi, Svitavy, Lány
ID
0020-NP10437
Stavba
Smíšená
Stav objektu
Po rekonstrukci
Druh objektu
Samostatný
Užitná plocha
321 m2
Zastavěná plocha
202 m2
Plocha pozemku
558 m2
Třída energetické náročnosti
C - Úsporná
Elektřina
230V, 400V
Odpad
Veřejná kanalizace
Topné těleso
Podlahové vytápění
Zdroj topení
Tepelné čerpadlo
Zdroj teplé vody
Tepelné čerpadlo

Kontaktovat makléře

Realitní kancelář

RE/MAX G8 Reality

Rohanské nábřeží 678/27, Praha

Chystáte se prodat nemovitost?
Pomůžeme Vám!

Máte zájem o tento dům?

Tímto, v souladu s nařízením Evropského parlamentu a Rady (EU) 2016/679, v platném znění, prohlašuji, že mi je alespoň 16 let a uděluji tak svůj souhlas se zpracováním zadaných údajů (jméno, telefon, e-mail, ip adresa) společnosti B3 Technology, s.r.o., IČ: 07330600, se sídlem Novostavby 126/23, 435 11 Lom (správce dat), za účelem předání dotazu z tohoto formuláře Vámi vybranému inzerentovi a zpětného kontaktování mé osoby. Osobní údaje bude správce zpracovávat manuálně i automaticky přímo prostřednictvím svých zaměstnanců. Informace předané tímto formulářem budou uloženy v databázi správce maximálně po dobu 10 let. Odvolání souhlasu s uložením a zpracováním poskytnutých dat lze e-mailem na info@bydlisnami.cz. V případě podezření na neoprávněné použití Vámi poskytnutých údajů máte právo předat podnět k šetření Úřadu pro ochranu osobních údajů. Více informací
Chystáte se prodat nemovitost?
Pomůžeme Vám!

Inzerát si prohlédlo 86 lidí

Prodejce

Zdeněk Podlezl

Zdeněk Podlezl

Hlídací pes

Chcete dostávat emailem podobné nabídky prodeje rodinných domů v Svitavách?

Podobné nemovitosti