Remax Power 2

Prodej rodinného domu, Malá Hraštice, 97 m2

Malá Hraštice

9 191 000 Kč /za nemovitost HYPOTÉKA od 41 078 Kč /za měsíc

(včetně DPH)

Doporučené firmy v Malé Hraštici

Pojištění a finance

Revize elektrických zařízení

Informace k domu

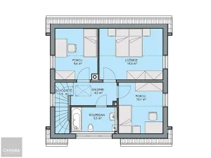
Prodám nízkoenergetický rodinný dům o dispozici 4+1 s podlahovou plochou 96,7 m².

Dům je určen pro pohodlný život 4 členné rodiny. Bohatý vnitřní prostor zahrnuje v přízemí obývací pokoj s prakticky odděleným kuchyňským koutem, v patře ložnici a 2 dětské pokoje. Součástí rodinného domu je i samostatná toaleta a samostatná koupelna.

Dům bude za uvedenou cenu kompletně dokončen a vybaven (včetně krbového komínu) a připraven k okamžitému nastěhování. Vnější i vnitřní provedení domu provedeme dle Vašeho individuálního výběru.

V celkové ceně není uvedena spodní stavba, kterou si můžete přiobjednat, a domovní přípojky inženýrských sítí.

K patě pozemku jsou přivedeny následující sítě: rozvody NN, vodovod a splašková kanalizace.

Obec nabízí klidné bydlení v obklopení krásné přírody. V okolí najdete lesy, cyklostezky i řadu možností pro výlety a aktivní odpočinek. Obec má základní občanskou vybavenost a dobrou dostupnost do Příbrami, případně směrem na Prahu. Ideální místo pro ty, kdo hledají spojení přírody a pohodového života.

Uvedená cena je včetně pozemku a DPH. Doba výstavby 3 - 4 měsíce od vydání stavebního povolení.

Parametry domu

Cena
9 191 000 Kč /za nemovitost Spočítat hypotéku
Poznámka k ceně
včetně DPH
Aktualizováno
10. 2. 2026
Adresa
Malá Hraštice
ID
01518
Stavba
Cihlová
Stav objektu
Projekt
Druh objektu
Samostatný
Užitná plocha
97 m2
Plocha pozemku
1031 m2
Třída energetické náročnosti
B - Velmi úsporná
Ukazatel energetické náročnosti
115 kWh/m2 za rok

Kontaktovat makléře

Máte zájem o tento dům?

Tímto, v souladu s nařízením Evropského parlamentu a Rady (EU) 2016/679, v platném znění, prohlašuji, že mi je alespoň 16 let a uděluji tak svůj souhlas se zpracováním zadaných údajů (jméno, telefon, e-mail, ip adresa) společnosti B3 Technology, s.r.o., IČ: 07330600, se sídlem Novostavby 126/23, 435 11 Lom (správce dat), za účelem předání dotazu z tohoto formuláře Vámi vybranému inzerentovi a zpětného kontaktování mé osoby. Osobní údaje bude správce zpracovávat manuálně i automaticky přímo prostřednictvím svých zaměstnanců. Informace předané tímto formulářem budou uloženy v databázi správce maximálně po dobu 10 let. Odvolání souhlasu s uložením a zpracováním poskytnutých dat lze e-mailem na info@bydlisnami.cz. V případě podezření na neoprávněné použití Vámi poskytnutých údajů máte právo předat podnět k šetření Úřadu pro ochranu osobních údajů. Více informací
Chystáte se prodat nemovitost?
Pomůžeme Vám!
Theleadway banner

Inzerát si prohlédlo 9 lidí

Prodejce

Ing. Adriana Čarnecká

Ing. Adriana Čarnecká

Hlídací pes

Chcete dostávat emailem podobné nabídky prodeje rodinných domů v Malé Hraštici?

Podobné nemovitosti