Pronájem kanceláře, Jihlava, Masarykovo náměstí, 73 m2

Masarykovo náměstí, Jihlava

11 163 Kč /za měsíc Získejte výhodnou HYPOTÉKU
Doporučené firmy v Jihlavě

Pojištění a finance

Informace k nemovitosti

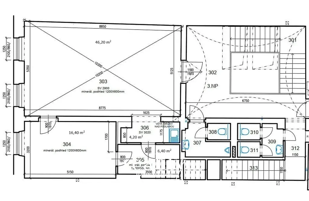
Nabízíme k pronájmu moderní kancelářské prostory o celkové výměře 73 m², nacházející se ve 2. nadzemním podlaží administrativní budovy přímo v centru Jihlavy.

Dispozice prostor:
- Hlavní otevřená kancelář (46,20m2)
- Samostatná administrativní místnost vhodná pro jednání či zázemí týmu (16,40m2)
- Samostatná místnost (6,40m2)
- kuchyňka pro zázemí zaměstnanců (4,20m2)

Technický stav a vybavení:
- Reprezentativní prostory vhodné pro kancelářskou či administrativní činnost
- Nová kvalitní okna zajišťující dostatek světla a zvukovou izolaci

Lokalita a dostupnost:
- Budova se nachází ve velmi frekventované části města s výbornou občanskou vybaveností
- V blízkosti se nachází bankovní domy a kompletní služby
- Parkování přímo před budovou je zajištěno

Ideální pro:
- Firmy hledající dobře dostupné a profesionální zázemí v centru města

Cena nájmu: 11 163,- Kč (+ DPH v případě, že nájemce je plátcem)
Záloha za služby: 8 630,-Kč včetně DPH v zákonné výši (obsahuje: záloha - elektřina, záloha - plyn, záloha - vodné -stočné, srážkové vody, záloha - úklid společných prostor, záloha - odvoz komunálního odpadu). Zálohy za služby jsou napočítány na 3. osoby, v případě jiného počtu dochází k přepočtu
Kauce: 0,-Kč. Místo kauce je požadována platba nájemného + zálohy za služby na daný Q + násl. Q.
Platby nájemného: 3M předem


V případě zájmu rádi poskytneme další informace nebo domluvíme prohlídku prostor

Parametry nemovitosti

Cena
11 163 Kč /za měsíc
Aktualizováno
11. 2. 2026
Adresa
Masarykovo náměstí, Jihlava
ID
00772
Stavba
Cihlová
Stav objektu
Velmi dobrý
Lokalita objektu
Centrum obce
Užitná plocha
73 m2
Třída energetické náročnosti
G - Mimořádně nehospodárná
Elektřina
120V
Plyn
Plynovod
Odpad
Veřejná kanalizace
Doprava
Silnice, MHD, Autobus
Voda
Vodovod
Výtah

Kontaktovat makléře

Máte zájem o tuto nemovistost?

Tímto, v souladu s nařízením Evropského parlamentu a Rady (EU) 2016/679, v platném znění, prohlašuji, že mi je alespoň 16 let a uděluji tak svůj souhlas se zpracováním zadaných údajů (jméno, telefon, e-mail, ip adresa) společnosti B3 Technology, s.r.o., IČ: 07330600, se sídlem Novostavby 126/23, 435 11 Lom (správce dat), za účelem předání dotazu z tohoto formuláře Vámi vybranému inzerentovi a zpětného kontaktování mé osoby. Osobní údaje bude správce zpracovávat manuálně i automaticky přímo prostřednictvím svých zaměstnanců. Informace předané tímto formulářem budou uloženy v databázi správce maximálně po dobu 10 let. Odvolání souhlasu s uložením a zpracováním poskytnutých dat lze e-mailem na info@bydlisnami.cz. V případě podezření na neoprávněné použití Vámi poskytnutých údajů máte právo předat podnět k šetření Úřadu pro ochranu osobních údajů. Více informací
Chystáte se prodat nemovitost?
Pomůžeme Vám!
Theleadway banner

Inzerát si prohlédlo 5 lidí

Prodejce

Ing. Pavel Vetchý

Ing. Pavel Vetchý

Hlídací pes

Chcete dostávat emailem podobné nabídky pronájmu kanceláří v Jihlavě?

Podobné nemovitosti