Prodej rodinného domu, Praha - Hlubočepy, Hlubočepská, 156 m2 (ID: 2547263)

Hlubočepská, Praha 5, Hlubočepy

15 490 000 Kč /za nemovitost HYPOTÉKA od 69 231 Kč /za měsíc
Doporučené firmy v Praze 5

Stěhovací služby

Výkup a prodej starého nábytku

Informace k domu

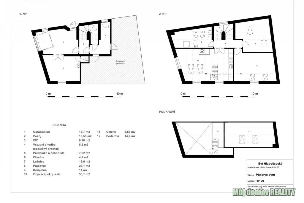
## Prodej rodinného domu 6+kk, 156 m, pozemek 127 m Hlubočepská, Praha Hlubočepy.

Nabízíme k prodeji **variabilní rodinný dům o užitné ploše 156 m**, situovaný v klidné části Praha 5 Hlubočepy. Nemovitost je ideální jak pro **vícegenerační bydlení**, tak jako **investiční příležitost**.

Celková cena: **15 490 000 Kč + provize RK**

### Dispozice a využití
Dům se skládá ze **3 jednotek**, přičemž předmětem prodeje jsou **2 jednotky (cca 79 % domu)**, které lze využívat samostatně nebo jako jeden celek:

### Jednotka č. 1 byt 4+kk (cca 120 m)
Umístěna v 1. patře a podkroví:
* předsíň, schodiště, chodba
* obývací pokoj s kuchyňským koutem
* ložnice, pracovna
* koupelna s WC
* další ložnice v podkroví

### Jednotka č. 2 přízemí (36,21 m)
V KN vedena jako dílna/provozovna, aktuálně rekonstruována jako obytný prostor:
* zateplený prostor s vlastním vstupem z ulice nebo přes garážová vrata
* samostatná místnost s WC a umyvadlem (možný vlastní vstup z ulice)
Tato jednotka nabízí **výborný investiční potenciál** lze ji oddělit a pronajímat jako kancelář, obchod, provozovnu či sklad.

### Technické informace
* vytápění plynovým kotlem + krb
* radiátory
* veřejná kanalizace, vodovod, plyn
* elektřina 230 V
* dům po rekonstrukci, ve velmi dobrém stavu
* koupelna s vanou i sprchovým koutem
* vybavená kuchyňská linka a spotřebiče
* garáž + možnost parkování před domem
* bez SVJ
* bez právních vad
Energetická třída: **E nehospodárná**

### Lokalita and občanská vybavenost
Velkým benefitem je bezprostřední blízkost přírody pár minut chůze se nachází **Prokopské údolí**, Dalejský potok a Děvín, ideální pro procházky, sport i relax.
Zároveň máte v okolí kompletní občanskou vybavenost:

* mateřská i základní škola
* potraviny
* restaurace, pizzerie, kavárna
* wellness centrum
* další služby v docházkové vzdálenosti

### Dopravní dostupnost
* autobusová zastávka přímo u domu
* vlak cca 150 m
* tramvaj cca 1,5 km
* autem cca 5 minut na metro Smíchovské nádraží

Výborná dostupnost do centra města při zachování klidného rezidenčního charakteru lokality.

### Shrnutí
156 m užitné plochy
6+kk
možnost odděleného využití jednotek
garáž
investiční potenciál
blízkost přírody
kompletní občanská vybavenost
skvělá dopravní dostupnost


**Kontakt na sjednání prohlídky:**
Realitní kancelář: **Můj domov REALITY**
Makléř: **Lidiya Savynets**
Viber | WhatsApp | Telegram
*Těším se na Vaši zprávu nebo telefonát.*

Parametry domu

Cena
15 490 000 Kč /za nemovitost Spočítat hypotéku
Aktualizováno
13. 2. 2026
Adresa
Hlubočepská, Praha 5, Hlubočepy
ID
2112
Stavba
Cihlová
Stav objektu
Po rekonstrukci
Typ objektu
Patrový
Druh objektu
Samostatný
Užitná plocha
156 m2
Zastavěná plocha
99 m2
Podlahová plocha
156 m2
Plocha pozemku
127 m2
Plocha zahrady
26 m2
Bezbarierový přístup

Kontaktovat makléře

Máte zájem o tento dům?

Tímto, v souladu s nařízením Evropského parlamentu a Rady (EU) 2016/679, v platném znění, prohlašuji, že mi je alespoň 16 let a uděluji tak svůj souhlas se zpracováním zadaných údajů (jméno, telefon, e-mail, ip adresa) společnosti B3 Technology, s.r.o., IČ: 07330600, se sídlem Novostavby 126/23, 435 11 Lom (správce dat), za účelem předání dotazu z tohoto formuláře Vámi vybranému inzerentovi a zpětného kontaktování mé osoby. Osobní údaje bude správce zpracovávat manuálně i automaticky přímo prostřednictvím svých zaměstnanců. Informace předané tímto formulářem budou uloženy v databázi správce maximálně po dobu 10 let. Odvolání souhlasu s uložením a zpracováním poskytnutých dat lze e-mailem na info@bydlisnami.cz. V případě podezření na neoprávněné použití Vámi poskytnutých údajů máte právo předat podnět k šetření Úřadu pro ochranu osobních údajů. Více informací
Chystáte se prodat nemovitost?
Pomůžeme Vám!

Inzerát si prohlédlo 0 lidí

Prodejce

Lidiya Savynets

Lidiya Savynets

Hlídací pes

Chcete dostávat emailem podobné nabídky prodeje rodinných domů v Praze 5?

Podobné nemovitosti