Prodej rodinného domu, Hořice, Palackého náměstí, 207 m2

Palackého náměstí, Hořice

6 580 000 Kč /za nemovitost HYPOTÉKA od 29 409 Kč /za měsíc
Doporučené firmy v Hořicích

Pojištění a finance

Informace k domu

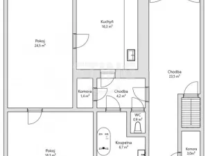
Prodej řadového rodinného domu 3+1 v Hořicích v Podkrkonoší, č.p. 76. Nemovitost se nachází na souboru pozemků o celkové výměře 2.549 m², které tvoří ucelený funkční celek se zastavěnou částí, dvorem a navazující zahradou. Součástí prodeje jsou také vedlejší hospodářské stavby a kůlna situované za obytným domem.
Rodinný dům má dvě nadzemní podlaží a celkovou užitnou plochu 207 m². V přízemí se nachází obytná kuchyně, dva samostatné pokoje, koupelna, samostatné WC a komora. Ve 2. nadzemním podlaží je jeden samostatný pokoj a půdní prostory vhodné k vybudování dalších obytných místností.
Nemovitost je v původním, udržovaném stavu a nabízí možnost rekonstrukce dle vlastních představ. Dům je napojen na elektřinu, vodovodní řad, plyn a kanalizaci. Ohřev vody a vytápění zajišťuje kombinovaný plynový kotel, doplňkově lze využít kamna na tuhá paliva.
Pozemek poskytuje dostatek prostoru pro zahradu, hospodářské využití i případné další úpravy zástavby v rámci platných regulativů. Vedlejší stavby rozšiřují užitné možnosti nemovitosti o skladové a technické zázemí. Nemovitost je v centru města, kde se lze napojit na dálnici - do HK cca 15 minut, dále do Prahy. Do Jičína se dálnice buduje, město je cca 20 km, dále Mladá Boleslav, Turnov. Pro více informací a případnou prohlídku mě neváhejte kontaktovat. V případě více zájemců si majitel vyhrazuje právo prodat nejvýhodnější nabídce. Do konce května 2026 nabízíme prostřednictvím našeho partnera úrokové sazby od 4,79 % p.a. Více informací Vám sdělí náš specialista na prohlídce.

Parametry domu

Cena
6 580 000 Kč /za nemovitost Spočítat hypotéku
Aktualizováno
7. 5. 2026
Adresa
Palackého náměstí, Hořice
ID
134464
Stavba
Cihlová
Stav objektu
Dobrý
Typ objektu
Patrový
Druh objektu
Řadový
Lokalita objektu
Centrum obce
Užitná plocha
207 m2
Zastavěná plocha
153 m2
Podlahová plocha
80 m2
Plocha pozemku
2549 m2
Plocha zahrady
2549 m2
Třída energetické náročnosti
G - Mimořádně nehospodárná
Elektřina
230V, 400V
Plyn
Plynovod
Odpad
Veřejná kanalizace
Topení
Lokální tuhá paliva
Komunikace
Asfaltová
Doprava
Vlak, Silnice, Autobus
Voda
Vodovod

Kontaktovat makléře

Máte zájem o tento dům?

Tímto, v souladu s nařízením Evropského parlamentu a Rady (EU) 2016/679, v platném znění, prohlašuji, že mi je alespoň 16 let a uděluji tak svůj souhlas se zpracováním zadaných údajů (jméno, telefon, e-mail, ip adresa) společnosti B3 Technology, s.r.o., IČ: 07330600, se sídlem Novostavby 126/23, 435 11 Lom (správce dat), za účelem předání dotazu z tohoto formuláře Vámi vybranému inzerentovi a zpětného kontaktování mé osoby. Osobní údaje bude správce zpracovávat manuálně i automaticky přímo prostřednictvím svých zaměstnanců. Informace předané tímto formulářem budou uloženy v databázi správce maximálně po dobu 10 let. Odvolání souhlasu s uložením a zpracováním poskytnutých dat lze e-mailem na info@bydlisnami.cz. V případě podezření na neoprávněné použití Vámi poskytnutých údajů máte právo předat podnět k šetření Úřadu pro ochranu osobních údajů. Více informací
Chystáte se prodat nemovitost?
Pomůžeme Vám!
Theleadway banner

Inzerát si prohlédlo 11 lidí

Prodejce

Bohumil Kopejsko

Bohumil Kopejsko

Hlídací pes

Chcete dostávat emailem podobné nabídky prodeje rodinných domů v Hořicích (okr. Jičín)?

Podobné nemovitosti