Pronájem bytu 2+1, Praha - Vinohrady, náměstí Jiřího z Lobkovic, 62 m2

náměstí Jiřího z Lobkovic, Praha 3

24 800 Kč /za měsíc Získejte výhodnou HYPOTÉKU
Doporučené firmy v Praze 3

Stěhovací služby

Výkup a prodej starého nábytku

Informace k bytu

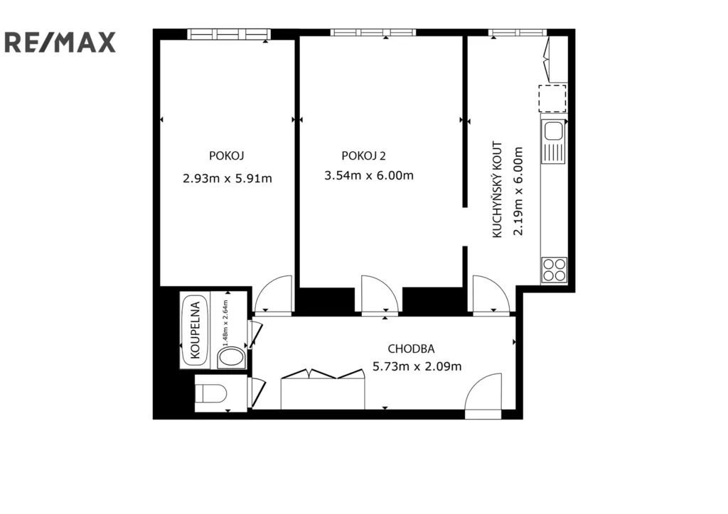
Nabízíme k pronájmu světlý byt 2+1 v oblíbené části Vinohrad. Klidné bydlení s okny na východ do vnitrobloku, tj. na opačnou stranu, než je ulice, zajišťují tiché prostředí a příjemné ranní světlo. Byt se nachází na náměstí Jiřího z Lobkovic 2458/17 v Praze 3, ve 4. patře udržovaného domu s výtahem. Celková plocha bytu je 62,5 m² a poskytuje dostatek prostoru pro pohodlné bydlení.
Po vstupu do bytu je před Vámi prostorná předsíň se šatními skříněmi, ze které se vstupuje do kuchyně a do prvního neprůchozího pokoje. Druhý neprůchozí pokoj má samostatný vstup také z předsíně.

Kuchyň je prakticky vybavena lednicí s mrazákem, sporákem, myčkou a kuchyňskou linkou s přípravou na pračku a úložným prostorem. Koupelna je vybavena menší vanou se sprchovací zástěnou a velkým žebříkem na sušení ručníků.
Toaleta je samostatná. V obytných pokojích jsou renovované parketové podlahy, které bytu dodávají příjemný charakter.
Dispozice bytu je praktická a vhodná pro pár i rodinu s dětmi. Výhodou je blízkost základní i mateřské školy přímo na náměstí.
Součástí bydlení je možnost využívat uzavřenou zahradu a dětské hřiště s pískovištěm a prolézačkami, které se nachází přímo pod okny bytu. V okolí jsou k dispozici také volnočasové kluby a sportoviště včetně tenisové školy při místní základní škole.

Lokalita nabízí výbornou dopravní dostupnost i kompletní občanskou vybavenost. V docházkové vzdálenosti se je obchodní centrum Flora s obchody a službami pro každodenní potřeby.

Měsíční nájemné - 24 800 Kč.
Zálohy na služby pro dvě osoby - 4 500 Kč měsíčně
Elektřina se převádí na nájemce.
Vratná kauce odpovídá dvěma měsíčním nájmům - 2 x 24 800 Kč
Rezervační poplatek ve výši jednoho nájmu (24 800 Kč) se po podpisu nájemní smlouvy
započítává na první měsíc nájmu.
Nájemce neplatí provizi RK

V případě zájmu o prohlídku nás neváhejte kontaktovat, rádi vám byt osobně ukážeme.

Parametry bytu

Cena
24 800 Kč /za měsíc
Aktualizováno
17. 2. 2026
Adresa
náměstí Jiřího z Lobkovic, Praha 3
ID
262-NP00588
Stavba
Cihlová
Stav objektu
Velmi dobrý
Patro
5. z 6
Vybaveno
Částečně
Lokalita objektu
Klidná část obce
Vlastnictví
Osobní
Užitná plocha
62 m2
Zastavěná plocha
315 m2
Podlahová plocha
62 m2
Plocha zahrady
382 m2
Třída energetické náročnosti
D - Méně úsporná
Ukazatel energetické náročnosti
172 kWh/m2 za rok
Elektřina
230V
Odpad
Veřejná kanalizace
Komunikace
Asfaltová
Telekomunikace
Internet
Doprava
Silnice, MHD, Autobus
Voda
Vodovod
Sklep
Výtah

Kontaktovat makléře

Realitní kancelář

Logo RE/MAX Scopus

RE/MAX Scopus

Olbrachtova 1065/46, Praha 4

Chystáte se prodat nemovitost?
Pomůžeme Vám!

Máte zájem o tento byt?

Tímto, v souladu s nařízením Evropského parlamentu a Rady (EU) 2016/679, v platném znění, prohlašuji, že mi je alespoň 16 let a uděluji tak svůj souhlas se zpracováním zadaných údajů (jméno, telefon, e-mail, ip adresa) společnosti B3 Technology, s.r.o., IČ: 07330600, se sídlem Novostavby 126/23, 435 11 Lom (správce dat), za účelem předání dotazu z tohoto formuláře Vámi vybranému inzerentovi a zpětného kontaktování mé osoby. Osobní údaje bude správce zpracovávat manuálně i automaticky přímo prostřednictvím svých zaměstnanců. Informace předané tímto formulářem budou uloženy v databázi správce maximálně po dobu 10 let. Odvolání souhlasu s uložením a zpracováním poskytnutých dat lze e-mailem na info@bydlisnami.cz. V případě podezření na neoprávněné použití Vámi poskytnutých údajů máte právo předat podnět k šetření Úřadu pro ochranu osobních údajů. Více informací
Chystáte se prodat nemovitost?
Pomůžeme Vám!

Inzerát si prohlédlo 3 lidí

Prodejce

Petr Vančura

Petr Vančura

Hlídací pes

Chcete dostávat emailem podobné nabídky pronájmu bytů 2+1 v Praze 3?

Podobné nemovitosti