Prodej ubytování, Benecko, 635 m2 (ID: 2550658)

Benecko

Cena na vyžádání /za nemovitost Získejte výhodnou HYPOTÉKU
Doporučené firmy v Benecku

Rekonstrukce

Úklidové služby

Informace k nemovitosti

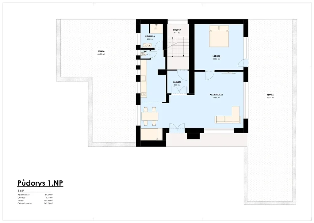
Benecko-Prodej pensionu s Wellness a barem, zázemím.3x byt. Wellness: vyhřívaný vnitřní bazén, 2x sauna / fin. + pára. Barem, hernou. Šatnou a lyžárnou.Kryté venkovní grilování. Dům se nachází v centrální části obce s vyhlídkou na Krkonoše a s přímým dostupem na lanovku Kejnos.
Tato luxusní nemovitost, která prošla v roce 2018 cekovou rekonstrukcí s přístavbou welness-bazénu,saun/finská a parní/,zázemí a teras. Tento dům zajistí vysoké požadavky budoucího nového majitele. Více info najdete v naší galerii včetně projektu půdorysů.
Vybavení je součástí prodeje. Příjezd po celý rok po asfaltové komunikaci. Vlasní parkovací stání 6x z toho 2x kryté. Na nemovitosti neváznou žádná břemena, či jiná zástavní práva. Těšíme se na osobní setkání, spolupráci přímo na Benecku spojenou s prohlídkou domu..

Parametry nemovitosti

Cena
Cena na vyžádání Spočítat hypotéku
Aktualizováno
17. 2. 2026
Adresa
Benecko
ID
0002
Stavba
Cihlová
Stav objektu
Velmi dobrý
Užitná plocha
635 m2
Třída energetické náročnosti
E - Nehospodárná
Parkování

Kontaktovat makléře

Máte zájem o tuto nemovistost?

Tímto, v souladu s nařízením Evropského parlamentu a Rady (EU) 2016/679, v platném znění, prohlašuji, že mi je alespoň 16 let a uděluji tak svůj souhlas se zpracováním zadaných údajů (jméno, telefon, e-mail, ip adresa) společnosti B3 Technology, s.r.o., IČ: 07330600, se sídlem Novostavby 126/23, 435 11 Lom (správce dat), za účelem předání dotazu z tohoto formuláře Vámi vybranému inzerentovi a zpětného kontaktování mé osoby. Osobní údaje bude správce zpracovávat manuálně i automaticky přímo prostřednictvím svých zaměstnanců. Informace předané tímto formulářem budou uloženy v databázi správce maximálně po dobu 10 let. Odvolání souhlasu s uložením a zpracováním poskytnutých dat lze e-mailem na info@bydlisnami.cz. V případě podezření na neoprávněné použití Vámi poskytnutých údajů máte právo předat podnět k šetření Úřadu pro ochranu osobních údajů. Více informací
Chystáte se prodat nemovitost?
Pomůžeme Vám!

Inzerát si prohlédlo 0 lidí

Prodejce

Miroslav Šafář

Miroslav Šafář

Hlídací pes

Chcete dostávat emailem podobné nabídky prodeje ubytování v Benecku?

Podobné nemovitosti