Prodej rodinného domu, Benecko, 635 m2 (ID: 2550659)

Benecko

Cena na vyžádání /za nemovitost Získejte výhodnou HYPOTÉKU

(Zlevněno 19.11.2025)

Doporučené firmy v Benecku

Rekonstrukce

Úklidové služby

Informace k domu

Benecko-Prodej RD s Wellness a pensionem,apartmány. Wellness: vyhřívaný vnitřní bazén, 2x sauna / fin. + pára. Barem, hernou. Šatnou a lyžárnou.Kryté venkovní grilování. Dům se nachází v centrální části obce s vyhlídkou na Krkonoše a s přímým dostupem na lanovku Kejnos.
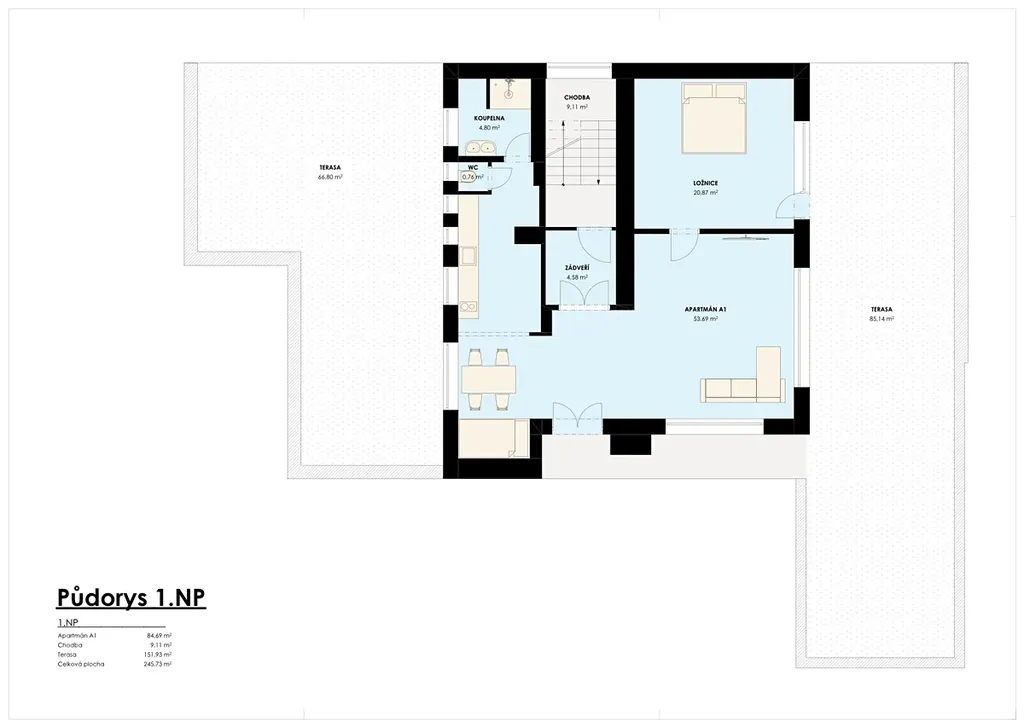
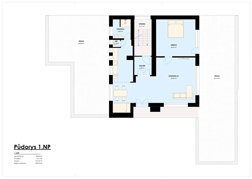
Tato luxusní nemovitost, která prošla v roce 2018 cekovou rekonstrukcí s přístavbou welness-bazénu,saun/finská a parní/,zázemí a teras. Tento dům zajistí vysoké požadavky budoucího nového majitele. Více info najdete v naší galerii včetně projektu půdorysů.
Vybavení je součástí prodeje. Příjezd po celý rok po asfaltové komunikaci. Vlasní parkovací stání 6x z toho 2x kryté. Na nemovitosti neváznou žádná břemena, či jiná zástavní práva. Těšíme se na osobní setkání, spolupráci přímo na Benecku spojenou s prohlídkou domu..

Parametry domu

Cena
Cena na vyžádání Spočítat hypotéku
Poznámka k ceně
Zlevněno 19.11.2025
Aktualizováno
17. 2. 2026
Adresa
Benecko
ID
111
Stavba
Cihlová
Stav objektu
Velmi dobrý
Vybaveno
Ano
Druh objektu
Samostatný
Lokalita objektu
Klidná část obce
Užitná plocha
635 m2
Plocha pozemku
1099 m2
Třída energetické náročnosti
E - Nehospodárná
Elektřina
400V
Plyn
Plynovod
Odpad
Veřejná kanalizace
Topení
Ústřední plynové
Komunikace
Asfaltová
Doprava
Silnice, Autobus
Topné těleso
Podlahové vytápění, Radiátory, Krb
Zdroj topení
Plynový kondenzační kotel
Zdroj teplé vody
Plynový kondenzační kotel
Sklep
Parkování
Bazén

Kontaktovat makléře

Máte zájem o tento dům?

Tímto, v souladu s nařízením Evropského parlamentu a Rady (EU) 2016/679, v platném znění, prohlašuji, že mi je alespoň 16 let a uděluji tak svůj souhlas se zpracováním zadaných údajů (jméno, telefon, e-mail, ip adresa) společnosti B3 Technology, s.r.o., IČ: 07330600, se sídlem Novostavby 126/23, 435 11 Lom (správce dat), za účelem předání dotazu z tohoto formuláře Vámi vybranému inzerentovi a zpětného kontaktování mé osoby. Osobní údaje bude správce zpracovávat manuálně i automaticky přímo prostřednictvím svých zaměstnanců. Informace předané tímto formulářem budou uloženy v databázi správce maximálně po dobu 10 let. Odvolání souhlasu s uložením a zpracováním poskytnutých dat lze e-mailem na info@bydlisnami.cz. V případě podezření na neoprávněné použití Vámi poskytnutých údajů máte právo předat podnět k šetření Úřadu pro ochranu osobních údajů. Více informací
Chystáte se prodat nemovitost?
Pomůžeme Vám!

Inzerát si prohlédlo 0 lidí

Prodejce

Miroslav Šafář

Miroslav Šafář

Hlídací pes

Chcete dostávat emailem podobné nabídky prodeje rodinných domů v Benecku?

Podobné nemovitosti