Prodej rodinného domu, Kouřim, Nad Hrázkou, 124 m2

Nad Hrázkou, Kouřim

11 590 000 Kč /za nemovitost HYPOTÉKA od 51 800 Kč /za měsíc

(včetně provize, včetně právního servisu)

Doporučené firmy v Kouřimi

Informace k domu

Nabízíme Vám ke koupi výjimečnou novostavbu, rodinný dům s dispozicí 5+kk s dvěma koupelnami, rozsáhlou zahradou a stáním pro dvě auta. ODKAZ NA VIRTUÁLNÍ PROHLÍDKU: 3D 360

https://kuula.co/share/collection/7MhSp?logo=0&info=0&fs=1&vr=1&sd=1&initload=0&thumbs=1

Moderní dřevostavba s důrazem na kvalitu, energetickou úspornost a přírodní materiály, je postavena z KVH hranolů, konstrukčních desek se skelným vláknem a hustým jádrem a difúzně otevřenou, provětrávanou fasádou ze sibiřského modřínu. Velkoformátová okna v každé místnosti zajišťují potřebné množství denního světla. O požadovaný tepelný komfort se stará podlahové vytápění v kombinaci s tepelným čerpadlem vzduch-voda, které zvládne topit i chladit.
Kolaudace proběhla v únoru 2026.

ARCHITEKTURA A DISPOZICE
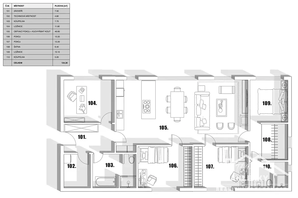
Užitná plocha: 124 m²
Zastavěná plocha: 146 m²
Pozemek: 1 312 m²
Typ domu: jednopodlažní, nepodsklepený
Dispozice: 5+kk
Důmyslná dispozice je řešena efektivně – bez slepých a nevyužitelných spojovacích chodeb. V každém pokoji je počítáno s prostorem pro vestavěnou skříň, přičemž další úložné prostory se nachází v podkroví se dvěma samostatnými vstupy.
Vstup tvoří praktické zádveří navazující na technické zázemí domu, hlavní koupelnu s toaletou a jeden pokoj.
Dominantou domu je pak velkorysý obývací prostor s kuchyní a jídelnou se vzdušným otevřeným stropem do krovu. Součástí tohoto prostoru je stylový komín s přípravou pro instalaci krbových kamen, která budou sloužit jako designový prvek, k navození romantické atmosféry a zároveň funkční, bivalentní zdroj, který je schopen pokrýt primární potřebu tepla domu.
Přímo z hlavního obývacího prostoru je vstup do dalších dvou pokojů a zadní části domu, kterou tvoří klidová zóna, ložnice s vlastní šatnou a samostatnou koupelnou s toaletou.


KONSTRUKCE A TECHNICKÉ ŘEŠENÍ
• Odvětrávaná podkladní vrstva pod základovou deskou jako efektivní opatření proti pronikání radonu z podloží
• Nosné I nenosné konstrukce ze sušených, hoblovaných KVH hranolů
• SDK desky RigiStabil se speciálním jádrem vyztuženým skelnými vlákny, s možností bodového mechanického zatížení až 80 kg
• Izolace z minerální vlny
• Difúzně otevřená skladba konstrukcí
• Provětrávaná fasáda ze sibiřského modřínu
• Velkoformátová okna Inoutic s trojskly a nízkým součinitelem prostupu tepla
Energetická náročnost budovy: třída B – velmi úsporná.

TECHNOLOGIE A ENERGETIKA
• Síťové napájení 400 V / 25 A
• Voda a kanalizace napojena na městský rozvod
• V každém pokoji rozvod STA, DATA, WiFi repeater a příprava pro EZS a noční světlo
• Tepelné čerpadlo vzduch–voda Panasonic schopné topit i chladit
• Teplovodní podlahové vytápění Rehau – 10 samostatně regulovatelných zón
• Rozvod vody v systému Rehau Rautitan
• Teplá voda s cirkulací
• Zásobník TUV Dražice 250 l
• Fotovoltaická elektrárna 2,7 kWp, sloužící výhradně k ohřevu teplé vody, pokrývá téměř celoroční potřebu
• Tlaková kanalizace Presskan
• Retenční nádrž na dešťovou vodu 6 m3

ZAHRADA
Mírně svažitý pozemek o velikosti 1 312 m² se vzrostlými plodícími stromy (jabloně, hrušně, ořechy), které zadržují vláhu na pozemku a v horkých letních dnech zajišťují chladivý stín, poskytuje dostatek prostoru pro relaxaci i vlastní zahradní projekty. Zahradní domek pro uskladnění techniky či hobby zázemí.


LOKALITA
Klidná část středočeského města Kouřim, cca 1 km od centra, v těsné blízkosti Skanzenu - Muzea lidových staveb, s málo pravděpodobnou další výstavbou v těsném okolí.
Dostupnost:
• Kostelec and Černými lesy – cca 10 min
• Český Brod – cca 15 min
• Kolín – cca 20 min
• Říčany – cca 25 min
• Praha – cca 30 min

CO ZBÝVÁ DOKONČIT
• Jedna koupelna (obklady, dlažba, sanita částečně k dispozici)
• Instalace odtahových ventilátorů z koupelen
• Instalace vnitřních dveří
• Dopojení zadních svodů do retenční nádrže
• Dokončení dlažby parkovacího stání a chodníčku
• Terasa, oplocení a příp. terénní úpravy

V prezentaci je k dispozici 2D a 3D půdorys s výměrami a vizualizace, pro inspiraci.
Pokud hledáte nový domov pro svou rodinu a chcete kvalitní, nízkoenergetický dům v klidné lokalitě, tak se na mě můžete obrátit. Ráda Vám poskytnu více informací k této nemovitosti a provedu Vás na osobní prohlídce.

Parametry domu

Cena
11 590 000 Kč /za nemovitost Spočítat hypotéku
Poznámka k ceně
včetně provize, včetně právního servisu
Aktualizováno
19. 2. 2026
Adresa
Nad Hrázkou, Kouřim
ID
00214
Stavba
Dřevěná
Stav objektu
Novostavba
Vybaveno
Ne
Druh objektu
Samostatný
Lokalita objektu
Klidná část obce
Užitná plocha
124 m2
Zastavěná plocha
146 m2
Plocha pozemku
1312 m2
Plocha zahrady
1166 m2
Třída energetické náročnosti
B - Velmi úsporná
Ukazatel energetické náročnosti
124 kWh/m2 za rok
Elektřina
400V
Odpad
Veřejná kanalizace
Telekomunikace
Internet
Voda
Vodovod
Topné těleso
Podlahové vytápění, Krbová kamna, Klimatizace
Zdroj topení
Tepelné čerpadlo, Krbová kamna
Zdroj teplé vody
Tepelné čerpadlo, Bojler - elektro, Průtokový ohřívač
Bezbarierový přístup
Parkování

Kontaktovat makléře

Realitní kancelář

TOP MAKLÉŘKY

Politických vězňů 42, Kolín

Chystáte se prodat nemovitost?
Pomůžeme Vám!

Máte zájem o tento dům?

Tímto, v souladu s nařízením Evropského parlamentu a Rady (EU) 2016/679, v platném znění, prohlašuji, že mi je alespoň 16 let a uděluji tak svůj souhlas se zpracováním zadaných údajů (jméno, telefon, e-mail, ip adresa) společnosti B3 Technology, s.r.o., IČ: 07330600, se sídlem Novostavby 126/23, 435 11 Lom (správce dat), za účelem předání dotazu z tohoto formuláře Vámi vybranému inzerentovi a zpětného kontaktování mé osoby. Osobní údaje bude správce zpracovávat manuálně i automaticky přímo prostřednictvím svých zaměstnanců. Informace předané tímto formulářem budou uloženy v databázi správce maximálně po dobu 10 let. Odvolání souhlasu s uložením a zpracováním poskytnutých dat lze e-mailem na info@bydlisnami.cz. V případě podezření na neoprávněné použití Vámi poskytnutých údajů máte právo předat podnět k šetření Úřadu pro ochranu osobních údajů. Více informací
Chystáte se prodat nemovitost?
Pomůžeme Vám!

Inzerát si prohlédlo 0 lidí

Prodejce

Monika Vlčková

Monika Vlčková

Hlídací pes

Chcete dostávat emailem podobné nabídky prodeje rodinných domů v Kouřimi?

Podobné nemovitosti