Prodej rodinného domu, Neveklov - Nebřich, 116 m2

Neveklov, Nebřich

9 100 000 Kč /za nemovitost HYPOTÉKA od 40 671 Kč /za měsíc

(cena k jednání)

Doporučené firmy v Neveklově

Informace k domu

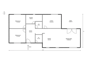
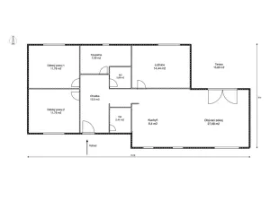
Nabízíme k prodeji rodinný dům 4+kk v části obce Nebřich - Neveklov, okres Benešov. Jednopodlažní dřevostavba ve velmi dobrém stavu nabízí komfortní a moderní rodinné bydlení s krásnými výhledy do okolní přírody. Dům je v osobním vlastnictví a dispozičně nabízí prostorný obývací pokoj propojený s kuchyní, tři ložnice a praktické zázemí v technické místnosti. Výhodou jsou také dvě WC a koupelna s velkým sprchovým koutem. Pochozí půda s dřevěnými krovy pak představuje možnost přestavby v bytovou jednotku nebo úložný prostor.

Interiér je částečně vybaven, výraznou předností je krásná kuchyňská linka vybavená moderními spotřebiči. Podlahové vytápění je zajištěno tepelným čerpadlem, což přispívá k nízkým provozním nákladům a komfortnímu vytápění. Na zahradě se nachází bazén, který doplňuje volnočasové možnosti a zvyšuje atraktivitu nemovitosti. Na zahradě je také založen ovocný sad (švestka, broskev, jabloně, třešně, rakytník), ale najde se tu i prostor pro pěstování vlastní zeleniny. Vlastní zdroj dešťové vody na zálivku přispívá k větší udržitelnosti a snížení nákladů.
Voda v domě je zajišťována z vrtané studny. V domě je i komínová vložka, která je připravená na připojení krbových kamen.

Technické a další informace:
Elektřina: 230 i 400 V. vlastní zdroj Fotovoltaika o výkonu 5,6kWp a bateriové uložiště o kapacitě 11,2kWh. V případě výpadku sítě je dům plně zálohovaný bateriemi.
stav objektu — velmi dobrý, rok výstavby 2020
zdroj topení — tepelné čerpadlo
topné těleso — podlahové vytápění
druh objektu — dřevostavba
Stavba je celkově velmi ekologická a navržena s důrazem na nízké provozní náklady a dlouhodobou energetickou stabilitu.

Nemovitost je vhodná pro zájemce hledající klidné bydlení s kontaktem s přírodou a komfortními technologiemi vytápění. Přátelské až komunitní sousedské prostředí v klidné rezidenční části. Lokalita poskytuje pěkné výhledy a dostatek soukromí.
K nastěhování po domluvě. Cena k jednání.

V Neveklově, který je vzdálen necelých 10 km najdete veškerou občanskou vybavenost. Cesta z Prahy Vám zabere cca 40min., cesta z Benešova cca 20min.
Pokud jste rozhodnuti pro změnu svého bydlení, neváhejte nás kontaktovat a domluvit si prohlídku.

Parametry domu

Cena
9 100 000 Kč /za nemovitost Spočítat hypotéku
Poznámka k ceně
cena k jednání
Aktualizováno
19. 3. 2026
Adresa
Neveklov, Nebřich
ID
1251
Stavba
Dřevěná
Stav objektu
Velmi dobrý
Vybaveno
Částečně
Typ objektu
Přízemní
Druh objektu
Samostatný
Lokalita objektu
Okraj obce
Užitná plocha
116 m2
Plocha pozemku
1012 m2
Plocha zahrady
1012 m2
Třída energetické náročnosti
B - Velmi úsporná
Elektřina
230V, 400V
Odpad
ČOV pro celý objekt
Komunikace
Neupravená
Telekomunikace
Internet
Doprava
Silnice, Autobus
Voda
Studna
Převod do OV

Kontaktovat makléře

Máte zájem o tento dům?

Tímto, v souladu s nařízením Evropského parlamentu a Rady (EU) 2016/679, v platném znění, prohlašuji, že mi je alespoň 16 let a uděluji tak svůj souhlas se zpracováním zadaných údajů (jméno, telefon, e-mail, ip adresa) společnosti B3 Technology, s.r.o., IČ: 07330600, se sídlem Novostavby 126/23, 435 11 Lom (správce dat), za účelem předání dotazu z tohoto formuláře Vámi vybranému inzerentovi a zpětného kontaktování mé osoby. Osobní údaje bude správce zpracovávat manuálně i automaticky přímo prostřednictvím svých zaměstnanců. Informace předané tímto formulářem budou uloženy v databázi správce maximálně po dobu 10 let. Odvolání souhlasu s uložením a zpracováním poskytnutých dat lze e-mailem na info@bydlisnami.cz. V případě podezření na neoprávněné použití Vámi poskytnutých údajů máte právo předat podnět k šetření Úřadu pro ochranu osobních údajů. Více informací
Chystáte se prodat nemovitost?
Pomůžeme Vám!

Inzerát si prohlédlo 8 lidí

Prodejce

Bc. Iva Hašková

Bc. Iva Hašková

Hlídací pes

Chcete dostávat emailem podobné nabídky prodeje rodinných domů v Neveklově?

Podobné nemovitosti