Pronájem bytu 3+kk, Praha - Nové Město, Soukenická, 71 m2

Soukenická, Praha 1

33 000 Kč /za měsíc Získejte výhodnou HYPOTÉKU

(měsíční záloha na spotřebu a služby 2 000 Kč)

Doporučené firmy v Praze 1

Stěhovací služby

Výkup a prodej starého nábytku

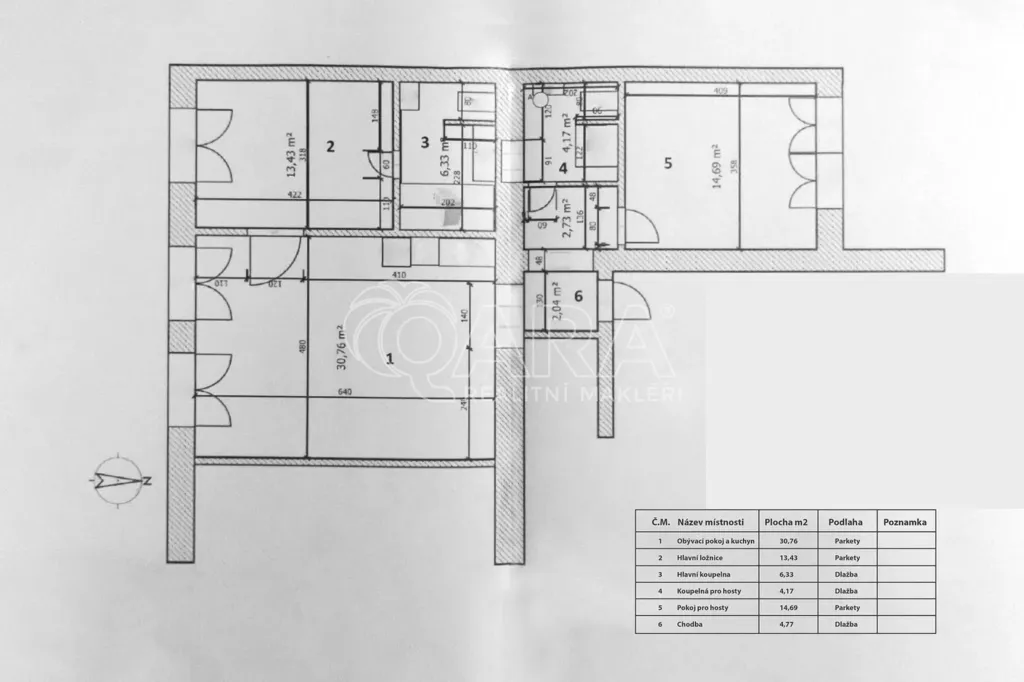
Informace k bytu

Nabízím Vám zprostředkování pronájmu bytu 3+kk o velikosti 71m2 v centru Prahy, v ulici Soukenická, kousek od náměstí Republiky.

Byt po kompletní rekonstrukci se nachází ve 3. patře činžovního domu bez výtahu. V klimatizovaném obývacím pokoji s kuchyňským koutem najdete kompletně vybavenou kuchyňskou linku (velká americká lednice, myčka, plynová varná deska, horkovzdušná trouba, digestoř), barový jídelní stůl propojený s kuchyňskou linkou, gauč a televizní komodu. Na obývací pokoj navazuje hlavní ložnice s manželskou postelí a velkou vestavěnou skříní, propojená s designovou koupelnou. V ní najdete velkou vanu a toaletu. Další ložnice je vybavenou velkou, samostatně stojící skříní. Další úložné prostory v bytě zajišťují vestavěné skříně ve vstupní chodbě. V bytě najdete i druhou koupelnu, se sprchovým koutem a toaletou.

V obytné části jsou laminátové podlahy, v koupelně a vstupní chodbě dlažba. Vytápění a ohřev teplé vody je řešeno plynovým kotlem. V bytě jsou nainstalované bezpečnostní vstupní dveře, prvky inteligentního ovládání domácnosti a elektricky ovládané rolety. Zajímavostí bytu jsou zachované původní historické prvky, včetně špaletových oken.

Byt se nachází v centru Prahy, v v oblíbené části Petrská čtvrť. V bezprostředním okolí najdete vše potřebné pro život i zábavu - obchodní centrum Palladium a Kotva (možno dlouhodobě pronajmout parkovací stání), nepřeberné množství kaváren, restaurací a bister, multikino, stanici metra i tramvaje, i oblíbenou pražskou náplavku.

Záloha na spotřebu a služby 2 000 Kč měsíčně, ročně vyúčtované dle skutečné spotřeby. Smlouva na dodávku elektrické energie a plynu se převádí na nájemníka - odhadované měsíční náklady cca 4 - 5tis.Kč měsíčně. Třída energetické náročnosti G, jelikož se jedná o budovu v historickém centru města.

Hledáme dlouhodobého solidního nájemce, nastěhování možné ihned.

Neplatíte provizi RK! Vratná kauce ve výši dvou měsíčních nájmů.

Parametry bytu

Cena
33 000 Kč /za měsíc
Poznámka k ceně
měsíční záloha na spotřebu a služby 2 000 Kč
Aktualizováno
4. 4. 2026
Adresa
Soukenická, Praha 1
ID
18919
Stavba
Cihlová
Stav objektu
Velmi dobrý
Patro
3. z 4
Vybaveno
Částečně
Lokalita objektu
Centrum obce
Vlastnictví
Osobní
Užitná plocha
71 m2
Podlahová plocha
71 m2
Třída energetické náročnosti
G - Mimořádně nehospodárná
Plyn
Plynovod
Odpad
Veřejná kanalizace
Komunikace
Asfaltová
Telekomunikace
Telefon, Internet
Doprava
Silnice, MHD
Voda
Vodovod

Kontaktovat makléře

Realitní kancelář

Logo QARA, s.r.o.

QARA, s.r.o.

Šafaříkova 201/17, Praha

Chystáte se prodat nemovitost?
Pomůžeme Vám!

Máte zájem o tento byt?

Tímto, v souladu s nařízením Evropského parlamentu a Rady (EU) 2016/679, v platném znění, prohlašuji, že mi je alespoň 16 let a uděluji tak svůj souhlas se zpracováním zadaných údajů (jméno, telefon, e-mail, ip adresa) společnosti B3 Technology, s.r.o., IČ: 07330600, se sídlem Novostavby 126/23, 435 11 Lom (správce dat), za účelem předání dotazu z tohoto formuláře Vámi vybranému inzerentovi a zpětného kontaktování mé osoby. Osobní údaje bude správce zpracovávat manuálně i automaticky přímo prostřednictvím svých zaměstnanců. Informace předané tímto formulářem budou uloženy v databázi správce maximálně po dobu 10 let. Odvolání souhlasu s uložením a zpracováním poskytnutých dat lze e-mailem na info@bydlisnami.cz. V případě podezření na neoprávněné použití Vámi poskytnutých údajů máte právo předat podnět k šetření Úřadu pro ochranu osobních údajů. Více informací
Chystáte se prodat nemovitost?
Pomůžeme Vám!

Inzerát si prohlédlo 4 lidí

Prodejce

Ing. Jan Novotný

Ing. Jan Novotný

Hlídací pes

Chcete dostávat emailem podobné nabídky pronájmu bytů 3+kk v Praze 1?

Podobné nemovitosti