Prodej bytu 3+1, Mladá Boleslav, Jana Palacha, 79 m2

Jana Palacha, Mladá Boleslav II

5 390 000 Kč /za nemovitost HYPOTÉKA od 24 090 Kč /za měsíc
Doporučené firmy v Mladé Boleslavi

Informace k bytu

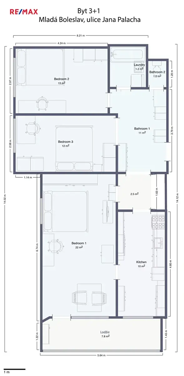
Ve výhradním zastoupení majitele nabízíme k prodeji útulný byt 3+1 v osobním vlastnictví o užitné ploše 69 m², situovaný ve 2. patře zatepleného a udržovaného panelového domu ve městě Mladá Boleslav.

Byt je v dobrém stavu a nabízí praktické dispoziční řešení, které ocení zejména rodiny hledající pohodlné a dostupné bydlení. Velkou výhodou je prostorná lodžie o velikosti 7 m² s příjemným výhledem do okolí – ideální místo pro ranní kávu nebo večerní relax. K bytu náleží také sklepní kóje o výměře 3 m², která poskytuje dostatek úložného prostoru.

Nemovitost se nachází v atraktivní lokalitě nedaleko 11. brány společnosti Škoda Auto, což z ní činí zajímavou příležitost i z investičního hlediska.

V docházkové vzdálenosti je kompletní občanská vybavenost – škola, školka, lékař, autobusové i vlakové nádraží a obchodní centrum Bondy Centrum.

Okolí domu prošlo rekonstrukcí a za domem se nachází biotop a dětské hřiště, což vytváří příjemné prostředí pro rodinný život.

Byt je momentálně užíván nájemníky. Možnost nastěhování od 01.05.2026.

Tento byt představuje skvělou příležitost jak pro vlastní bydlení, tak jako investici k pronájmu v žádané lokalitě. Pro více informací nebo sjednání prohlídky mě neváhejte kontaktovat.

Parametry bytu

Cena
5 390 000 Kč /za nemovitost Spočítat hypotéku
Aktualizováno
24. 2. 2026
Adresa
Jana Palacha, Mladá Boleslav II
ID
0201-NP03349
Stavba
Panelová
Stav objektu
Před rekonstrukcí
Patro
2. z 7
Vlastnictví
Osobní
Užitná plocha
79 m2
Zastavěná plocha
79 m2
Podlahová plocha
89 m2
Třída energetické náročnosti
G - Mimořádně nehospodárná
Elektřina
230V
Plyn
Plynovod
Odpad
Veřejná kanalizace
Komunikace
Betonová, Asfaltová, Zpevněná
Telekomunikace
Internet
Doprava
Vlak, Dálnice, Silnice, MHD, Autobus
Voda
Vodovod
Topné těleso
Radiátory
Sklep
Lodžie
Výtah

Kontaktovat makléře

Máte zájem o tento byt?

Tímto, v souladu s nařízením Evropského parlamentu a Rady (EU) 2016/679, v platném znění, prohlašuji, že mi je alespoň 16 let a uděluji tak svůj souhlas se zpracováním zadaných údajů (jméno, telefon, e-mail, ip adresa) společnosti B3 Technology, s.r.o., IČ: 07330600, se sídlem Novostavby 126/23, 435 11 Lom (správce dat), za účelem předání dotazu z tohoto formuláře Vámi vybranému inzerentovi a zpětného kontaktování mé osoby. Osobní údaje bude správce zpracovávat manuálně i automaticky přímo prostřednictvím svých zaměstnanců. Informace předané tímto formulářem budou uloženy v databázi správce maximálně po dobu 10 let. Odvolání souhlasu s uložením a zpracováním poskytnutých dat lze e-mailem na info@bydlisnami.cz. V případě podezření na neoprávněné použití Vámi poskytnutých údajů máte právo předat podnět k šetření Úřadu pro ochranu osobních údajů. Více informací
Chystáte se prodat nemovitost?
Pomůžeme Vám!

Inzerát si prohlédlo 0 lidí

Prodejce

Michal Ptašinský

Michal Ptašinský

Hlídací pes

Chcete dostávat emailem podobné nabídky prodeje bytů 3+1 v Mladé Boleslavi?

Podobné nemovitosti