Pronájem ubytování, Praha - Uhříněves, Přátelství, 626 m2

Přátelství, Praha 10, Uhříněves

175 280 Kč /za měsíc Získejte výhodnou HYPOTÉKU
Doporučené firmy v Praze 10

Stěhovací služby

Výkup a prodej starého nábytku

Informace k nemovitosti

Pronájem nebytového prostoru, 626 m² Praha 22, Uhříněves, ul. Přátelství

K pronájmu je administrativní budova o celkové ploše 718,96 m², která je součástí dobře udržovaného areálu s výrobními objekty a sklady. Areál má výbornou dopravní dostupnost díky přímému vjezdu z hlavní státní silnice, která navazuje na výpadovku směrem na Kutnou Horu. K dispozici jsou zpevněné plochy, oplocení, studny a veškeré inženýrské sítě, což umožňuje široké spektrum komerčního využití.

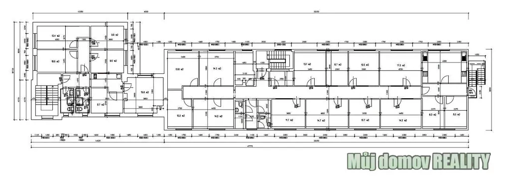
Dvoupodlažní budova je částečně podsklepená. V suterénu se nachází kotelna a skladovací prostory. V 1. nadzemním podlaží jsou zděné konstrukce se zateplením, ve 2. nadzemním podlaží jsou použity montované konstrukce s kovovými sloupy. Jednotlivá podlaží jsou propojena třemi schodišti. Budova nabízí kanceláře, zasedací místnost a díky svému uspořádání může sloužit jak pro administrativní účely, tak po rekolaudaci i jako ubytovací zařízení.

Nabízíme k pronájmu samostatnou dvoupatrovou budovu o celkové užitné ploše 626 m² v Praze 22 Uhříněves, ulice Přátelství. Objekt je vhodný zejména jako ubytovna pro zaměstnance (nutná kolaudace na ubytovací zařízení), sídlo společnosti, administrativní budova, coworkingové centrum nebo kombinace kancelářských prostor a ubytování. Díky své dispozici poskytuje dostatek prostoru pro provoz firmy i zázemí zaměstnanců.

Budova disponuje celkem 26 pokoji a praktickým dispozičním řešením.

Dispozice objektu:
Přízemí: 5 pokojů, kuchyň, 4 sprchy a 4 toalety
Sklepní prostory: 3 místnosti vhodné jako sklad, technické zázemí nebo provozní prostory

patro: 6 pokojů, kuchyň, 2 toalety se sprchou
Samostatná část budovy: kuchyň, 15 pokojů, 4 toalety a 3 sprchy možnost odděleného provozu

Variabilita dispozice umožňuje rozdělení objektu na více samostatných celků, kombinaci administrativního a ubytovacího využití nebo vytvoření plnohodnotného firemního zázemí.

Nemovitost je ve smíšené konstrukci, v dobrém technickém stavu a připravena k okamžitému užívání. Objekt se pronajímá bez vybavení. Energetická náročnost budovy je třídy G (mimořádně nehospodárná).

K dispozici jsou 3 venkovní parkovací stání.

Dopravní dostupnost je velmi dobrá. Zastávka MHD se nachází přibližně 2 minuty chůze od budovy, s rychlým spojením do centra Prahy i dalších městských částí. V blízkosti je také vlakové spojení.

Lokalita nabízí kompletní občanskou vybavenost. V docházkové vzdálenosti se nachází supermarket Lidl, další obchody, restaurace, kavárny, služby, lékárna i další provozovny. V okolí jsou zdravotnická zařízení, pošta, banky, školy a školky. Pro volný čas je k dispozici sportovní zázemí, fitness centra, cyklostezky a zeleň.

Základní informace:
Užitná plocha: 626 m²
Měsíční nájemné: 175 280 Kč (cca 280 Kč/m²)
Zálohy na služby: cca 20 000 Kč měsíčně
Vratná kauce: 175 000 Kč
Provize realitní kanceláři: 175 000 Kč + DPH
K dispozici ihned

Kontakt:
Realitní kancelář: Můj domov REALITY
Makléř: Lidiya Savynets
Viber / WhatsApp / Telegram: @LidiyaSyvynets

Pro více informací nebo sjednání prohlídky mě neváhejte kontaktovat. Ráda vám nemovitost osobně představím. Tento objekt představuje praktické a flexibilní zázemí pro podnikání v Praze.

Parametry nemovitosti

Cena
175 280 Kč /za měsíc
Aktualizováno
20. 4. 2026
Adresa
Přátelství, Praha 10, Uhříněves
ID
2152
Stavba
Smíšená
Stav objektu
Dobrý
Typ objektu
Patrový
Užitná plocha
626 m2
Plocha pozemku
626 m2
Bezbarierový přístup
Nízkoenergetický

Kontaktovat makléře

Máte zájem o tuto nemovistost?

Tímto, v souladu s nařízením Evropského parlamentu a Rady (EU) 2016/679, v platném znění, prohlašuji, že mi je alespoň 16 let a uděluji tak svůj souhlas se zpracováním zadaných údajů (jméno, telefon, e-mail, ip adresa) společnosti B3 Technology, s.r.o., IČ: 07330600, se sídlem Novostavby 126/23, 435 11 Lom (správce dat), za účelem předání dotazu z tohoto formuláře Vámi vybranému inzerentovi a zpětného kontaktování mé osoby. Osobní údaje bude správce zpracovávat manuálně i automaticky přímo prostřednictvím svých zaměstnanců. Informace předané tímto formulářem budou uloženy v databázi správce maximálně po dobu 10 let. Odvolání souhlasu s uložením a zpracováním poskytnutých dat lze e-mailem na info@bydlisnami.cz. V případě podezření na neoprávněné použití Vámi poskytnutých údajů máte právo předat podnět k šetření Úřadu pro ochranu osobních údajů. Více informací
Chystáte se prodat nemovitost?
Pomůžeme Vám!

Inzerát si prohlédlo 12 lidí

Prodejce

Lidiya Savynets

Lidiya Savynets

Hlídací pes

Chcete dostávat emailem podobné nabídky pronájmu ubytování v Praze 10?

Podobné nemovitosti