Pronájem bytu 4+1, Praha - Vinohrady, Anny Letenské, 160 m2

Anny Letenské, Praha, Vinohrady

62 500 Kč /za měsíc Získejte výhodnou HYPOTÉKU

(Poplatky za služby a energie se hradí zvlášť.)

Doporučené firmy v Praze 2

Stěhovací služby

Výkup a prodej starého nábytku

Informace k bytu

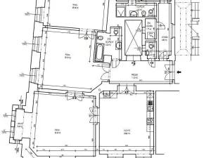
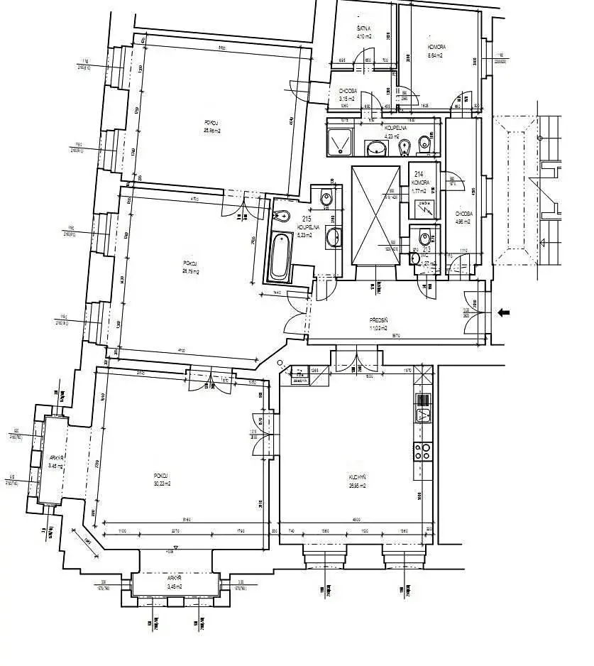
Reprezentativní nezařízený byt 4+1 (3 ložnice, 2 koupelny) o velikosti 160 m2, je situovaný ve 2.patře zrekonstruované rezidenční budovy s výtahem, v prestižní lokalitě Praha 2 Vinohrady, Anny Letenské.

Prostorný apartmán nabízí dispozičně: obývací pokoj s arkýři, separátní kuchyně s veškerým vybavením (lednice/mrazák, sporák/trouba, myčka). Kuchyň bude ještě dokončena honí skříňky, lednice + ostrůvek. Dále byt nabízí tři ložnice, dvě koupelny (v jedné vana a ve druhé sprcha), šatna, oddělená místnost s pračkou a se sušičkou.

Oblíbená rezidenční lokalita poskytuje komfortní bydlení s veškerou občanskou vybaveností (vyhlášené pekárny, farmářské trhy na Nám. Jiřího z Poděbrad, bistra, kavárny, různé obchůdky s delikatesy, supermarkety, OC Flora, a další), a v pěší dostupností do krásného parku Riegrovy Sady s venkovním posezením, atletickým stadionem, plovárnou, dětskými hřišti, relaxační zónou, propojeného s malebným parkem Rajská Zahrada s možností využití venkovní posilovny, hry Pétanque, hřiště s venkovním posezením. Výhodou je i rychlé spojení do centra města na Václavské náměstí a dalších částí Prahy.

Výborná dopravní dostupnost metrem (zastávka Muzeum: linka A/C, zastávka Náměstí Míru: linka A) a tramvají (zastávka Náměstí Míru, Italská, Muzeum). Dům se nachází pouze 10minut chůzí do centra města.

Poplatky za služby paušál 900, Kč/měsíčně/osobu + voda 350, Kč/osobu/měsíčně a energie (elektřina a plyn) platí nájemce dodavatelům služeb. Vratná kauce je ve výší 2 nájmů. Provize RK.
K dispozici od Dubna 2026, prohlídky možné po dohodě.

Možnost pronájmu parkování v blízkém okolí za poplatek, dle volné kapacity.

Parametry bytu

Cena
62 500 Kč /za měsíc
Poznámka k ceně
Poplatky za služby a energie se hradí zvlášť.
Aktualizováno
25. 2. 2026
Adresa
Anny Letenské, Praha, Vinohrady
ID
975174
Stavba
Cihlová
Stav objektu
Velmi dobrý
Patro
3.
Vybaveno
Ne
Vlastnictví
Osobní
Užitná plocha
160 m2
Podlahová plocha
160 m2
Třída energetické náročnosti
G - Mimořádně nehospodárná
Elektřina
230V
Plyn
Plynovod
Telekomunikace
Telefon
Doprava
Silnice, MHD, Autobus
Voda
Vodovod
Garáž
Výtah

Kontaktovat makléře

Máte zájem o tento byt?

Tímto, v souladu s nařízením Evropského parlamentu a Rady (EU) 2016/679, v platném znění, prohlašuji, že mi je alespoň 16 let a uděluji tak svůj souhlas se zpracováním zadaných údajů (jméno, telefon, e-mail, ip adresa) společnosti B3 Technology, s.r.o., IČ: 07330600, se sídlem Novostavby 126/23, 435 11 Lom (správce dat), za účelem předání dotazu z tohoto formuláře Vámi vybranému inzerentovi a zpětného kontaktování mé osoby. Osobní údaje bude správce zpracovávat manuálně i automaticky přímo prostřednictvím svých zaměstnanců. Informace předané tímto formulářem budou uloženy v databázi správce maximálně po dobu 10 let. Odvolání souhlasu s uložením a zpracováním poskytnutých dat lze e-mailem na info@bydlisnami.cz. V případě podezření na neoprávněné použití Vámi poskytnutých údajů máte právo předat podnět k šetření Úřadu pro ochranu osobních údajů. Více informací
Chystáte se prodat nemovitost?
Pomůžeme Vám!

Inzerát si prohlédlo 0 lidí

Prodejce

Eva Cinculová

Eva Cinculová

Hlídací pes

Chcete dostávat emailem podobné nabídky pronájmu bytů 4+1 v Praze 2?

Podobné nemovitosti