Prodej bytu 3+kk, České Budějovice, K Šindlovým Dvorům, 73 m2

K Šindlovým Dvorům, České Budějovice 2

8 170 000 Kč /za nemovitost HYPOTÉKA od 36 515 Kč /za měsíc
Doporučené firmy v Českých Budějovicích

Výkup a prodej starého nábytku

Informace k bytu

Ihned k nastěhování – prodej přímo od developera

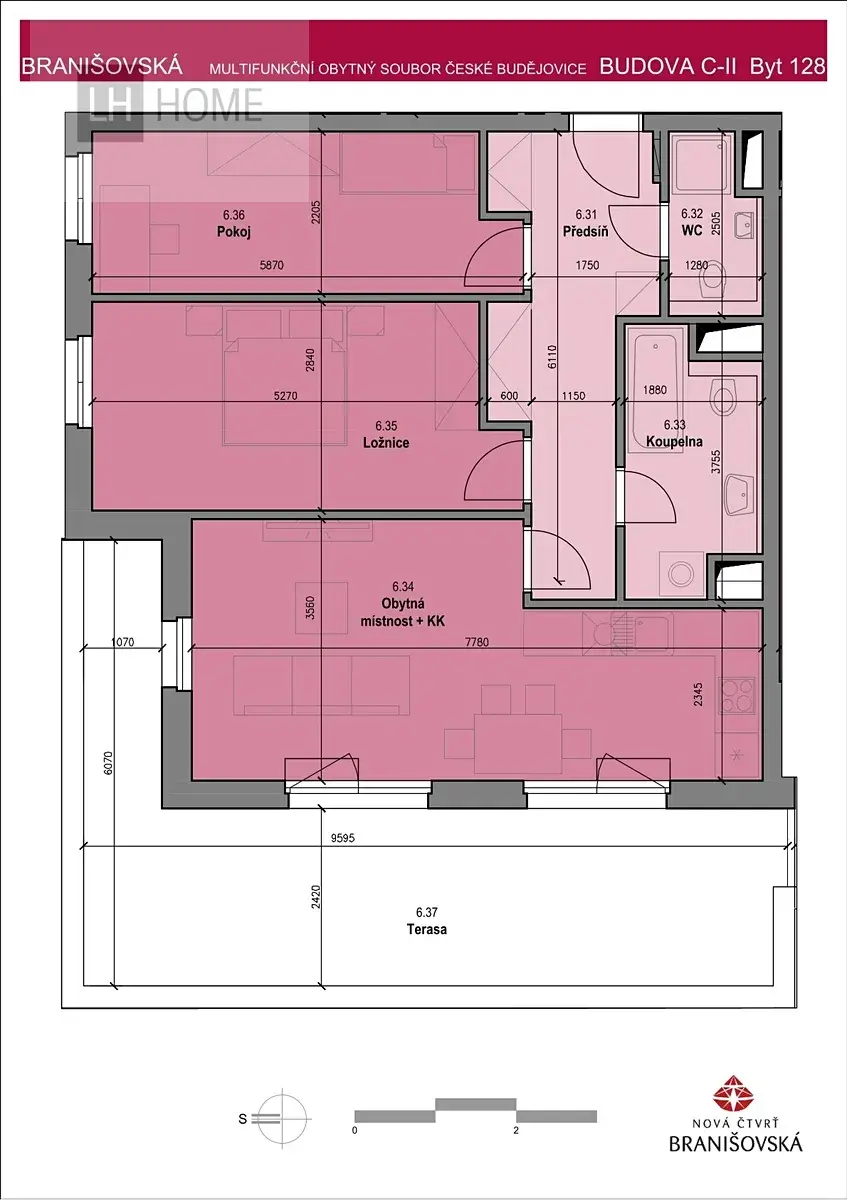
V projektu Nová čtvrť Branišovská v Českých Budějovicích nabízíme k prodeji moderní byt 3+kk o podlahové ploše 73,8 m² s prostornou terasou o velikosti 27 m².
Byt se nachází v posledním, 6. patře novostavby, což zajišťuje dostatek soukromí i příjemné výhledy. Velkorysá terasa přirozeně rozšiřuje obytný prostor bytu a nabízí ideální místo pro odpočinek, ranní kávu nebo večerní posezení s rodinou a přáteli.

Standard bytu
• vinylové podlahy
• keramické obklady a dlažba v koupelně a na WC
• prostorný sprchový kout
• koupelnová skříňka s umyvadlem a zrcadlem
• topný žebřík
• závěsná toaleta
• bílé interiérové dveře s obložkami
• videotelefon v každém bytě
• předokenní žaluzie

Nízké provozní náklady zajišťuje energetická náročnost budovy třídy A.

Lokalita – Nová čtvrť Branišovská
Projekt se nachází v příjemném a klidném prostředí s dostatkem zeleně a zároveň nabízí skvělou dostupnost do centra Českých Budějovic.
Výhodou je také blízkost Jihočeské univerzity, díky které je byt vhodný i jako investice.
V okolí se nachází kompletní občanská vybavenost.

Bytový dům C
Součást moderního rezidenčního projektu s 136 bezbariérovými byty.
Každý byt disponuje balkonem, lodžií nebo terasou.

Možnost dokoupení:
• garážového stání
• sklepní kóje

K nastěhování: ihned

V případě zájmu nás neváhejte kontaktovat. Rádi vám poskytneme více informací o bytě, možnostech financování i aktuální nabídce jednotek v projektu.

Parametry bytu

Cena
8 170 000 Kč /za nemovitost Spočítat hypotéku
Aktualizováno
26. 2. 2026
Adresa
K Šindlovým Dvorům, České Budějovice 2
ID
C-II 128
Stavba
Smíšená
Stav objektu
Novostavba
Patro
6. z 6
Vybaveno
Ne
Lokalita objektu
Klidná část obce
Vlastnictví
Osobní
Užitná plocha
73 m2
Třída energetické náročnosti
A - Mimořádně úsporná
Elektřina
400V
Odpad
Veřejná kanalizace
Komunikace
Asfaltová
Telekomunikace
Internet
Doprava
Vlak, Dálnice, Silnice, MHD, Autobus
Voda
Vodovod, Retenční nádrž na dešt’ovou vodu
Topné těleso
Radiátory
Zdroj topení
Centrální dálkové, Pára s výměníkem
Balkon
Výtah
Bezbarierový přístup

Kontaktovat makléře

Realitní kancelář

Luxury Home s.r.o.

Tepelská 137/3, Mariánské Lázně

Chystáte se prodat nemovitost?
Pomůžeme Vám!

Máte zájem o tento byt?

Tímto, v souladu s nařízením Evropského parlamentu a Rady (EU) 2016/679, v platném znění, prohlašuji, že mi je alespoň 16 let a uděluji tak svůj souhlas se zpracováním zadaných údajů (jméno, telefon, e-mail, ip adresa) společnosti B3 Technology, s.r.o., IČ: 07330600, se sídlem Novostavby 126/23, 435 11 Lom (správce dat), za účelem předání dotazu z tohoto formuláře Vámi vybranému inzerentovi a zpětného kontaktování mé osoby. Osobní údaje bude správce zpracovávat manuálně i automaticky přímo prostřednictvím svých zaměstnanců. Informace předané tímto formulářem budou uloženy v databázi správce maximálně po dobu 10 let. Odvolání souhlasu s uložením a zpracováním poskytnutých dat lze e-mailem na info@bydlisnami.cz. V případě podezření na neoprávněné použití Vámi poskytnutých údajů máte právo předat podnět k šetření Úřadu pro ochranu osobních údajů. Více informací
Chystáte se prodat nemovitost?
Pomůžeme Vám!

Inzerát si prohlédlo 6 lidí

Prodejce

Antonie Hadačová

Antonie Hadačová

Hlídací pes

Chcete dostávat emailem podobné nabídky prodeje bytů 3+kk v Českých Budějovicích?

Podobné nemovitosti