Prodej vily, Průhonice, K Doubí, 247 m2 (ID: 2561055)

K Doubí, Průhonice

Cena na vyžádání /za nemovitost Získejte výhodnou HYPOTÉKU
Doporučené firmy v Průhonicích

Informace k domu

Nabízíme k prodeji výjimečnou rezidenční vilu s dvojgaráží, privátní wellness zónou, vyhřívaným venkovním bazénem a architektonicky komponovanou zahradou, navrženou renomovaným studiem s důrazem na estetiku, funkčnost a dlouhodobou hodnotu.

Nemovitost se nachází v rámci exkluzivního projektu Park Resort Průhonice, jedné z nejprestižnějších rezidenčních adres v bezprostředním okolí Prahy. Bezprostřední blízkost vstupu do světoznámého Průhonického parku vytváří unikátní rovnováhu mezi moderním komfortem, absolutním soukromím a přímým kontaktem s přírodou.

Tato vila představuje ideální volbu pro klienty hledající nadčasovou architekturu, klid a vysoký standard bydlení v dosahu hlavního města.

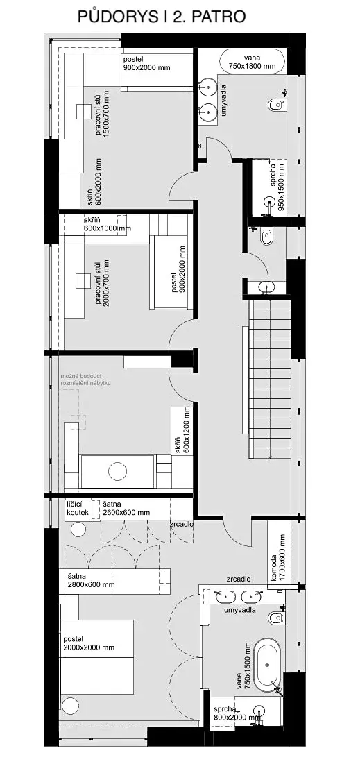
Dominantou přízemí je velkorysý obytný prostor o výměře 109 m², který v sobě harmonicky propojuje obývací část, jídelnu a kuchyň. Velkoformátová okna přivádějí do interiéru maximum denního světla a přirozeně propojují vnitřní prostor se zahradou, čímž umocňují pocit otevřenosti a kontinuity.

Na obytnou část navazuje privátní wellness a fitness zóna se saunou, navržená jako klidové místo pro regeneraci a každodenní rovnováhu.

Přízemí dále nabízí reprezentativní vstupní halu s přímým vstupem z dvojgaráže, samostatnou toaletu, technické zázemí a praktickou spíž, vše navrženo s důrazem na funkčnost a čistotu prostoru.

Horní podlaží tvoří klidovou privátní zónu se čtyřmi ložnicemi. Hlavní ložnice disponuje vlastní koupelnou typu en-suite a prostornou šatnou. Další tři ložnice mají k dispozici samostatnou koupelnu s vanou, sprchovým koutem a oddělenou toaletou, což zajišťuje vysoký komfort pro všechny členy domácnosti.

Interiér je realizován v nadstandardním provedení s důrazem na kvalitu materiálů, precizní zpracování a nadčasovou estetiku. Aktuální fáze dokončení zároveň umožňuje budoucímu majiteli provést individuální úpravy dle vlastních preferencí.

TECHNOLOGIE A TECHNICKÝ STANDARD

Technologické řešení domu odpovídá současným nárokům na komfort, bezpečnost a energetickou efektivitu:

• velkoformátová hliníková okna s izolačními trojskly a nadstandardními parametry
• podlahové vytápění v celém domě zajišťující rovnoměrný tepelný komfort
• dubové masivní podlahy v kombinaci s designovou epoxidovou stěrkou
• designový vestavěný krb na dřevo
• podlahová klimatizace diskrétně integrovaná do architektury interiéru
• komplexní zabezpečovací a kamerový systém
• automatický zavlažovací systém napojený na retenční nádrž
• dvojgaráž s nabíjecí stanicí pro elektromobil a dostatečným úložným prostorem

ZAHRADA A EXTERIÉR

Zahrada byla navržena jako plnohodnotná součást architektonického konceptu domu. Nabízí vysokou míru soukromí a přirozeně navazuje na obytný prostor.

Součástí exteriéru je:

• vyhřívaný venkovní bazén umožňující prodlouženou koupací sezónu
• krytá venkovní kuchyně pro společenská setkání
• architektonicky řešený zahradní domek
• citlivě začleněné dětské hřiště
• vyvýšené záhony a pečlivě komponovaná zeleň

Celek vytváří harmonické prostředí, které nabízí jak prostor pro klidný odpočinek, tak pro společenský život.

LOKALITA – Park Resort Průhonice

Park Resort Průhonice představuje uzavřenou rezidenční komunitu, která patří mezi nejvyhledávanější lokality pro rodinné bydlení v blízkosti Prahy.

Významnou hodnotou této lokality je přímý přístup do Průhonického parku, jedné z nejvýznamnějších krajinářských kompozic v Evropě.

V bezprostředním okolí se nachází:

• vstup do Průhonického parku v docházkové vzdálenosti
• renomovaná restaurace Babiččina zahrada
• cyklostezky, běžecké a procházkové trasy
• mateřské a základní školy v blízkém dosahu
• pravidelné spojení do centra Prahy
• rychlé napojení na dálnici D1 a Pražský okruh

Lokalita nabízí ideální rovnováhu mezi klidem přírodního prostředí a dostupností městské infrastruktury.

PLOCHY

Užitná plocha: 286 m²
– interiér: 247 m²
– dvojgaráž: 39 m²

Terasa: 22 m²
Zastavěná plocha: 213 m²
Zahrada: 938 m²
Celková plocha pozemku: 1 151 m²

Parametry domu

Cena
Cena na vyžádání Spočítat hypotéku
Aktualizováno
1. 5. 2026
Adresa
K Doubí, Průhonice
Stavba
Cihlová
Stav objektu
Novostavba
Užitná plocha
247 m2
Zastavěná plocha
213 m2
Plocha pozemku
1151 m2
Plocha zahrady
938 m2
Třída energetické náročnosti
B - Velmi úsporná
Garáž
Bazén

Kontaktovat makléře

Máte zájem o tento dům?

Tímto, v souladu s nařízením Evropského parlamentu a Rady (EU) 2016/679, v platném znění, prohlašuji, že mi je alespoň 16 let a uděluji tak svůj souhlas se zpracováním zadaných údajů (jméno, telefon, e-mail, ip adresa) společnosti B3 Technology, s.r.o., IČ: 07330600, se sídlem Novostavby 126/23, 435 11 Lom (správce dat), za účelem předání dotazu z tohoto formuláře Vámi vybranému inzerentovi a zpětného kontaktování mé osoby. Osobní údaje bude správce zpracovávat manuálně i automaticky přímo prostřednictvím svých zaměstnanců. Informace předané tímto formulářem budou uloženy v databázi správce maximálně po dobu 10 let. Odvolání souhlasu s uložením a zpracováním poskytnutých dat lze e-mailem na info@bydlisnami.cz. V případě podezření na neoprávněné použití Vámi poskytnutých údajů máte právo předat podnět k šetření Úřadu pro ochranu osobních údajů. Více informací
Chystáte se prodat nemovitost?
Pomůžeme Vám!

Inzerát si prohlédlo 4 lidí

Prodejce

Ing. Stanislava Tremlová

Ing. Stanislava Tremlová

Hlídací pes

Chcete dostávat emailem podobné nabídky prodeje vil v Průhonicích?

Podobné nemovitosti