Pronájem bytu 3+kk, Brno, Mathonova, 65 m2

Mathonova, Brno, Černá Pole

23 000 Kč /za měsíc Získejte výhodnou HYPOTÉKU

(+ provize RK)

Doporučené firmy v Brně

Informace k bytu

Krásný zařízený byt 3+kk v Černých Polích v Brně

V zastoupení majitelky si vám dovoluji nabídnout pronájem vkusně zrekonstruovaného bytu 3+kk v atraktivní rezidenční brněnské čtvrti, v Černých Polích na ulici Mathonova.

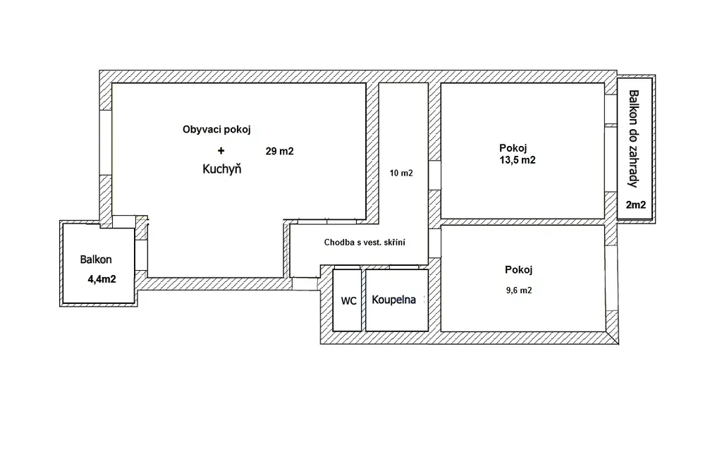
• 3+kk, 65 m2 + 2 balkony + sklep
• 2. patro, orientace východ – západ
• bonus: zahrádka, prádelna
• klidný dům v žádané lokalitě

Jedná se o bytovou jednotku se dvěma balkony situovanou ve 2. patře cihlového bytového domu. Byt o podlahové ploše 65 m² prošel celkovou rekonstrukcí a nabízí se kompletně vybavený a zařízený (kuchyňská linka s vestavěnými spotřebiči, lednička, myčka, mikrovlnná trouba, vestavěné skříně a dále vizte foto). Dispozičně je byt velmi dobře řešený, prostorná obytná část s větší lodžií (4,4 m²) je orientována na západ, klidová zóna s ložnicí s balkonem (2 m²) a dětským pokojem na východ do klidného vnitrobloku se zahradou k využití. Vytápění zajišťuje plynová kotelna v domě, ohřev teplé vody el. bojler. K bytu dále náleží prostorný sklep (4,4 m²), k dispozici je prádelna kde je umístěna pračka se sušičkou, a sušárna. Internet je zaveden, není zahrnut v ceně nájmu. Dům je velmi klidný, nachází se v něm jen 7 bytů (2 byty na patře).

Jedná se o nadstandardní bydlení v klidné čtvrti s veškerou občanskou vybaveností v docházkové vzdálenosti (MHD, obchody, ZŠ, MŠ, posilovna, park a hřiště, knihovna, kinokavárna, lékárna, kadeřnictví ad.).
Významným benefitem je kromě žádané lokality a zahrady také velmi snadné dopravní napojení na brněnský okruh a výpadovky na D1.

Byt bude k dispozici od 1. 5. 2026. Srdečně vás zveme na prohlídku.

Parametry bytu

Cena
23 000 Kč /za měsíc
Poznámka k ceně
+ provize RK
Náklady na bydlení
+ 6.000,- Kč zálohy na energie a služby
Aktualizováno
3. 3. 2026
Adresa
Mathonova, Brno, Černá Pole
ID
032026
Stavba
Cihlová
Stav objektu
Po rekonstrukci
Patro
3.
Vybaveno
Ano
Lokalita objektu
Klidná část obce
Vlastnictví
Osobní
Užitná plocha
65 m2
Podlahová plocha
75 m2
Plocha zahrady
20 m2
Třída energetické náročnosti
D - Méně úsporná
Elektřina
230V
Plyn
Plynovod
Komunikace
Asfaltová
Telekomunikace
Internet
Doprava
Silnice, MHD
Voda
Vodovod
Topné těleso
Radiátory
Zdroj topení
Plynový kondenzační kotel
Zdroj teplé vody
Bojler - elektro
Balkon
Sklep
Lodžie
Výtah
Bezbarierový přístup

Kontaktovat makléře

Realitní kancelář

Jana Nepalová

Mathonova 1807/64, Brno, Černá Pole

Chystáte se prodat nemovitost?
Pomůžeme Vám!

Máte zájem o tento byt?

Tímto, v souladu s nařízením Evropského parlamentu a Rady (EU) 2016/679, v platném znění, prohlašuji, že mi je alespoň 16 let a uděluji tak svůj souhlas se zpracováním zadaných údajů (jméno, telefon, e-mail, ip adresa) společnosti B3 Technology, s.r.o., IČ: 07330600, se sídlem Novostavby 126/23, 435 11 Lom (správce dat), za účelem předání dotazu z tohoto formuláře Vámi vybranému inzerentovi a zpětného kontaktování mé osoby. Osobní údaje bude správce zpracovávat manuálně i automaticky přímo prostřednictvím svých zaměstnanců. Informace předané tímto formulářem budou uloženy v databázi správce maximálně po dobu 10 let. Odvolání souhlasu s uložením a zpracováním poskytnutých dat lze e-mailem na info@bydlisnami.cz. V případě podezření na neoprávněné použití Vámi poskytnutých údajů máte právo předat podnět k šetření Úřadu pro ochranu osobních údajů. Více informací
Chystáte se prodat nemovitost?
Pomůžeme Vám!

Inzerát si prohlédlo 0 lidí

Prodejce

Bc. Jana Nepalová

Bc. Jana Nepalová

Hlídací pes

Chcete dostávat emailem podobné nabídky pronájmu bytů 3+kk v Brně?

Podobné nemovitosti