Molík reality

Pronájem kanceláře, Litvínov, 90 m2 (ID: 2564151)

Litvínov

175 Kč /za metr čtvereční / měsíc Získejte výhodnou HYPOTÉKU

(Cena je uvedena bez DPH, bez DPH, bez poplatků)

Doporučené firmy v Litvínově

Okna a dveře

Rekonstrukce

Informace k nemovitosti

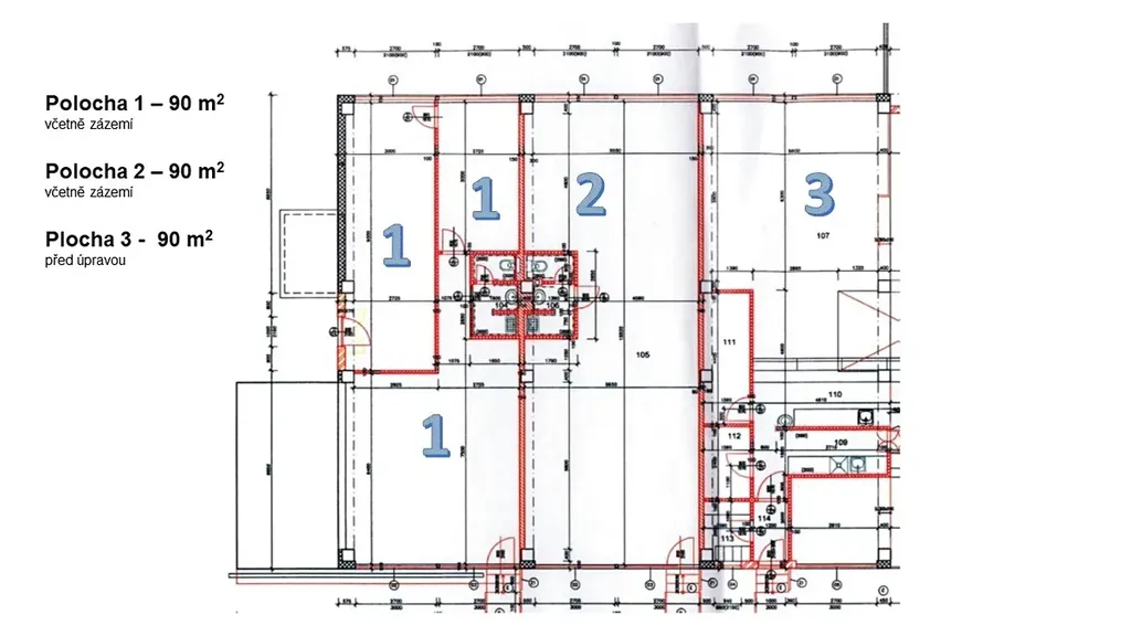
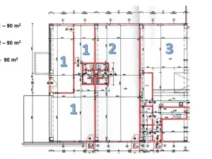
Nabízíme kancelářské prostory s vlastním hygienickým zázemím o výměře 90 m2.
Prostory jsou vhodné pro malé i střední podnikatele jakéhokoliv zaměření. Nabízené prostory jsou vhodné jako kancelářské prostory s možností rozšíření na výměru 180 m2 či 270 m2.
Možnost parkování přím před kanceláří na našem parkovišti.

Prostory se nachází v přízemí administrativní budovy v technologickém areálu BENETOL trade, a.s. v centru Litvínova, na adrese Nádražní 557.

Areál je přístupný z veřejné komunikace přes silnici č. 27 a dále ulicí Nádražní a Čapkova. Vjezd je uzpůsoben pro osobní i nákladní kamionovou přepravu.
Areál disponuje: vrátnicí, nepřetržitou ostrahou, soukromou protipožární jednotkou.

Kancelářské prostory se nacházejí na adrese Nádražní 557, Litvínov - Horní Litvínov. Pronájem je možný ihned.

Parametry nemovitosti

Cena
175 Kč /za metr čtvereční / měsíc
Poznámka k ceně
Cena je uvedena bez DPH, bez DPH, bez poplatků
Aktualizováno
4. 3. 2026
Adresa
Litvínov
ID
00077
Stavba
Smíšená
Stav objektu
Dobrý
Patro
1. z 4
Vybaveno
Ne
Lokalita objektu
Centrum obce
Užitná plocha
90 m2
Třída energetické náročnosti
G - Mimořádně nehospodárná
Elektřina
230V
Odpad
Veřejná kanalizace
Komunikace
Asfaltová
Doprava
Vlak, Silnice, MHD, Autobus
Voda
Vodovod
Parkování

Kontaktovat makléře

Realitní kancelář

KLUB 01

Bělohorská 688/165, Praha, Břevnov

Chystáte se prodat nemovitost?
Pomůžeme Vám!

Máte zájem o tuto nemovistost?

Tímto, v souladu s nařízením Evropského parlamentu a Rady (EU) 2016/679, v platném znění, prohlašuji, že mi je alespoň 16 let a uděluji tak svůj souhlas se zpracováním zadaných údajů (jméno, telefon, e-mail, ip adresa) společnosti B3 Technology, s.r.o., IČ: 07330600, se sídlem Novostavby 126/23, 435 11 Lom (správce dat), za účelem předání dotazu z tohoto formuláře Vámi vybranému inzerentovi a zpětného kontaktování mé osoby. Osobní údaje bude správce zpracovávat manuálně i automaticky přímo prostřednictvím svých zaměstnanců. Informace předané tímto formulářem budou uloženy v databázi správce maximálně po dobu 10 let. Odvolání souhlasu s uložením a zpracováním poskytnutých dat lze e-mailem na info@bydlisnami.cz. V případě podezření na neoprávněné použití Vámi poskytnutých údajů máte právo předat podnět k šetření Úřadu pro ochranu osobních údajů. Více informací
Chystáte se prodat nemovitost?
Pomůžeme Vám!

Inzerát si prohlédlo 0 lidí

Prodejce

Hedvika Chmelová

Hedvika Chmelová

Hlídací pes

Chcete dostávat emailem podobné nabídky pronájmu kanceláří v Litvínově?

Podobné nemovitosti