Remax Power 2

Prodej výrobních prostor, Příbram - Příbram I, Dělostřelecká, 2099 m2

Dělostřelecká, Příbram I

60 000 000 Kč /za nemovitost HYPOTÉKA od 268 164 Kč /za měsíc

(+DPH, vč. advokátního servisu a úschovy, vč. provize RK)

Doporučené firmy v Příbrami

Revize elektrických zařízení

Informace k nemovitosti

Jedná se o moderní novostavbu doposud využívanou pro výrobu kosmetických produktů, z roku 2021, v průmyslové zóně na okraji města Příbram, v ulici Dělostřelecká, pouze 50 km od Prahy.

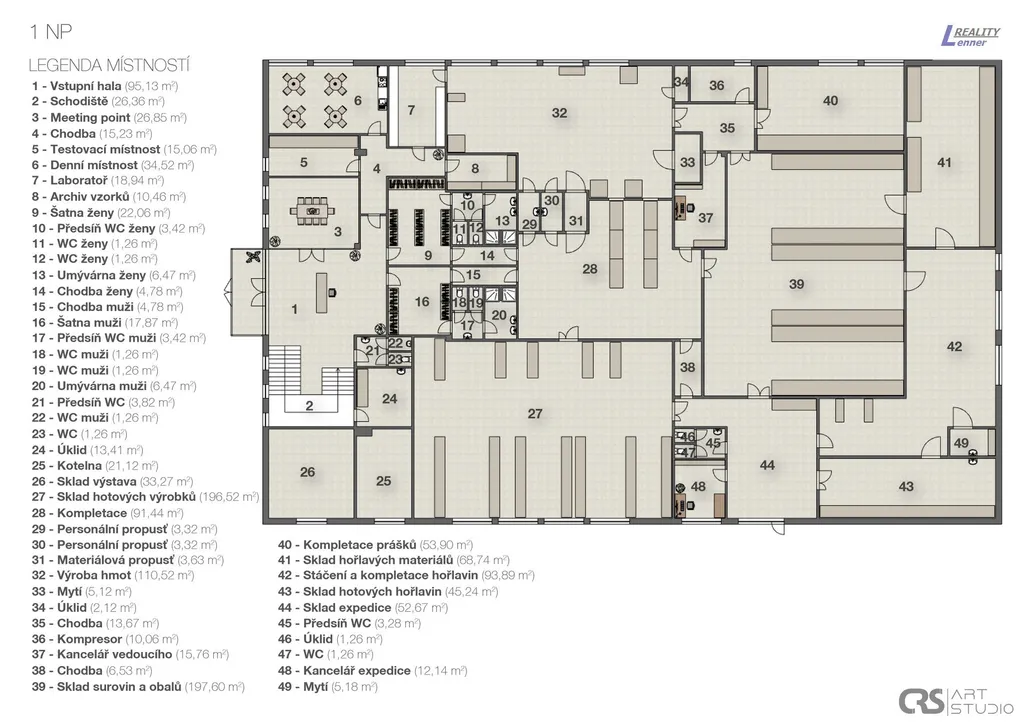
Prostory pro výrobu cca 1.500 m2 a v 1. patře se dále nacházejí převážně kancelářské prostory cca 300 m2 + cca 280 m2 příslušenství.

Stavba splňuje veškeré parametry pro podnikání v oboru výroby kosmetiky.

V přízemí areálu cca 1.500 m2 se nacházejí: sklad (hotových výrobků, surovin a obalu, hořlavých materiálů, hořlavých surovin, prostor pro plnění hořlavých materiálu, prostor pro plnění kosmetických přípravků, laboratoř - prostor pro plnění a balení, prostor pro expedici a příjem zboží, jídelna pro zaměstnance, pánské a dámské šatny, sklad inventáře, technické místnosti atd.).

V první patře areálu se nachází cca 300 m2 kancelářských prostor a příslušenství: oddělení nákupu, oddělení kvality, vedoucí výroby, kancelářské místnosti, spisovna, zasedací místnost, serverovna, kuchyňka atd.

Areál je přístupný po novější asf. komunikaci a je napojen na obecní sítě (vodovod na hranici pozemku, kanalizace a plynovod) vlastní vydatný vrt 40 m (150 mm), internet s Wifi.

Zastavěná plocha cca 1.514 m2, prefabrikovaný železobetonový skelet o dvou nadz. podlaží a ploché střeše. Střešní krytina je tvořena pásy z SBS modifikovaného asfaltu. Obvodový plášť je postaven z izolačních sendvičových panelů Goldbek, zasklení kvalitními plastovými a hliníkovými okny vč. izol. trojskel. Areál byl postaven firmou s několikaletými zkušenostmi.

Provedení a vybavení objektu je výrazně nadstandardní, objekt je ve výborném stavu a splňuje nadstandardní vybavení vycházející z technologie výroby kosmetických produktů. (např. řízená vzduchotechnika vč. měření, protipožární ochrana, technologie detekce a signalizace výparů nebezpečných látek s registrací prostorových teplot. Zálohové napájení technologie, regulace kaskády kotlů Buderus s poruchovou regulací atd.

Dále mimo jiné: příprava pro venkovní el. stínění, rekuperace – vzduchotechnika, alarm vč. dálkového hlídání, LED osvětlení, úpravna vody, nádrže pro případ požáru, ÚT s VK radiátory a částečně podlahové topení, elektrostaticky vodivá podlaha v části objektu, atd.

Objekt bude volný k nastěhování/ využívání od 1.4.2026.

Parametry nemovitosti

Cena
60 000 000 Kč /za nemovitost Spočítat hypotéku
Poznámka k ceně
+DPH, vč. advokátního servisu a úschovy, vč. provize RK
Aktualizováno
4. 3. 2026
Adresa
Dělostřelecká, Příbram I
ID
N04107
Stavba
Montovaná
Stav objektu
Novostavba
Vybaveno
Ano
Typ objektu
Patrový
Lokalita objektu
Okraj obce
Vlastnictví
Osobní
Užitná plocha
2099 m2
Zastavěná plocha
1521 m2
Podlahová plocha
2099 m2
Plocha pozemku
7637 m2
Třída energetické náročnosti
B - Velmi úsporná
Ukazatel energetické náročnosti
152 kWh/m2 za rok
Elektřina
230V
Plyn
Plynovod
Odpad
Veřejná kanalizace
Topení
Ústřední plynové, Ústřední elektrické, Jiné
Komunikace
Asfaltová
Telekomunikace
Telefon, Internet, Ostatní
Doprava
Vlak, Dálnice, Silnice, MHD, Autobus
Voda
Místní zdroj vody, Vodovod

Kontaktovat makléře

Realitní kancelář

Logo Reality Lenner

Reality Lenner

Gen. R. Tesaříka 256, Příbram

Chystáte se prodat nemovitost?
Pomůžeme Vám!

Máte zájem o tuto nemovistost?

Tímto, v souladu s nařízením Evropského parlamentu a Rady (EU) 2016/679, v platném znění, prohlašuji, že mi je alespoň 16 let a uděluji tak svůj souhlas se zpracováním zadaných údajů (jméno, telefon, e-mail, ip adresa) společnosti B3 Technology, s.r.o., IČ: 07330600, se sídlem Novostavby 126/23, 435 11 Lom (správce dat), za účelem předání dotazu z tohoto formuláře Vámi vybranému inzerentovi a zpětného kontaktování mé osoby. Osobní údaje bude správce zpracovávat manuálně i automaticky přímo prostřednictvím svých zaměstnanců. Informace předané tímto formulářem budou uloženy v databázi správce maximálně po dobu 10 let. Odvolání souhlasu s uložením a zpracováním poskytnutých dat lze e-mailem na info@bydlisnami.cz. V případě podezření na neoprávněné použití Vámi poskytnutých údajů máte právo předat podnět k šetření Úřadu pro ochranu osobních údajů. Více informací
Chystáte se prodat nemovitost?
Pomůžeme Vám!

Inzerát si prohlédlo 0 lidí

Prodejce

Tomáš Lenner

Tomáš Lenner

Hlídací pes

Chcete dostávat emailem podobné nabídky prodeje výrobních prostor v Příbrami?

Podobné nemovitosti