Pronájem bytu 3+kk, Praha - Krč, Kukučínova, 60 m2

Kukučínova, Praha, Krč

23 500 Kč /za měsíc Získejte výhodnou HYPOTÉKU

(plus zálohy na služby 5.100 Kč (2 os, každáý další 1.000 Kč) + elektřina)

Doporučené firmy v Praze 4

Stěhovací služby

Výkup a prodej starého nábytku

Informace k bytu

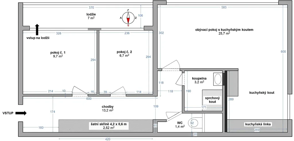
Nabízíme exkluzivně k pronájmu zrekonstruovaný byt 3+kk s lodžií o výměře 67 m2 (z toho 60 m2 podlahová plocha) v 1. patře udržovaného panelového domu. Byt prošel v r. 2017 kompletní rekonstrukcí, která se týkala veškerého vnitřního vybavení.

Byt se skládá ze 2 menších pokojů (10 a 7 m2) a obývacího pokoje s kuch. koutem (26 m2). Z většího pokoje je vstup na lodžii, pokoj lze vybavit manželkou postelí s matracemi 180x200 cm. Menší pokoj je vhodný jako pracovna či dětský pokojíček. Obývací pokoj byl propojen s kuchyní, která je vybavená moderní, plně vybavenou kuchyňskou linkou (indukční varná deska, digestoř s filtrem, myčka, el. trouba, mikrovlnná trouba, vestavěná lednice s mrazákem, pračka LG - 6 kg). Koupelna byla zařízena v nadstandardu s obklady značky RAVAK. WC bylo pro větší komfort zvětšeno posunem příčky (viz. plánek), vznikl tak užitečný kout pro odkládání úklidových prostředků. Mísa na WC je ve stylu Rimfree (konstrukce bez skrytých dutých prostor pro snadné čištění). Na chodbě je byt vybaven velkokapacitní skříní se 4 posuvnými dveřmi (2 se zrcadly).

Vytápění je dálkové, veškeré rozvody v bytě jsou nové, elektrický okruh je třífázový. Byt má rozvody datových a TV kabelů s možností propojení na tři koncová místa (dva v obývacím pokoji a jedno v menším pokoji). Celý byt je upraven do podhledů a úsporným LED osvětlením. Nad všemi okny kolejnice pro závěsy a záclony, které jsou skryté za podhledy. Jako podlahy použit kvalitní vinyl.
Umístění bytu je v rohu domu, byt má tudíž minimum stěn se sousedy, pod bytem jsou umístěné sklepy. Všechna okna vyjma kuchyně jsou orientovaná na jih s výhledem do parčíku. Dům je velice dobře zabezpečen dvěma vchodovými dveřmi a kamerovým systémem. K dispozici sklepní kóje cca 1 m2 v 1 NP.

Nad nájem platí nájemci zálohy na služby 5.100 Kč (zálohy pro 2 osoby zahrnují: správa domu, provoz domu, vytápění, SV+TV), každá další osoba + 1000 Kč. Nad tyto služby hradí nájemce spotřebu elektrické energie přímo PRE.

V okolí domu veškerá občanská vybavenost, nejbližší metro Kačerov pouze 2 zastávky autobusem. Zastávky autobusu Klárův ústav (linky 189, 113, 215, 333, 331) a Zálesí (linky 203, 193, 901, 114, 138) pouze 5 min pěšky od domu. V přízemí domu malá večerka, 10 min pešky od domu Kunratický lesopark. Vřele doporučujeme jako krásné, moderní bydlení pro pár. Preferujeme nekuřáky bez zvířat, byt volný od dubna 2026 (přesné datum dle dohody).

INFORMACE PRO ZÁJEMCE:
Prosíme všechny zájemce, aby místo volání napsali na mail tyto informace: 1/ na jaký byt reagujete 2/ kolik osob by v bytě bydlelo + krátké představení 3/ od kdy byste chtěli bydlet a na jak dlouho 4/ pokud jste cizinec – jak dlouho již žijete v Praze. Vzhledem k extrémnímu zájmu o pronájmy bohužel nemůžeme z důvodu kapacity poptávky vyřizovat telefonicky, děkujeme za pochopení.

Parametry bytu

Cena
23 500 Kč /za měsíc
Poznámka k ceně
plus zálohy na služby 5.100 Kč (2 os, každáý další 1.000 Kč) + elektřina
Aktualizováno
4. 3. 2026
Adresa
Kukučínova, Praha, Krč
ID
2916
Stavba
Panelová
Stav objektu
Po rekonstrukci
Patro
2.
Lokalita objektu
Klidná část obce
Vlastnictví
Osobní
Užitná plocha
60 m2
Zdroj topení
Ústřední dálkové
Zdroj teplé vody
Centrální dálkový ohřev
Sklep
Lodžie

Kontaktovat makléře

Máte zájem o tento byt?

Tímto, v souladu s nařízením Evropského parlamentu a Rady (EU) 2016/679, v platném znění, prohlašuji, že mi je alespoň 16 let a uděluji tak svůj souhlas se zpracováním zadaných údajů (jméno, telefon, e-mail, ip adresa) společnosti B3 Technology, s.r.o., IČ: 07330600, se sídlem Novostavby 126/23, 435 11 Lom (správce dat), za účelem předání dotazu z tohoto formuláře Vámi vybranému inzerentovi a zpětného kontaktování mé osoby. Osobní údaje bude správce zpracovávat manuálně i automaticky přímo prostřednictvím svých zaměstnanců. Informace předané tímto formulářem budou uloženy v databázi správce maximálně po dobu 10 let. Odvolání souhlasu s uložením a zpracováním poskytnutých dat lze e-mailem na info@bydlisnami.cz. V případě podezření na neoprávněné použití Vámi poskytnutých údajů máte právo předat podnět k šetření Úřadu pro ochranu osobních údajů. Více informací
Chystáte se prodat nemovitost?
Pomůžeme Vám!

Inzerát si prohlédlo 0 lidí

Prodejce

Ing. Kamil Rychlý

Ing. Kamil Rychlý

Hlídací pes

Chcete dostávat emailem podobné nabídky pronájmu bytů 3+kk v Praze 4?

Podobné nemovitosti