Prodej bytu 3+1, Kolín, Rimavské Soboty, 69 m2

Rimavské Soboty, Kolín II

5 200 000 Kč /za nemovitost HYPOTÉKA od 23 241 Kč /za měsíc

(včetně provize, včetně právního servisu)

Doporučené firmy v Kolíně

Informace k bytu

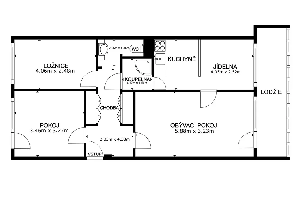
Dovoluji si vám nabídnout bytovou jednotku o dispozici 3+1 s lodžií, která se nachází ve 4. patře revitalizovaného panelového domu.
Byt o užitné ploše 69,5 m² nabízí praktické a pohodlné dispoziční řešení s dostatkem úložných prostor pro každodenní život. Součástí bytu je lodžie 6 m², komora na patře a sklepní kóje 2 m² umístěná v suterénu domu. Díky velkým oknům s orientací na jihozápad a severovýchod je interiér příjemně světlý po celý den.
Dům prošel zásadní rekonstrukcí – disponuje plastovými okny, zateplenou fasádou, novými stoupacími rozvody a modernizovaným výtahem.
Lokalita je velmi vyhledávaná a nabízí kompletní občanskou vybavenost v docházkové vzdálenosti – základní i mateřskou školu, gymnázium, aquapark Vodní svět Kolín, stejně jako nákupní možnosti (Kaufland, Penny a další). Zastávka MHD se nachází pouhé tři minuty chůze od domu.

Parametry bytu

Cena
5 200 000 Kč /za nemovitost Spočítat hypotéku
Poznámka k ceně
včetně provize, včetně právního servisu
Aktualizováno
7. 3. 2026
Adresa
Rimavské Soboty, Kolín II
ID
00222
Stavba
Panelová
Stav objektu
Dobrý
Patro
5. z 7
Lokalita objektu
Sídliště
Vlastnictví
Osobní
Užitná plocha
69 m2
Podlahová plocha
77 m2
Třída energetické náročnosti
C - Úsporná
Ukazatel energetické náročnosti
89 kWh/m2 za rok
Plyn
Plynovod
Odpad
Veřejná kanalizace
Komunikace
Asfaltová
Telekomunikace
Telefon, Internet
Doprava
Vlak, Silnice, MHD, Autobus
Voda
Vodovod
Topné těleso
Radiátory
Zdroj topení
Ústřední dálkové
Zdroj teplé vody
Centrální dálkový ohřev
Sklep
Lodžie
Výtah

Kontaktovat makléře

Realitní kancelář

TOP MAKLÉŘKY

Politických vězňů 42, Kolín

Chystáte se prodat nemovitost?
Pomůžeme Vám!

Máte zájem o tento byt?

Tímto, v souladu s nařízením Evropského parlamentu a Rady (EU) 2016/679, v platném znění, prohlašuji, že mi je alespoň 16 let a uděluji tak svůj souhlas se zpracováním zadaných údajů (jméno, telefon, e-mail, ip adresa) společnosti B3 Technology, s.r.o., IČ: 07330600, se sídlem Novostavby 126/23, 435 11 Lom (správce dat), za účelem předání dotazu z tohoto formuláře Vámi vybranému inzerentovi a zpětného kontaktování mé osoby. Osobní údaje bude správce zpracovávat manuálně i automaticky přímo prostřednictvím svých zaměstnanců. Informace předané tímto formulářem budou uloženy v databázi správce maximálně po dobu 10 let. Odvolání souhlasu s uložením a zpracováním poskytnutých dat lze e-mailem na info@bydlisnami.cz. V případě podezření na neoprávněné použití Vámi poskytnutých údajů máte právo předat podnět k šetření Úřadu pro ochranu osobních údajů. Více informací
Chystáte se prodat nemovitost?
Pomůžeme Vám!

Inzerát si prohlédlo 5 lidí

Prodejce

Lenka Bitrmanová

Lenka Bitrmanová

Hlídací pes

Chcete dostávat emailem podobné nabídky prodeje bytů 3+1 v Kolíně?

Podobné nemovitosti