Soccer reality

Prodej bytu 3+1, Praha - Kbely, Martinická, 79 m2

Martinická, Praha, Kbely

9 495 000 Kč /za nemovitost HYPOTÉKA od 42 437 Kč /za měsíc

(Cena včetně provize a kompletního právního servisu.)

Doporučené firmy v Praze 9

Stěhovací služby

Výkup a prodej starého nábytku

Informace k bytu

Chtěli byste koupit větší byt ve Kbelích, nejlépe přímo v jejich srdci - u Centrálního parku a Pivovarského rybníku? Mít u domu podniky jako Zastávka U Srubu nebo Kbelský pivovar? Pak vás bude zajímat prodej zrekonstruovaného bytu 3+1 o celkové ploše 79,68 m² v cihlovém domě umístěném v lokalitě, kde se moc často nic neprodává.

Tento prakticky řešený byt se nachází ve 3. NP revitalizované a dobře fungující budovy a je orientován na tři světové strany. Je tak velmi dobře větratelný a nabízí hezké výhledy do okolní zeleně.
Prošel v roce 2021 náročnou generální rekonstrukcí veškerých vnitřních povrchů, rozvodů a bytového jádra. Laděn je dekory do moderní a nadčasové kombinace bílé, šedé a černé.

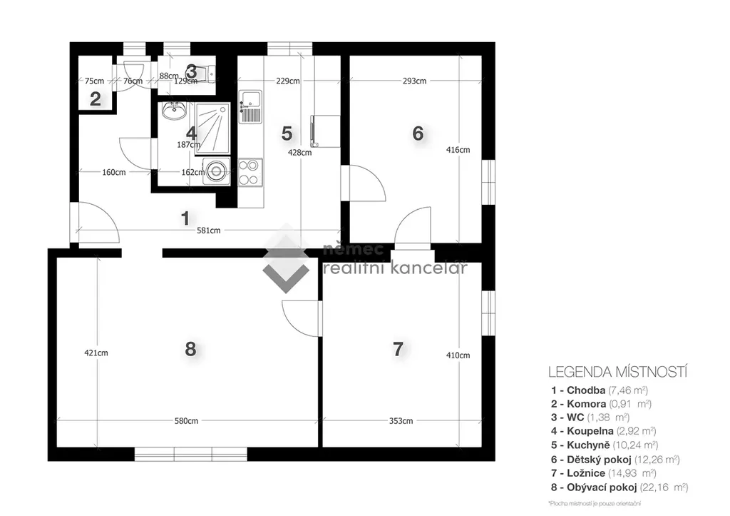
Dispozice tohoto 3+1: Po vstupu do bytu se octnete v prostorné centrální chodbě (7,46 m²), z níž je možné vstoupit doprava do obývacího pokoje (22,16 m²) orientovaného na jih. Na ten navazuje velká ložnice (14,93 m²) orientovaná, stejně jako dětský pokoj (12,26 m²) na východ. Dětský pokoj je přístupný i z druhé části bytu z kuchyně (10,24 m²), která má okno na severní stranu před dům. Je zařízena linkou na míru vč. vestavných spotřebičů na míru. Nabízí jídelní kout, ačkoliv je obývací pokoj dostatečně prostorný pro jídelní stůl. Stejným směrem je i okno z předsíně a toalety (1,38 m²). Odvětrávaná je i spíž (0,91 m²). Praktická je pak koupelna, která nabízí kromě velkého walk-in sprchového koutu prostor pro pračku se sušičkou.

Jako úložný prostor slouží hned dva veliké bezbariérové sklepy, jeden zděný a jeden laťkový (4,40 a 3,02 m²).

Jedná se o velmi dobře fungující SVJ. Každé jednotce připadá výnos z nájmu nebytových prostor.

Místní vědí, že v okolí nemovitosti naleznete opravdu vše pro pohodlný život. Pouhé 2 min pěšky najdete stanici vlaku Praha - Kbely, potraviny, ZŠ a MŠ, několik dětských hřišť, lékárnu, venkovní posilovnu, sokolovnu. Za tratí je oblíbený prales s bludištěm a broukovištěm, prakticky u domu začíná několik cyklostezek a slavná inline dráha. Na sporovní aktivity je perfektní i Lesopark Letňany s pumptracky, dalšími dětskými hřišti, venkovní posilovnou a discgolfem. Málem bych ve výčtu zapomněl na Vinořský park a golfové hřiště. Jedná se opravdu o skvělé místo pro život v lokalitě se zelení a vyžitím pro všechny generace.

Nenechte si ujít tuhle jedinečnou příležitost, vřele doporučujeme.

Parametry bytu

Cena
9 495 000 Kč /za nemovitost Spočítat hypotéku
Poznámka k ceně
Cena včetně provize a kompletního právního servisu.
Aktualizováno
9. 3. 2026
Adresa
Martinická, Praha, Kbely
ID
1142
Stavba
Cihlová
Stav objektu
Velmi dobrý
Patro
3. z 3
Vlastnictví
Osobní
Užitná plocha
79 m2
Podlahová plocha
79 m2
Třída energetické náročnosti
C - Úsporná
Elektřina
230V
Plyn
Plynovod
Odpad
Veřejná kanalizace
Komunikace
Asfaltová, Zpevněná
Telekomunikace
Telefon, Internet, Kabelová televize, Kabelové rozvody
Doprava
Vlak, Dálnice, Silnice, MHD, Autobus
Voda
Vodovod
Topné těleso
Radiátory
Zdroj topení
Ústřední dálkové
Sklep

Kontaktovat makléře

Máte zájem o tento byt?

Tímto, v souladu s nařízením Evropského parlamentu a Rady (EU) 2016/679, v platném znění, prohlašuji, že mi je alespoň 16 let a uděluji tak svůj souhlas se zpracováním zadaných údajů (jméno, telefon, e-mail, ip adresa) společnosti B3 Technology, s.r.o., IČ: 07330600, se sídlem Novostavby 126/23, 435 11 Lom (správce dat), za účelem předání dotazu z tohoto formuláře Vámi vybranému inzerentovi a zpětného kontaktování mé osoby. Osobní údaje bude správce zpracovávat manuálně i automaticky přímo prostřednictvím svých zaměstnanců. Informace předané tímto formulářem budou uloženy v databázi správce maximálně po dobu 10 let. Odvolání souhlasu s uložením a zpracováním poskytnutých dat lze e-mailem na info@bydlisnami.cz. V případě podezření na neoprávněné použití Vámi poskytnutých údajů máte právo předat podnět k šetření Úřadu pro ochranu osobních údajů. Více informací
Chystáte se prodat nemovitost?
Pomůžeme Vám!

Inzerát si prohlédlo 0 lidí

Prodejce

Jakub Němec

Jakub Němec

Hlídací pes

Chcete dostávat emailem podobné nabídky prodeje bytů 3+1 v Praze 9?

Podobné nemovitosti