Prodej rodinného domu, Břežany, 127 m2 (ID: 2568996)

Břežany

Cena na vyžádání /za nemovitost Získejte výhodnou HYPOTÉKU

(dohodou, cena k jednání)

Doporučené firmy v Břežanech

Informace k domu

Exkluzivní nabídka vydařené novostavby rodinného domu 5+kk s garáží a zahradou v Břežanech, okres Znojmo.
Jedná se o polorohový dům v klidné ulici s výhledem na jihozápad, který je právě dokončen a během března 2026 bude zkolaudován. K dispozici je prostorná garáž pro 1 vůz a dále 2 parkovací místa před garáží. Dům má velmi promyšlenou a praktickou dispozici s velmi citlivě vybranými kvalitními materiály a vkusně zvolenými barvami podlah, dveří, oken a drobných zařizovacích předmětů. Tento dům vyhovuje moderním standardům dnešního rodinného bydlení.

Dům disponuje energetickou třídou B, což zaručuje nízké provozní náklady. Je zcela dokončen, jen předzahrádka a zahrada již čekají na realizaci novým majitelem.

Celková plocha pozemku 429 m2, zahrada cca 350 m2, užitná plocha domu 127 m2.

Dům je zděný (ytong) se sedlovou střechou, nepodsklepený a zateplený.
Vybavení: plastová okna s trojskly, podlahové topení v celém domě včetně garáže, plynový kondenzační kotel zn. IMMERGAS, bojler 160 l, fotovoltaika na ohřev vody, příprava na předokenní žaluzie a klimatizaci, videotelefon, rekuperace vzduchu, sanitární výbava a zařizovací předměty zn. Ravak, Gelco a Hansgrohe, příprava na kabelový internet.

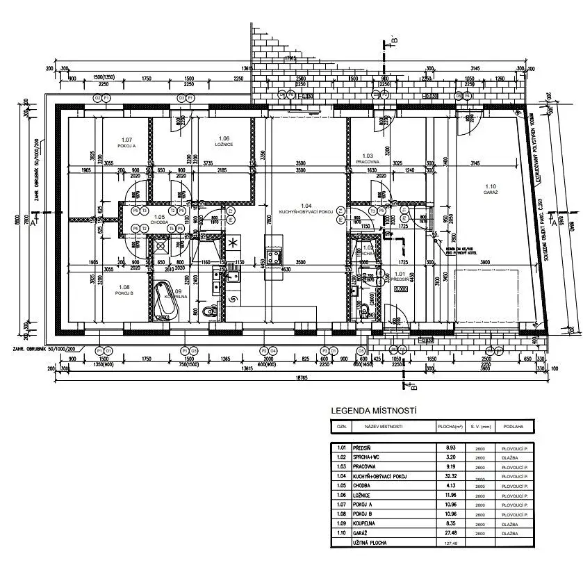
Výměry místností:
garáž s vraty na dálkové ovládání 27,48 m2 s umyvadlem/výlevkou a přípravou na pračku a sušičku, předsíň 8,93 m2, 1. koupelna s WC, umyvadlem a sprchovým koutem 3,20 m2, pracovna/šatna 9,19 m2, obývací pokoj s kuchyňským koutem 32,32 m2, chodba 4,13 m2, ložnice 11,96 m2, pokoj 10,96 m2, pokoj 10,96 m2, 2. koupelna s WC, vanou, sprchovým koutem a dvojumyvadlem 8,35 m2.
Zahrada s budoucí terasou je přístupná z garáže, z ložnice i z obývacího pokoje.

Veškeré IS – elektřina 220/380V, obecní vodovod, plyn, kanalizace.
Dešťová voda je svedena do retenční nádrže na zahradě (možnost zalévání).
Dům je k dispozici ihned, není zatížen žádným zástavním právem, možnost financovat hypotečním úvěrem.
V případě koupě domu na firmu, možný odpočet DPH.

Nabízíme Vám šanci získat svůj vlastní útulný domov, který se může stát místem plným klidu, lásky a pohody.
Buďte rychlí, tato příležitost nemusí trvat dlouho!

Dostupnost z Břežan do Brna je 30 min. autem, 25 min. do Znojma a 20 min od Městys Pohořelice.
V obci je veškerá občanská vybavenost - obecní úřad, pošta, mateřská školka, základní škola, restaurace, cukrárna, obchod - potraviny, rybník. Bližší informace v RK.

Parametry domu

Cena
Cena na vyžádání Spočítat hypotéku
Poznámka k ceně
dohodou, cena k jednání
Aktualizováno
10. 3. 2026
Adresa
Břežany
ID
53368
Stavba
Cihlová
Stav objektu
Novostavba
Druh objektu
Rohový
Užitná plocha
127 m2
Plocha pozemku
429 m2
Třída energetické náročnosti
B - Velmi úsporná
Ukazatel energetické náročnosti
68 kWh/m2 za rok
Elektřina
230V
Plyn
Plynovod
Odpad
Veřejná kanalizace
Komunikace
Dlážděná
Telekomunikace
Internet
Doprava
Autobus
Voda
Vodovod
Topné těleso
Podlahové vytápění
Zdroj topení
Plynový kondenzační kotel
Zdroj teplé vody
Plynový kondenzační kotel
Garáž
Bezbarierový přístup
Parkování

Kontaktovat makléře

Máte zájem o tento dům?

Tímto, v souladu s nařízením Evropského parlamentu a Rady (EU) 2016/679, v platném znění, prohlašuji, že mi je alespoň 16 let a uděluji tak svůj souhlas se zpracováním zadaných údajů (jméno, telefon, e-mail, ip adresa) společnosti B3 Technology, s.r.o., IČ: 07330600, se sídlem Novostavby 126/23, 435 11 Lom (správce dat), za účelem předání dotazu z tohoto formuláře Vámi vybranému inzerentovi a zpětného kontaktování mé osoby. Osobní údaje bude správce zpracovávat manuálně i automaticky přímo prostřednictvím svých zaměstnanců. Informace předané tímto formulářem budou uloženy v databázi správce maximálně po dobu 10 let. Odvolání souhlasu s uložením a zpracováním poskytnutých dat lze e-mailem na info@bydlisnami.cz. V případě podezření na neoprávněné použití Vámi poskytnutých údajů máte právo předat podnět k šetření Úřadu pro ochranu osobních údajů. Více informací
Chystáte se prodat nemovitost?
Pomůžeme Vám!

Inzerát si prohlédlo 0 lidí

Prodejce

Mgr. Romana Dokonalová

Mgr. Romana Dokonalová

Hlídací pes

Chcete dostávat emailem podobné nabídky prodeje rodinných domů v Břežanech (okr. Znojmo)?

Podobné nemovitosti