Prodej rodinného domu, Malý Újezd, 153 m2

Malý Újezd, Vavřineč

7 190 000 Kč /za nemovitost HYPOTÉKA od 32 135 Kč /za měsíc
Doporučené firmy v Malém Újezdu

Informace k domu

Nabízíme k prodeji samostatně stojící rodinný dům v obci Vavřineč u Mělníka. Dům stojí na pozemku o celkové výměře 816 m² a je připraven k okamžitému nastěhování. Nemovitost nabízí příjemné rodinné bydlení s dostatkem prostoru jak uvnitř domu, tak na zahradě.

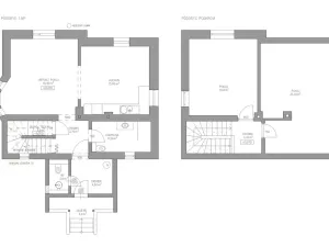
Dispozice domu:
V přízemí se nachází kuchyň s jídelnou, prostorný obývací pokoj, koupelna, samostatné WC a technická místnost. V obytném podkroví jsou dvě ložnice.

Technické informace:
Dům je napojen na obecní vodovod, kanalizaci a elektřinu. Vytápění zajišťuje tepelné čerpadlo, ohřev teplé vody je řešen bojlerem.

Pozemek a další stavby:
Oplocený pozemek nabízí dostatek prostoru pro zahradu, odpočinek i další využití. Na pozemku se nachází také kolna o užitné ploše 52 m², která může sloužit jako dílna, sklad nebo prostor pro hobby. Parkování je možné přímo na pozemku.

Obec Vavřineč nabízí klidné bydlení s dobrou dostupností do Mělníka i Prahy.

Pro více informací nebo domluvení prohlídky nás neváhejte kontaktovat.

Parametry domu

Cena
7 190 000 Kč /za nemovitost Spočítat hypotéku
Aktualizováno
10. 3. 2026
Adresa
Malý Újezd, Vavřineč
Stavba
Cihlová
Stav objektu
Dobrý
Druh objektu
Samostatný
Lokalita objektu
Centrum obce
Užitná plocha
153 m2
Zastavěná plocha
135 m2
Plocha pozemku
816 m2
Třída energetické náročnosti
G - Mimořádně nehospodárná
Elektřina
230V, 400V
Odpad
Veřejná kanalizace
Doprava
Silnice, Autobus
Voda
Vodovod
Zdroj topení
Tepelné čerpadlo
Parkování

Kontaktovat makléře

Realitní kancelář

Houseplan s.r.o.

Karlovo náměstí 82, Roudnice nad Labem

Chystáte se prodat nemovitost?
Pomůžeme Vám!

Máte zájem o tento dům?

Tímto, v souladu s nařízením Evropského parlamentu a Rady (EU) 2016/679, v platném znění, prohlašuji, že mi je alespoň 16 let a uděluji tak svůj souhlas se zpracováním zadaných údajů (jméno, telefon, e-mail, ip adresa) společnosti B3 Technology, s.r.o., IČ: 07330600, se sídlem Novostavby 126/23, 435 11 Lom (správce dat), za účelem předání dotazu z tohoto formuláře Vámi vybranému inzerentovi a zpětného kontaktování mé osoby. Osobní údaje bude správce zpracovávat manuálně i automaticky přímo prostřednictvím svých zaměstnanců. Informace předané tímto formulářem budou uloženy v databázi správce maximálně po dobu 10 let. Odvolání souhlasu s uložením a zpracováním poskytnutých dat lze e-mailem na info@bydlisnami.cz. V případě podezření na neoprávněné použití Vámi poskytnutých údajů máte právo předat podnět k šetření Úřadu pro ochranu osobních údajů. Více informací
Chystáte se prodat nemovitost?
Pomůžeme Vám!

Inzerát si prohlédlo 0 lidí

Prodejce

Veronika Kočovská

Veronika Kočovská

Hlídací pes

Chcete dostávat emailem podobné nabídky prodeje rodinných domů v Malém Újezdu?

Podobné nemovitosti